3-комнатная квартира: Москва, Хорошёвское шоссе, 12к1 (84.7 м²)

Собственник не связан договорными обязательствами с каким-либо агентством или агентом, любые объявления не от собственника публикуются на страх и риск лиц или организаций, их разместивших, и могут содержать недостоверные сведения о квартире и условиях её продажи.
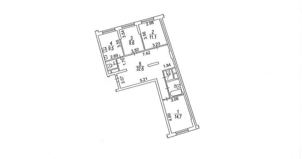
Продаётся трёхкомнатная квартира в ЖК комфорт-класса "Дом на Беговой". Классическая трёшка-распашонка (три окна во двор и одно - на ТТК) без мебели с отделкой "от застройщика" - весьма удачный вариант под перепланировку: стяжка пола и выравнивание внешних стен уже выполнены, внутренние перегородки из газобетона не несущие и демонтируются с минимальными затратами, небольшая относительно общей жилая площадь позволит согласовать большое разнообразие проектных решений, в т.ч. пренос и добавление мокрых зон. Вариант представляется особенно привлекательным (по сравнению с вариантом без отделки) для того, кто планирует отложить перепланировку на некоторое время после приобретения: квартира "обжитая", с косметической отделкой и функционирующими инженерными сетями, что обеспечивает возможность проживания, в т.ч. параллельно с работами по переустройству.
Прямая продажа от собственника, квартира не имеет обременений, юридически свободна, физически будет освобождена за время подготовки документов.
Особенности
Другие 3-х комнатные квартиры
Последние добавленные апартаменты
О нас говорят
Хорошая услуга «Личный помощник». За вами закрепляют менеджера, который подбирает для вас варианты, помогает с подписанием договора и проверкой квартиры. Константин оперативно отвечал на наши вопросы и подстраивался под возникающие в ходе поиска требования.
Ins Fairy
Нашел себе отличную квартиру в Мск на Локалс. В этот раз пользовался услугой Личный помощник; Каждый день мне присылали варианты и по моим ответам уточняли мои критерии. В итоге выбрали прямо то, что мне было надо!
Ilya Malov
Отличный сервис! Нужный вариант подобрали уже на следующий день после обращения. Документы с арендодателем я подписала в конце той же недели и сразу переехала. Квартира после ремонта, все новое, я — первый арендатор, до метро 15 минут пешком. Это потрясающе!
Maria Levkina
Поиски квартиры заняли ровно неделю, Андрей проверял все варианты и составлял подробное описание. Так же оказал помощь при подписании договора. И вот теперь, я снимаю квартиру без комиссии, от собственника, с хорошим ремонтом, в новом доме по приемлемой цене.
Dmitry Kovtun
Клиентоориентированность — на высшем уровне. И форма связи любая.. мне было удобно общаться через почту — не проблема: в будни и даже в выходные, и днем и ночью — постоянно на связи) В какой-то момент даже подумала, что личный помощник никогда не отдыхает))
Teresa Olehnovich
Услуга «Личный помощник» — это не только дешевле, чем платить деньги каким-то непонятным посредникам или риэлторам, но и гарантированная ежедневная консультация от грамотного специалиста. Одним словом, всё очень понравилось.
Алина Василевская
Моя оценка 5! Нашли с личным помощником то, что нужно!! Удобно и безопасно. Отличный, проверенный сайт! Спасибо, Локалс!
Еленка Потапова
Искал с помощью услуги «Личный помощник». Сервис справился с поставленной перед ним задачей — найти мне жильё в короткие сроки (дедлайн 1,5 недели). Спасибо!
Dimas
У меня только положительные впечатления остались. Мне присылал варианты каждый день, иногда даже дважды. Всегда оперативно реагировал на мои пожелания. В итоге, так и сняли одну из предложенных квартир и очень довольны.
Любовь