




































2-х комнатная квартира Курского Вокзала
АВТОРСКИЕ АПАРТАМЕНТЫ "ПИЛОТ" С ВИДОМ НА КРЕМЛЬ: ЖИЗНЬ НА ВЫСОТЕ
Резиденция с характером, в центре Москвы, на Садовом кольце, в элитном комплексе "Дом Chkalov", архитектура которого вдохновлена небоскребами Нью-Йорка. Здесь много неба и воздуха. Панорамные виды на Котельническую набережную, Москва-Сити и Кремль наполняют ощущением полноты жизни. Они дарят энергию мегаполиса для работы и покой для отдыха и восстановления.
Жизнь здесь это воплощение принципа work-life balance. Пешие маршруты ведут до Кремля, парка Зарядье, Чистых прудов, острова Балчуг.
Сад им. Баумана, с его вековыми липами и каштанами, идеален для утренних пробежек.
Привлекательность локации усиливает соседство с модными кластерами. Рядом деловой квартал Арма, Центр современного искусства Винзавод и Artplay, крупный хаб архитектуры, дизайна и образования.
Старая Москва и Москва ультрасовременная сплетаются здесь в одно полотно.
ТРК Атриум в соседнем здании создает активную атмосферу района: магазины, рестораны, сервисы, круглосуточный супермаркет Перекресток и кинотеатр. В шаге от дома два премиальных фитнес-клуба: World Class с бассейном и Crocus Fitness со SPA.
В самом доме запланирована четырехэтажная торговая галерея с бутиками, ресторанами и пространствами для работы и отдыха. Высокие лобби "Дома Chkalov" подчеркивают статусность резиденции. В тихих зонах можно провести встречу. Консьерж-сервис 24/7.
Здесь сосредоточены важные транспортные узлы. Прямо у дома автобусы, трамваи, три ветки метро (станции Курская, Чкаловская), Курский вокзал, МЦД-2 и МЦД-4.
Об апартаментах:
- Высококачественная отделка от именитого дизайнера Martin Hulbert, London.
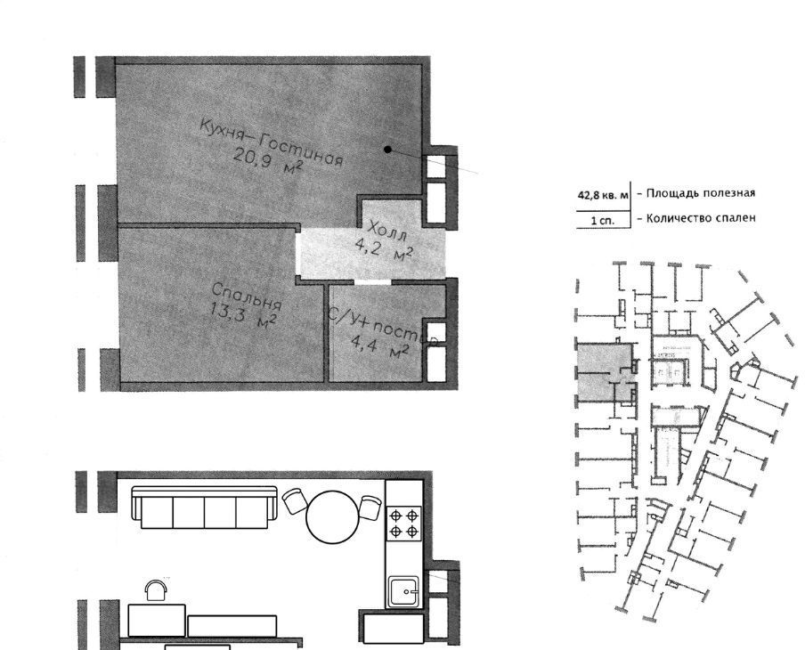
- Две комнаты (кухня-гостиная и спальня), ванная комната.
- Интегрированная система видеонаблюдения, контроль доступа, профессиональная охрана.
- Централизованная приточно-вытяжная вентиляция, увлажнение и кондиционирование воздуха, теплый пол в санузле.
- Окна открываются для проветривания.
- Панорамные виды на юго-запад дарят впечатляющие закаты.
- Шторы настоящие блэкауты, обеспечивают глубокое затемнение; управление дистанционное.
- Кровать King Size (180х200 см) с бельевым коробом.
- Прикроватные тумбы с сенсорным управлением, USB-портами, беспроводной зарядкой Qi, встроенной подсветкой.
- Диван с механизмом трансформации, обеспечивающим дополнительное полноценное спальное место, и вместительным бельевым коробом.
- Хорошее освещение с регулировкой яркости и цветовой температуры (включая цветное освещение).
- Техника премиум-класса (в том числе стиральная машина с сушкой, умный чайник, микроволновая печь, кофемашина Nespresso с возможностью приготовления эспрессо, лунго, капучино и латте).
- Все необходимое для комфортной жизни (посуда, новое постельное белье, полотенца и т.п.)
- Сдаются впервые.
Высокоскоростные лифты Schindler с минимальным временем ожидания. Шумные работы в доме завершены - тихо.
Вознаграждение агенту от собственника.
Фотографии и текст защищены законом об авторском праве. Не дублировать.
Удобства
Балкон
Посудомоечная машина
Холодильник
Стиральная машина
Телевизор
Нагреватель воды
Кондиционер
Особенности
Можно курить
Подходит для мероприятий
Можно с животными
Подходит для семьи с детьми
Последние добавленные апартаменты
4-комнатная квартира: Москва, Большой Николоворобинский переулок, 9к1 (161 м²)
О нас говорят
Хорошая услуга «Личный помощник». За вами закрепляют менеджера, который подбирает для вас варианты, помогает с подписанием договора и проверкой квартиры. Константин оперативно отвечал на наши вопросы и подстраивался под возникающие в ходе поиска требования.
Ins Fairy
Нашел себе отличную квартиру в Мск на Локалс. В этот раз пользовался услугой Личный помощник; Каждый день мне присылали варианты и по моим ответам уточняли мои критерии. В итоге выбрали прямо то, что мне было надо!
Ilya Malov
Отличный сервис! Нужный вариант подобрали уже на следующий день после обращения. Документы с арендодателем я подписала в конце той же недели и сразу переехала. Квартира после ремонта, все новое, я — первый арендатор, до метро 15 минут пешком. Это потрясающе!
Maria Levkina
Поиски квартиры заняли ровно неделю, Андрей проверял все варианты и составлял подробное описание. Так же оказал помощь при подписании договора. И вот теперь, я снимаю квартиру без комиссии, от собственника, с хорошим ремонтом, в новом доме по приемлемой цене.
Dmitry Kovtun
Клиентоориентированность — на высшем уровне. И форма связи любая.. мне было удобно общаться через почту — не проблема: в будни и даже в выходные, и днем и ночью — постоянно на связи) В какой-то момент даже подумала, что личный помощник никогда не отдыхает))
Teresa Olehnovich
Услуга «Личный помощник» — это не только дешевле, чем платить деньги каким-то непонятным посредникам или риэлторам, но и гарантированная ежедневная консультация от грамотного специалиста. Одним словом, всё очень понравилось.
Алина Василевская
Моя оценка 5! Нашли с личным помощником то, что нужно!! Удобно и безопасно. Отличный, проверенный сайт! Спасибо, Локалс!
Еленка Потапова
Искал с помощью услуги «Личный помощник». Сервис справился с поставленной перед ним задачей — найти мне жильё в короткие сроки (дедлайн 1,5 недели). Спасибо!
Dimas
У меня только положительные впечатления остались. Мне присылал варианты каждый день, иногда даже дважды. Всегда оперативно реагировал на мои пожелания. В итоге, так и сняли одну из предложенных квартир и очень довольны.
Любовь












