












































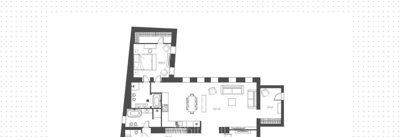
5-к кв. Москва Фурманный пер., 10 (215.0 м²)
Бонус партнёрам 50%. Дизайнерская квартира площадью 215 м² в камерном особняке на Чистых прудах. Выполнена премиальная отделка в стиле современной классики. Благодаря большому количеству окон пространство наполнено светом. Квартира полностью укомплектована мебелью и бытовой техникой, встроенная кухня укомплектована техникой Neff и кофемашиной.
Спланирована просторная гостиная-столовая-кухня, мастер-спальня со своей гардеробной и ванной комнатой, 2 спальни, ванная комната с ванной и душевой, гостевой санузел с постирочной, гардеробные, холл. Окна выходят на две стороны, с видом в переулок и во двор. Установлена система кондиционирования. Стихийный паркинг во дворе.
Комментарий эксперта. Меня зовут Ольга Метелёва — брокер компании Whitewill. Я отвечаю за аренду этого лота. Свяжитесь со мной, чтобы получить расширенную презентацию, больше фотографий или договориться о просмотре. Могу провести экскурсию по локации и познакомить вас с этим домом.
ID 1 397.
Удобства
Балкон
Посудомоечная машина
Холодильник
Стиральная машина
Телевизор
Нагреватель воды
Кондиционер
Особенности
Можно курить
Подходит для мероприятий
Можно с животными
Подходит для семьи с детьми
Другие 5-ти комнатные квартиры
Последние добавленные апартаменты
1-комнатная квартира: посёлок Коммунарка, Бачуринская улица, 4к3 (39.6 м²)
О нас говорят
Хорошая услуга «Личный помощник». За вами закрепляют менеджера, который подбирает для вас варианты, помогает с подписанием договора и проверкой квартиры. Константин оперативно отвечал на наши вопросы и подстраивался под возникающие в ходе поиска требования.
Ins Fairy
Нашел себе отличную квартиру в Мск на Локалс. В этот раз пользовался услугой Личный помощник; Каждый день мне присылали варианты и по моим ответам уточняли мои критерии. В итоге выбрали прямо то, что мне было надо!
Ilya Malov
Отличный сервис! Нужный вариант подобрали уже на следующий день после обращения. Документы с арендодателем я подписала в конце той же недели и сразу переехала. Квартира после ремонта, все новое, я — первый арендатор, до метро 15 минут пешком. Это потрясающе!
Maria Levkina
Поиски квартиры заняли ровно неделю, Андрей проверял все варианты и составлял подробное описание. Так же оказал помощь при подписании договора. И вот теперь, я снимаю квартиру без комиссии, от собственника, с хорошим ремонтом, в новом доме по приемлемой цене.
Dmitry Kovtun
Клиентоориентированность — на высшем уровне. И форма связи любая.. мне было удобно общаться через почту — не проблема: в будни и даже в выходные, и днем и ночью — постоянно на связи) В какой-то момент даже подумала, что личный помощник никогда не отдыхает))
Teresa Olehnovich
Услуга «Личный помощник» — это не только дешевле, чем платить деньги каким-то непонятным посредникам или риэлторам, но и гарантированная ежедневная консультация от грамотного специалиста. Одним словом, всё очень понравилось.
Алина Василевская
Моя оценка 5! Нашли с личным помощником то, что нужно!! Удобно и безопасно. Отличный, проверенный сайт! Спасибо, Локалс!
Еленка Потапова
Искал с помощью услуги «Личный помощник». Сервис справился с поставленной перед ним задачей — найти мне жильё в короткие сроки (дедлайн 1,5 недели). Спасибо!
Dimas
У меня только положительные впечатления остались. Мне присылал варианты каждый день, иногда даже дважды. Всегда оперативно реагировал на мои пожелания. В итоге, так и сняли одну из предложенных квартир и очень довольны.
Любовь












