4-к кв. Москва ул. Добролюбова, 23 (67.0 м²)

Просторная 4-комнатная квартира с душой в настоящей, старой Москве
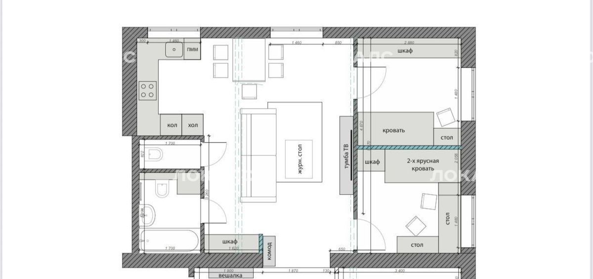
В 22 году квартира была полностью реконструирована. Возведены новые стены, залит идеально ровный пол, электрика, сантехника и прочее. Что в итоге?
Представьте: вы просыпаетесь в светлой спальне с трехметровыми потолками, завариваете кофе на просторной кухне и любуетесь видом на Останкинскую башню из окна. Всего 5 минут до метро и вы в центре столицы, но вернувшись домой, попадаете в тихий зеленый оазис с уютными дворами и парком у дома.
Это не просто квартира это редкая находка для тех, кто ценит:
- Пространство с уникальной планировкой, которую не встретишь в типовых домах
- Высота настоящих 3-метровых потолков в кирпичной пятиэтажке сталинской эпохи
- Комфорт капитального ремонта, где продумана каждая деталь
- Видовую характеристику панорама с узнаваемым символом Москвы
Три отдельные спальни идеально подойдут для большой семьи или гостей, а просторная кухня-гостиная станет сердцем вашего дома. Здесь так приятно собираться за ужином, наблюдая как зажигаются огни телебашни в вечерних сумерках.
С таким расположением (10 минут до центра на метро!) вам будут доступны все преимущества столичной жизни без её суеты. Магазины, кафе и вся необходимая инфраструктура буквально под рукой.
Особенности
Последние добавленные апартаменты
2-комнатная квартира: Москва, Большой Саввинский переулок, 10с1 (45 м²)
О нас говорят
Хорошая услуга «Личный помощник». За вами закрепляют менеджера, который подбирает для вас варианты, помогает с подписанием договора и проверкой квартиры. Константин оперативно отвечал на наши вопросы и подстраивался под возникающие в ходе поиска требования.
Ins Fairy
Нашел себе отличную квартиру в Мск на Локалс. В этот раз пользовался услугой Личный помощник; Каждый день мне присылали варианты и по моим ответам уточняли мои критерии. В итоге выбрали прямо то, что мне было надо!
Ilya Malov
Отличный сервис! Нужный вариант подобрали уже на следующий день после обращения. Документы с арендодателем я подписала в конце той же недели и сразу переехала. Квартира после ремонта, все новое, я — первый арендатор, до метро 15 минут пешком. Это потрясающе!
Maria Levkina
Поиски квартиры заняли ровно неделю, Андрей проверял все варианты и составлял подробное описание. Так же оказал помощь при подписании договора. И вот теперь, я снимаю квартиру без комиссии, от собственника, с хорошим ремонтом, в новом доме по приемлемой цене.
Dmitry Kovtun
Клиентоориентированность — на высшем уровне. И форма связи любая.. мне было удобно общаться через почту — не проблема: в будни и даже в выходные, и днем и ночью — постоянно на связи) В какой-то момент даже подумала, что личный помощник никогда не отдыхает))
Teresa Olehnovich
Услуга «Личный помощник» — это не только дешевле, чем платить деньги каким-то непонятным посредникам или риэлторам, но и гарантированная ежедневная консультация от грамотного специалиста. Одним словом, всё очень понравилось.
Алина Василевская
Моя оценка 5! Нашли с личным помощником то, что нужно!! Удобно и безопасно. Отличный, проверенный сайт! Спасибо, Локалс!
Еленка Потапова
Искал с помощью услуги «Личный помощник». Сервис справился с поставленной перед ним задачей — найти мне жильё в короткие сроки (дедлайн 1,5 недели). Спасибо!
Dimas
У меня только положительные впечатления остались. Мне присылал варианты каждый день, иногда даже дважды. Всегда оперативно реагировал на мои пожелания. В итоге, так и сняли одну из предложенных квартир и очень довольны.
Любовь