








3-комнатная квартира: Москва, 12-й проезд Марьиной Рощи, 8с2 (80 м²)
Предлагаем 3-х комнатные апартаменты общей площадью 80 кв.м, расположенные на 3 этаже четырехэтажного монолитно- кирпичного дома в ЛОФТ квартале STUDIO-12, созданного по образцу малоэтажной лондонской архитектуры.
Жилой комплекс Studio 12 – это уютный лофт-квартал из трёх 4-этажных жилых корпусов с апартаментами бизнес-класса, расположенный в районе Марьина Роща
На внутренней территории жилого комплекса создан искусственный ландшафт с островками зелени и молодыми деревьями.
В пешей доступности находятся фитнесс клуб WorldClass, ТЦ
Капитолий с магазинами Ашан, М-Видео и др, кинотеатром.
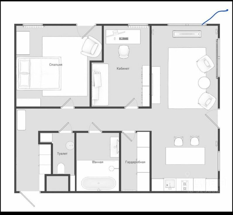
Апартаменты включают гостиную, кухню, спальню, кабинет, гардеробную, два сан.узла, прихожую, два балкона. Для отделки использованы качественные материалы, дубовый паркет, наруральный камень на подоконниках и кухне.
Окна выходят на две стороны- северо-запад и юго-восток.
Аппартаменты оснащены сплит-системой канального кондиционирования с контролем температуры и влажности.
На территории комплекса осуществляется круглосуточная охрана, включая территорию парковки.
Особенности
Другие 3-х комнатные квартиры
3-комнатная квартира: Москва, Большая Пионерская улица, 10-12с1 (82 м²)
Последние добавленные апартаменты
О нас говорят
Хорошая услуга «Личный помощник». За вами закрепляют менеджера, который подбирает для вас варианты, помогает с подписанием договора и проверкой квартиры. Константин оперативно отвечал на наши вопросы и подстраивался под возникающие в ходе поиска требования.
Ins Fairy
Нашел себе отличную квартиру в Мск на Локалс. В этот раз пользовался услугой Личный помощник; Каждый день мне присылали варианты и по моим ответам уточняли мои критерии. В итоге выбрали прямо то, что мне было надо!
Ilya Malov
Отличный сервис! Нужный вариант подобрали уже на следующий день после обращения. Документы с арендодателем я подписала в конце той же недели и сразу переехала. Квартира после ремонта, все новое, я — первый арендатор, до метро 15 минут пешком. Это потрясающе!
Maria Levkina
Поиски квартиры заняли ровно неделю, Андрей проверял все варианты и составлял подробное описание. Так же оказал помощь при подписании договора. И вот теперь, я снимаю квартиру без комиссии, от собственника, с хорошим ремонтом, в новом доме по приемлемой цене.
Dmitry Kovtun
Клиентоориентированность — на высшем уровне. И форма связи любая.. мне было удобно общаться через почту — не проблема: в будни и даже в выходные, и днем и ночью — постоянно на связи) В какой-то момент даже подумала, что личный помощник никогда не отдыхает))
Teresa Olehnovich
Услуга «Личный помощник» — это не только дешевле, чем платить деньги каким-то непонятным посредникам или риэлторам, но и гарантированная ежедневная консультация от грамотного специалиста. Одним словом, всё очень понравилось.
Алина Василевская
Моя оценка 5! Нашли с личным помощником то, что нужно!! Удобно и безопасно. Отличный, проверенный сайт! Спасибо, Локалс!
Еленка Потапова
Искал с помощью услуги «Личный помощник». Сервис справился с поставленной перед ним задачей — найти мне жильё в короткие сроки (дедлайн 1,5 недели). Спасибо!
Dimas
У меня только положительные впечатления остались. Мне присылал варианты каждый день, иногда даже дважды. Всегда оперативно реагировал на мои пожелания. В итоге, так и сняли одну из предложенных квартир и очень довольны.
Любовь












