3-к кв. Москва Зеленый просп., 6К1 (73.0 м²)
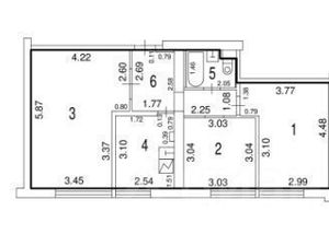
Продается великолепная 3-комнатная квартира, расположенная на 11 этаже 12-этажного панельного дома, построенного в 1985 году. Общая площадь квартиры составляет 73 кв. м, кухня — 8.3 кв. м. Высокие потолки 2.64 метра создают ощущение простора и света.
Просмотр квартиры невозможен, продается с жильцами!!!
В квартире выполнен качественный евроремонт. Просторная планировка включает три изолированные комнаты, что идеально подходит для семьи. В квартире есть одна лоджия, выходящая на улицу, и вторая — во двор, где можно насладиться утренним кофе. Ванная комната и санузел раздельные, что добавляет удобства.
Дом в хорошем состоянии, оборудован двумя пассажирскими лифтами и мусоропроводом, что делает проживание еще более комфортным. Для авто предусмотрена парковка у дома.
Район отлично развит: всего в 9 минутах пешком находится станция метро Перово, что позволяет быстро добраться до любой точки города. В непосредственной близости расположены школы, магазины и другие объекты инфраструктуры, необходимые для комфортной жизни.
Квартира продается без обременений, все документы готовы к сделке. Возможна покупка в ипотеку.
Приглашаем вас на просмотр! Записывайтесь заранее, чтобы оценить все преимущества этой замечательной квартиры лично.
Особенности
Другие 3-х комнатные квартиры
Последние добавленные апартаменты
О нас говорят
Хорошая услуга «Личный помощник». За вами закрепляют менеджера, который подбирает для вас варианты, помогает с подписанием договора и проверкой квартиры. Константин оперативно отвечал на наши вопросы и подстраивался под возникающие в ходе поиска требования.
Ins Fairy
Нашел себе отличную квартиру в Мск на Локалс. В этот раз пользовался услугой Личный помощник; Каждый день мне присылали варианты и по моим ответам уточняли мои критерии. В итоге выбрали прямо то, что мне было надо!
Ilya Malov
Отличный сервис! Нужный вариант подобрали уже на следующий день после обращения. Документы с арендодателем я подписала в конце той же недели и сразу переехала. Квартира после ремонта, все новое, я — первый арендатор, до метро 15 минут пешком. Это потрясающе!
Maria Levkina
Поиски квартиры заняли ровно неделю, Андрей проверял все варианты и составлял подробное описание. Так же оказал помощь при подписании договора. И вот теперь, я снимаю квартиру без комиссии, от собственника, с хорошим ремонтом, в новом доме по приемлемой цене.
Dmitry Kovtun
Клиентоориентированность — на высшем уровне. И форма связи любая.. мне было удобно общаться через почту — не проблема: в будни и даже в выходные, и днем и ночью — постоянно на связи) В какой-то момент даже подумала, что личный помощник никогда не отдыхает))
Teresa Olehnovich
Услуга «Личный помощник» — это не только дешевле, чем платить деньги каким-то непонятным посредникам или риэлторам, но и гарантированная ежедневная консультация от грамотного специалиста. Одним словом, всё очень понравилось.
Алина Василевская
Моя оценка 5! Нашли с личным помощником то, что нужно!! Удобно и безопасно. Отличный, проверенный сайт! Спасибо, Локалс!
Еленка Потапова
Искал с помощью услуги «Личный помощник». Сервис справился с поставленной перед ним задачей — найти мне жильё в короткие сроки (дедлайн 1,5 недели). Спасибо!
Dimas
У меня только положительные впечатления остались. Мне присылал варианты каждый день, иногда даже дважды. Всегда оперативно реагировал на мои пожелания. В итоге, так и сняли одну из предложенных квартир и очень довольны.
Любовь












