3-к кв. Москва Дубининская ул., 59А (81.0 м²)
Вашему вниманию предлагается превосходная 3-х комнатная квартира, (жилое помещение) в доме бизнес-класса, ЖК Павелецкая Сити, построенном в 2023 году, по индивидуальному проекту, площадью 81/40/25,1 всего в 17 минутах ходьбы от станции метро Павелецкая, выход 3. Квартира расположена на 4-ом этаже монолитного дома, в престижном районе Даниловский.
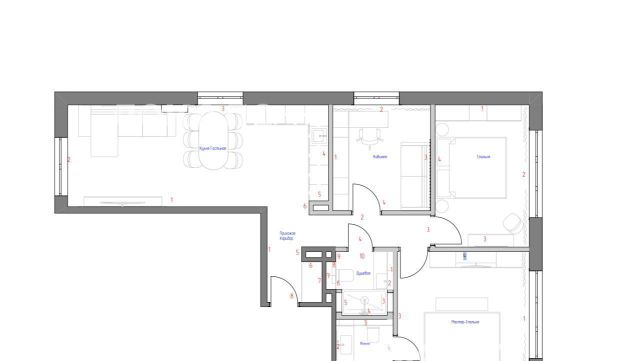
Квартира с функциональной планировкой, распашонка, окна смотрят во двор, 3 изолированные комнаты, мастер спальня, оборудована собственным санузлом и ванной -17,2 кв.м., спальня 12,8 кв.м., кабинет 9,95 кв.м. Высота потолков 3 метра, современная кухня-гостиная 25,1 кв.м. Второй санузел (гостевой), оборудован душевой кабиной.
Квартира с новым дизайнерским ремонтом; цвета, фактуры, стиль, еще долгое время не потеряют своей актуальности. Функциональная планировка с продуманными местами для хранения скрывает визуальный шум, экономит время на поиск необходимого и облегчает уборку. Квартира полностью укомплектована новейшей бытовой техникой, включая посудомоечную и стиральную машину, холодильник, духовой шкаф, вытяжку, установлены кондиционеры в каждой комнате.
Красивая входная группа, видео-наблюдение, закрытая внутренняя территория дома, лифты: пассажирский и грузовой, солидные соседи.
Развитая инфраструктура района: школы, детские сады, банки, аптеки, социальные и экстренные службы, поликлиника для взрослых, стоматология, пункты выдачи заказов, продовольственные магазины, фитнес-клуб, кафе и рестораны, салоны красоты. Все это шаговой доступности от дома.
Хорошая транспортная доступность: удобный выезд на Садовое кольцо, ТТК, Варшавское шоссе.
Квартира соответствует фотографиям. Только после ремонта, ранее не сдавалась. Строго без вечеринок! Курение в квартире запрещено!
Договор заключается исключительно с арендаторами которые будут непосредственно проживать в квартире, договор готовы подписать с физ. лицом. Только на длительный срок, без маленьких детей, без животных.
Примечание: у собственника могут быть дополнительные пожелания к жильцам - обсудите их по телефону.
Удобства
Балкон
Посудомоечная машина
Холодильник
Стиральная машина
Телевизор
Нагреватель воды
Кондиционер
Особенности
Можно курить
Подходит для мероприятий
Можно с животными
Подходит для семьи с детьми
Другие 3-х комнатные квартиры
Последние добавленные апартаменты
О нас говорят
Хорошая услуга «Личный помощник». За вами закрепляют менеджера, который подбирает для вас варианты, помогает с подписанием договора и проверкой квартиры. Константин оперативно отвечал на наши вопросы и подстраивался под возникающие в ходе поиска требования.
Ins Fairy
Нашел себе отличную квартиру в Мск на Локалс. В этот раз пользовался услугой Личный помощник; Каждый день мне присылали варианты и по моим ответам уточняли мои критерии. В итоге выбрали прямо то, что мне было надо!
Ilya Malov
Отличный сервис! Нужный вариант подобрали уже на следующий день после обращения. Документы с арендодателем я подписала в конце той же недели и сразу переехала. Квартира после ремонта, все новое, я — первый арендатор, до метро 15 минут пешком. Это потрясающе!
Maria Levkina
Поиски квартиры заняли ровно неделю, Андрей проверял все варианты и составлял подробное описание. Так же оказал помощь при подписании договора. И вот теперь, я снимаю квартиру без комиссии, от собственника, с хорошим ремонтом, в новом доме по приемлемой цене.
Dmitry Kovtun
Клиентоориентированность — на высшем уровне. И форма связи любая.. мне было удобно общаться через почту — не проблема: в будни и даже в выходные, и днем и ночью — постоянно на связи) В какой-то момент даже подумала, что личный помощник никогда не отдыхает))
Teresa Olehnovich
Услуга «Личный помощник» — это не только дешевле, чем платить деньги каким-то непонятным посредникам или риэлторам, но и гарантированная ежедневная консультация от грамотного специалиста. Одним словом, всё очень понравилось.
Алина Василевская
Моя оценка 5! Нашли с личным помощником то, что нужно!! Удобно и безопасно. Отличный, проверенный сайт! Спасибо, Локалс!
Еленка Потапова
Искал с помощью услуги «Личный помощник». Сервис справился с поставленной перед ним задачей — найти мне жильё в короткие сроки (дедлайн 1,5 недели). Спасибо!
Dimas
У меня только положительные впечатления остались. Мне присылал варианты каждый день, иногда даже дважды. Всегда оперативно реагировал на мои пожелания. В итоге, так и сняли одну из предложенных квартир и очень довольны.
Любовь












