2-к кв. Москва Дорожная ул., 46к3 (50.7 м²)

Предлагаю Вашему вниманию светлую, уютную, новую двухкомнатную квартиру в ЖК Ютаново.
Лучшее предложение в этом доме!
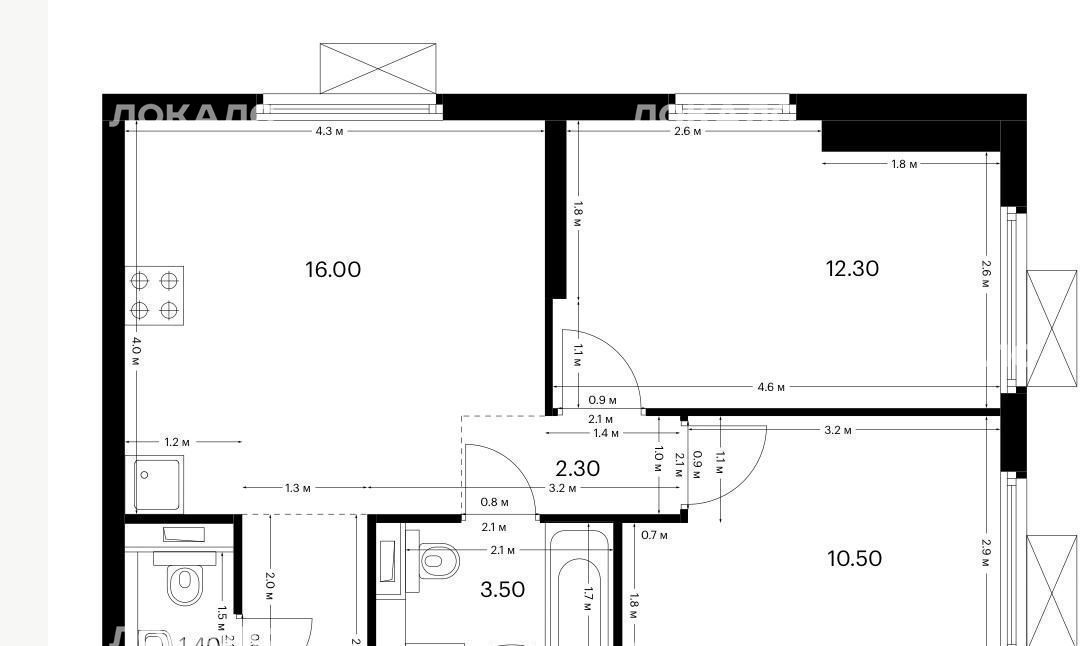
Просторная 2-х комнатная квартира. Изолированные комнаты, кухня - гостиная, два санузла.
Окна выходят на разные стороны.
Площадь квартиры 50,70 кв.м:
- жилые комнаты 12,3 кв. м , 10,50 кв.м,
- кухня- гостинная 16 кв. м.
Квартира сдаётся полностью пустая. Ремонт от застройщика.
Кухонную мебель возможно купить в счёт оплаты первого месяца аренды.
Отлично развита инфраструктура: магазины, детские сады, школы, торговые центры, Аннинский лесопарк, кафе, пункты выдачи заказов, аптеки, пекарни и многое другое для комфортного проживания.
Удобный выезд на Варшавское шоссе, 5 минут пешком до станции МЦД 2, 16 минут пешком метро Аннино,
Внутренний двор закрыт для проезда машин и входа посторонних. Просторные, светлые подъезды.
В стоимость аренды не входит оплата электроэнергии и водоснабжения по счётчикам.
Квартира сдаётся на длительный срок.
Удобства
Балкон
Посудомоечная машина
Холодильник
Стиральная машина
Телевизор
Нагреватель воды
Кондиционер
Особенности
Можно курить
Подходит для мероприятий
Можно с животными
Подходит для семьи с детьми
Другие 2-х комнатные квартиры
Последние добавленные апартаменты
О нас говорят
Хорошая услуга «Личный помощник». За вами закрепляют менеджера, который подбирает для вас варианты, помогает с подписанием договора и проверкой квартиры. Константин оперативно отвечал на наши вопросы и подстраивался под возникающие в ходе поиска требования.
Ins Fairy
Нашел себе отличную квартиру в Мск на Локалс. В этот раз пользовался услугой Личный помощник; Каждый день мне присылали варианты и по моим ответам уточняли мои критерии. В итоге выбрали прямо то, что мне было надо!
Ilya Malov
Отличный сервис! Нужный вариант подобрали уже на следующий день после обращения. Документы с арендодателем я подписала в конце той же недели и сразу переехала. Квартира после ремонта, все новое, я — первый арендатор, до метро 15 минут пешком. Это потрясающе!
Maria Levkina
Поиски квартиры заняли ровно неделю, Андрей проверял все варианты и составлял подробное описание. Так же оказал помощь при подписании договора. И вот теперь, я снимаю квартиру без комиссии, от собственника, с хорошим ремонтом, в новом доме по приемлемой цене.
Dmitry Kovtun
Клиентоориентированность — на высшем уровне. И форма связи любая.. мне было удобно общаться через почту — не проблема: в будни и даже в выходные, и днем и ночью — постоянно на связи) В какой-то момент даже подумала, что личный помощник никогда не отдыхает))
Teresa Olehnovich
Услуга «Личный помощник» — это не только дешевле, чем платить деньги каким-то непонятным посредникам или риэлторам, но и гарантированная ежедневная консультация от грамотного специалиста. Одним словом, всё очень понравилось.
Алина Василевская
Моя оценка 5! Нашли с личным помощником то, что нужно!! Удобно и безопасно. Отличный, проверенный сайт! Спасибо, Локалс!
Еленка Потапова
Искал с помощью услуги «Личный помощник». Сервис справился с поставленной перед ним задачей — найти мне жильё в короткие сроки (дедлайн 1,5 недели). Спасибо!
Dimas
У меня только положительные впечатления остались. Мне присылал варианты каждый день, иногда даже дважды. Всегда оперативно реагировал на мои пожелания. В итоге, так и сняли одну из предложенных квартир и очень довольны.
Любовь