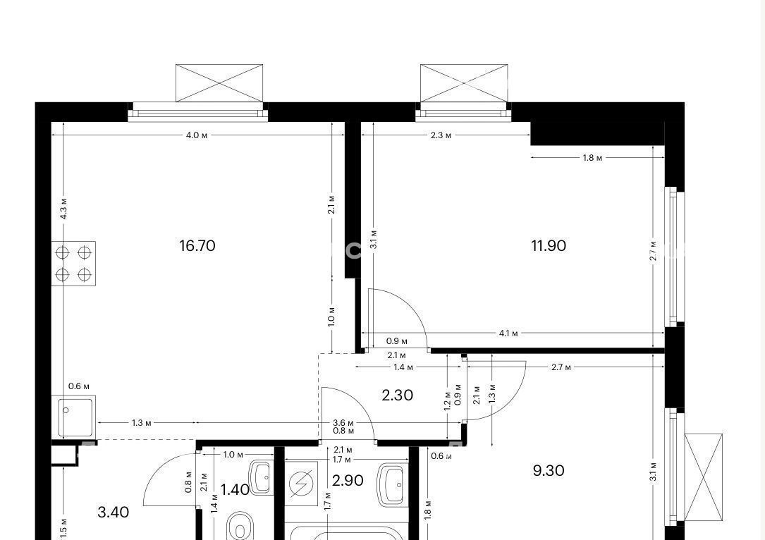
2-к кв. Москва Дорожная ул., 46к1 (48.0 м²)

Продается уютная двухкомнатная квартира в Москве на Дорожной улице, 46к1. Общая площадь составляет 48 кв. м, жилая площадь — 23 кв. м, а просторная кухня занимает 17 кв. м. Квартира расположена на 18 этаже 33-этажного дома, построенного в 2024 году. До метро "Красный Строитель" всего 10 минут пешком.
В квартире сделан дизайнерский ремонт, поэтому можно сразу заезжать и жить. Комнаты светлые и просторные, что создает атмосферу уюта и комфорта. Санузел раздельный, что очень удобно для семьи. Окна выходят как на улицу, так и во двор, поэтому в квартире всегда много света.
Дом в отличном состоянии, с современными лифтами — два пассажирских и два грузовых, а также оборудован пандусом для удобства. Подземная парковка решает вопрос с местом для автомобиля, что особенно актуально в городе.
Рядом с домом есть все необходимое для комфортной жизни: школы, детские сады, магазины. Это отличный район для жизни с детьми, а также для тех, кто ценит удобство и развитую инфраструктуру.
Квартира продается без посредников, от собственника. Возможна ипотека, все документы готовы к сделке. Квартира юридически чистая, без обременений. Это отличное предложение для тех, кто хочет купить жилье без лишних хлопот.
Приглашаю на просмотр в удобное для вас время. Звоните и записывайтесь на осмотр, чтобы оценить все преимущества этой замечательной квартиры.
Особенности
Другие 2-х комнатные квартиры
Последние добавленные апартаменты
О нас говорят
Хорошая услуга «Личный помощник». За вами закрепляют менеджера, который подбирает для вас варианты, помогает с подписанием договора и проверкой квартиры. Константин оперативно отвечал на наши вопросы и подстраивался под возникающие в ходе поиска требования.
Ins Fairy
Нашел себе отличную квартиру в Мск на Локалс. В этот раз пользовался услугой Личный помощник; Каждый день мне присылали варианты и по моим ответам уточняли мои критерии. В итоге выбрали прямо то, что мне было надо!
Ilya Malov
Отличный сервис! Нужный вариант подобрали уже на следующий день после обращения. Документы с арендодателем я подписала в конце той же недели и сразу переехала. Квартира после ремонта, все новое, я — первый арендатор, до метро 15 минут пешком. Это потрясающе!
Maria Levkina
Поиски квартиры заняли ровно неделю, Андрей проверял все варианты и составлял подробное описание. Так же оказал помощь при подписании договора. И вот теперь, я снимаю квартиру без комиссии, от собственника, с хорошим ремонтом, в новом доме по приемлемой цене.
Dmitry Kovtun
Клиентоориентированность — на высшем уровне. И форма связи любая.. мне было удобно общаться через почту — не проблема: в будни и даже в выходные, и днем и ночью — постоянно на связи) В какой-то момент даже подумала, что личный помощник никогда не отдыхает))
Teresa Olehnovich
Услуга «Личный помощник» — это не только дешевле, чем платить деньги каким-то непонятным посредникам или риэлторам, но и гарантированная ежедневная консультация от грамотного специалиста. Одним словом, всё очень понравилось.
Алина Василевская
Моя оценка 5! Нашли с личным помощником то, что нужно!! Удобно и безопасно. Отличный, проверенный сайт! Спасибо, Локалс!
Еленка Потапова
Искал с помощью услуги «Личный помощник». Сервис справился с поставленной перед ним задачей — найти мне жильё в короткие сроки (дедлайн 1,5 недели). Спасибо!
Dimas
У меня только положительные впечатления остались. Мне присылал варианты каждый день, иногда даже дважды. Всегда оперативно реагировал на мои пожелания. В итоге, так и сняли одну из предложенных квартир и очень довольны.
Любовь