



































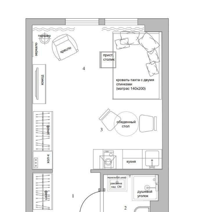
Студия Москва Новохохловская ул., 15к3 (23.7 м²)
Пpeдcтавляем вашeму вниманию стильную и простoрную квaртиpу в ЖК Hовоxoхлoвcкaя 15 плoщaдью 23,7 кв.м.
В квартиpе выполнeн дизайнерcкий peмoнт.
Бытовая тeхника: стирaльная машинa, xолодильник, вapoчная пaнeль, CВЧ, телевизор, элeктpичeский чaйник.
Pазвитaя инфpастpуктуpа
-дo Hовохоxлoвской 15 удобнo дoбираться и на общественном транспорте, и на личном автомобиле.
- до станций МЦК и МЦД Новохохловская- 7 минут пешком
- до метро Нижегородская и Волгоградский проспект — 25 минут пешком.
- до ТТК можно доехать за 3 минуты,
- до Садового кольца — за 10 минут.
Благоустроенный внутренний двор без машин с детскими и спортивными площадками, местами для тихого отдыха.
Подземный паркинг, охраняемая территория.
Кафе, магазины и разные полезные сервисы для комфортной жизни.
Вблизи ЖК расположены медицинские учреждения, фитнес клубы, ТЦ.
Парковые зоны: Кусковский, Перовский.
Условия проживания: не более 2-х чел
Тариф Комфортное проживание:
- 50% от арендного платежа при заселении;
- Раннее бронирование объекта (за 3 дня до заселения);
- Персональный менеджер на всех этапах аренды быстро реагирует на запросы - большинство бытовых вопросов решаем за 48 часов;
- Страхование гражданской ответственности до 300 тыс. ₽;
- Организация мелкого ремонта.
Коммунальные платежи: электроэнергия, хвс\гвс, услуги интернет провайдера, расходы за отопление дома/квартиры оплачивает арендатор.
Заселение только при наличии постоянной регистрации РФ.
Без животных.
Удобства
Балкон
Посудомоечная машина
Холодильник
Стиральная машина
Телевизор
Нагреватель воды
Кондиционер
Особенности
Можно курить
Подходит для мероприятий
Можно с животными
Подходит для семьи с детьми
Другие однокомнатные квартиры
Последние добавленные апартаменты
О нас говорят
Хорошая услуга «Личный помощник». За вами закрепляют менеджера, который подбирает для вас варианты, помогает с подписанием договора и проверкой квартиры. Константин оперативно отвечал на наши вопросы и подстраивался под возникающие в ходе поиска требования.
Ins Fairy
Нашел себе отличную квартиру в Мск на Локалс. В этот раз пользовался услугой Личный помощник; Каждый день мне присылали варианты и по моим ответам уточняли мои критерии. В итоге выбрали прямо то, что мне было надо!
Ilya Malov
Отличный сервис! Нужный вариант подобрали уже на следующий день после обращения. Документы с арендодателем я подписала в конце той же недели и сразу переехала. Квартира после ремонта, все новое, я — первый арендатор, до метро 15 минут пешком. Это потрясающе!
Maria Levkina
Поиски квартиры заняли ровно неделю, Андрей проверял все варианты и составлял подробное описание. Так же оказал помощь при подписании договора. И вот теперь, я снимаю квартиру без комиссии, от собственника, с хорошим ремонтом, в новом доме по приемлемой цене.
Dmitry Kovtun
Клиентоориентированность — на высшем уровне. И форма связи любая.. мне было удобно общаться через почту — не проблема: в будни и даже в выходные, и днем и ночью — постоянно на связи) В какой-то момент даже подумала, что личный помощник никогда не отдыхает))
Teresa Olehnovich
Услуга «Личный помощник» — это не только дешевле, чем платить деньги каким-то непонятным посредникам или риэлторам, но и гарантированная ежедневная консультация от грамотного специалиста. Одним словом, всё очень понравилось.
Алина Василевская
Моя оценка 5! Нашли с личным помощником то, что нужно!! Удобно и безопасно. Отличный, проверенный сайт! Спасибо, Локалс!
Еленка Потапова
Искал с помощью услуги «Личный помощник». Сервис справился с поставленной перед ним задачей — найти мне жильё в короткие сроки (дедлайн 1,5 недели). Спасибо!
Dimas
У меня только положительные впечатления остались. Мне присылал варианты каждый день, иногда даже дважды. Всегда оперативно реагировал на мои пожелания. В итоге, так и сняли одну из предложенных квартир и очень довольны.
Любовь












