Апартаменты - Лофт на Тульской
Уникальный 3-уровневый лофт-апартамент, расположенный в историческом здании 19 века.
Эти просторные и светлые апартаменты идеально подойдут для проживания одного жильца или молодой пары.
Также — это отличный вариант для инвестиций в арендный бизнес.
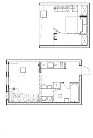
1 уровень (24 м²) — прихожая, ванная/туалет, кухня, гостиная.
2 уровень (16 м²) — спальня и рабочая зона с большим столом.
3 уровень (4 м²) — гардеробная.
Квартира полностью обставлена современной мебелью, в том числе сделанной на заказ. Есть вся необходимая бытовая техника (холодильник Liebherr, посудомоечная машина Electrolux, стиральная машина с сушкой Bosch, духовка-свч и варочная панель Bosch, компактный пылесос, система очистки питьевой воды «Аквафор Морион» (обратный осмос), 2 кондиционера, которые обслуживают всю доступную площадь. Установлена система притока свежего воздуха ТИОН. В квартире всегда будет чистый, свежий воздух без необходимости открывать окна. Квартира очень светлая. Большие окна и большое количество светильников по всем зонам. Много места для хранения одежды и мелочей. В квартире тихо, так как окна выходят во двор, а также есть возможность не открывать окно и проветривать, используя систему ТИОН.
До метро 7 мин пешком. Всё есть рядом: отличный Даниловский рынок, магазины продуктов, торговый центр с кинотеатром, до Нескучного сада и Парка Горького тоже недалеко. При желании можно арендовать парковочное место на территории жилого комплекса. Есть охрана и домофон. Прямо на территории комплекса есть всё необходимое для жизни и работы: кафе и салоны красоты, магазинчики одежды и аксессуаров. Летом можно посидеть в небольшом сквере, а зимой территория всегда празднично украшена.
Особенности
Окна на улицу: Да
Окна во двор: Нет
Мусоропровод: Нет
Пандус: Нет
Балконы: Нет
Лоджии: Нет
Раздельный санузел: Нет
Совмещенный санузел: 1
Пассажирский лифт: Нет
Грузовой лифт: Нет
Ремонт: Дизайнерский
Парковка: Наземная
Другие однокомнатные квартиры
Последние добавленные апартаменты
О нас говорят
Хорошая услуга «Личный помощник». За вами закрепляют менеджера, который подбирает для вас варианты, помогает с подписанием договора и проверкой квартиры. Константин оперативно отвечал на наши вопросы и подстраивался под возникающие в ходе поиска требования.
Ins Fairy
Нашел себе отличную квартиру в Мск на Локалс. В этот раз пользовался услугой Личный помощник; Каждый день мне присылали варианты и по моим ответам уточняли мои критерии. В итоге выбрали прямо то, что мне было надо!
Ilya Malov
Отличный сервис! Нужный вариант подобрали уже на следующий день после обращения. Документы с арендодателем я подписала в конце той же недели и сразу переехала. Квартира после ремонта, все новое, я — первый арендатор, до метро 15 минут пешком. Это потрясающе!
Maria Levkina
Поиски квартиры заняли ровно неделю, Андрей проверял все варианты и составлял подробное описание. Так же оказал помощь при подписании договора. И вот теперь, я снимаю квартиру без комиссии, от собственника, с хорошим ремонтом, в новом доме по приемлемой цене.
Dmitry Kovtun
Клиентоориентированность — на высшем уровне. И форма связи любая.. мне было удобно общаться через почту — не проблема: в будни и даже в выходные, и днем и ночью — постоянно на связи) В какой-то момент даже подумала, что личный помощник никогда не отдыхает))
Teresa Olehnovich
Услуга «Личный помощник» — это не только дешевле, чем платить деньги каким-то непонятным посредникам или риэлторам, но и гарантированная ежедневная консультация от грамотного специалиста. Одним словом, всё очень понравилось.
Алина Василевская
Моя оценка 5! Нашли с личным помощником то, что нужно!! Удобно и безопасно. Отличный, проверенный сайт! Спасибо, Локалс!
Еленка Потапова
Искал с помощью услуги «Личный помощник». Сервис справился с поставленной перед ним задачей — найти мне жильё в короткие сроки (дедлайн 1,5 недели). Спасибо!
Dimas
У меня только положительные впечатления остались. Мне присылал варианты каждый день, иногда даже дважды. Всегда оперативно реагировал на мои пожелания. В итоге, так и сняли одну из предложенных квартир и очень довольны.
Любовь












