
















































5-к кв. Москва ул. Корабельная, 17к2 (132.3 м²)
Продается просторная квартира в современном доме, с реализованным дизайнерским ремонтом от профессионального бюро, расположенная в районе Нагатинский Затон.
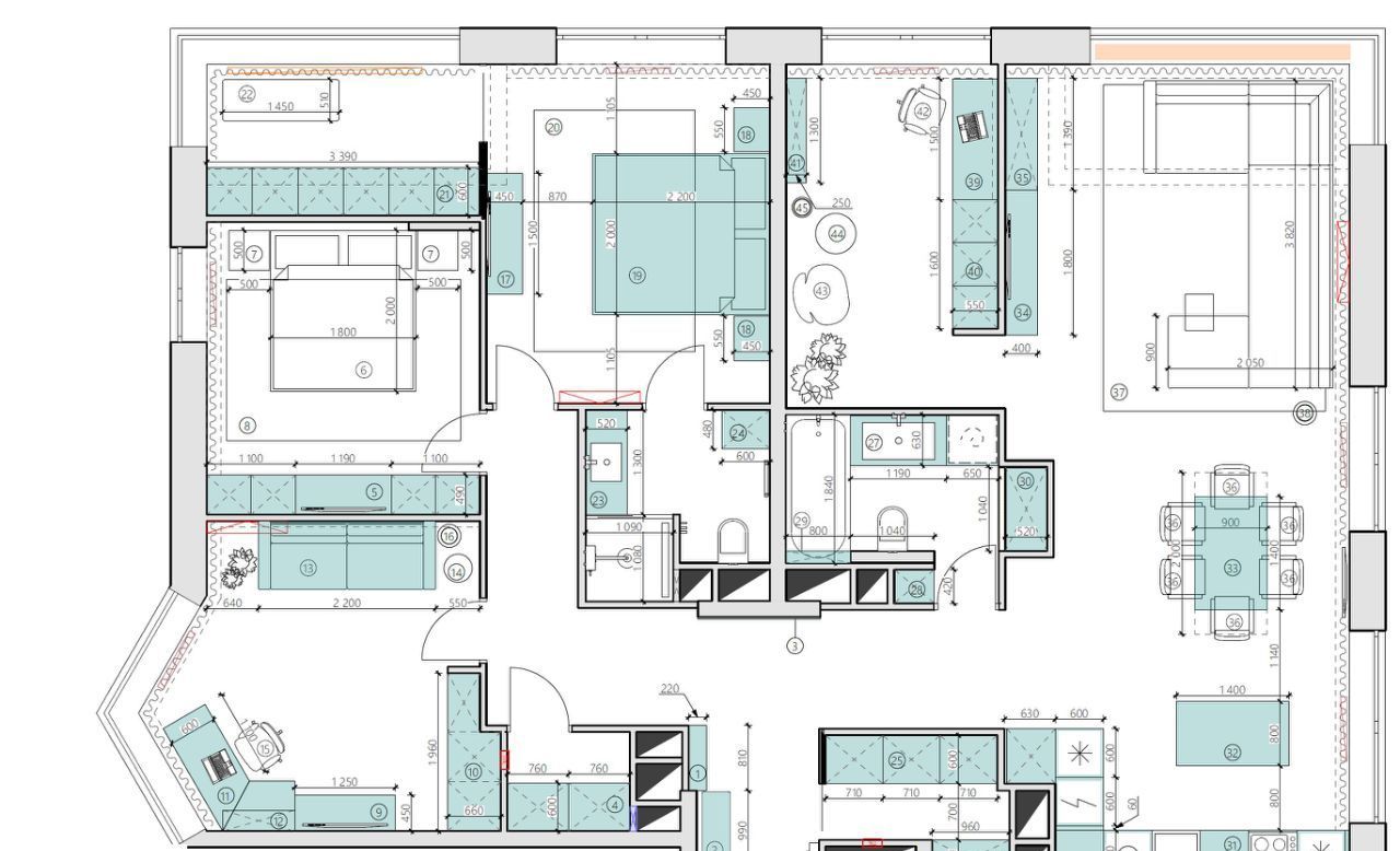
Общая площадь: 132.3 м, состоящая из двух квартир (двухкомнатная + двухкомнатная). Продаются в объединенном виде.
Также имеется подземный паркинг и продается *(при необходимости)- отдельно.
В стоимость входит вся встроенная мебель, текстиль.
В проекте реализовано много идей с 3D гипсовыми панелями, скрытые плинтуса, стены обшиты натуральным шпоном, декоративная штукатурка, электропривод штор, вся мебель встроенная. Кондиционирование Mitsubishi Electric. Выполнена правильная коллекторная разводка труб от главного устройства к отдельным потребителям. Дорогостоящие радиаторы arbonia.
Ванна Villeroy & Boch. Дорогие смесители и т.д.
Очень продуманная до мелочей планировка, разделение общей и приватной зоны:
Гостиная, объединенная с кухней (43.1 м²).На кухне столешница и остров выполнены из дорогостоящего искусственного камня. Огромное пространство для приема гостей и семейных вечеров у камина.
Мастер-зона: Просторная спальня (14.8 м²) с мастер санузлом и отдельной гардеробной.
Гостевая комната: (12.3 м²).
Детская комната: ( 14.6м² )
Кабинет: ( 10.7м² )
ТРАНСПОРТНАЯ ДОСТУПНОСТЬ: 5 минут пешком до м. Нагатинский затон; Транспортом до м. Коломенская 15 минут. Удобный выезд на ТТК по проспекту Андропова, не загруженные набережные по направлению в центр; Лодочная станция в пешей доступности — оттуда Вы можете доплыть до центра города на речном электро-трамвае.
БЕЗОПАСНОСТЬ: в квартире, в подъезде, в общем коридоре имеется дорогостоящее видеонаблюдение с записью и с выводом в квартиру.
Концепция ЖК- двор без машин. Система пропуска. Консьерж. Видеонаблюдение.
ИНФРАСТРУКТУРА: магазины, рестораны, школы, детские сады, фитнес-центр. Скоро открытие фитнеса с бассейном в соседней очереди, различные развивающие кружки для детей. Прямо выходя из подъезда — благоустроенная набережная Москвы-реки. Парк Коломенское в пешей доступности.
Квартира продается без посредников, от собственника. Все документы готовы к сделке, возможна ипотека. Это отличный вариант для тех, кто ищет надежное и комфортное жилье в современном районе.
Не упустите возможность стать обладателем этой замечательной квартиры.
Особенности
Последние добавленные апартаменты
О нас говорят
Хорошая услуга «Личный помощник». За вами закрепляют менеджера, который подбирает для вас варианты, помогает с подписанием договора и проверкой квартиры. Константин оперативно отвечал на наши вопросы и подстраивался под возникающие в ходе поиска требования.
Ins Fairy
Нашел себе отличную квартиру в Мск на Локалс. В этот раз пользовался услугой Личный помощник; Каждый день мне присылали варианты и по моим ответам уточняли мои критерии. В итоге выбрали прямо то, что мне было надо!
Ilya Malov
Отличный сервис! Нужный вариант подобрали уже на следующий день после обращения. Документы с арендодателем я подписала в конце той же недели и сразу переехала. Квартира после ремонта, все новое, я — первый арендатор, до метро 15 минут пешком. Это потрясающе!
Maria Levkina
Поиски квартиры заняли ровно неделю, Андрей проверял все варианты и составлял подробное описание. Так же оказал помощь при подписании договора. И вот теперь, я снимаю квартиру без комиссии, от собственника, с хорошим ремонтом, в новом доме по приемлемой цене.
Dmitry Kovtun
Клиентоориентированность — на высшем уровне. И форма связи любая.. мне было удобно общаться через почту — не проблема: в будни и даже в выходные, и днем и ночью — постоянно на связи) В какой-то момент даже подумала, что личный помощник никогда не отдыхает))
Teresa Olehnovich
Услуга «Личный помощник» — это не только дешевле, чем платить деньги каким-то непонятным посредникам или риэлторам, но и гарантированная ежедневная консультация от грамотного специалиста. Одним словом, всё очень понравилось.
Алина Василевская
Моя оценка 5! Нашли с личным помощником то, что нужно!! Удобно и безопасно. Отличный, проверенный сайт! Спасибо, Локалс!
Еленка Потапова
Искал с помощью услуги «Личный помощник». Сервис справился с поставленной перед ним задачей — найти мне жильё в короткие сроки (дедлайн 1,5 недели). Спасибо!
Dimas
У меня только положительные впечатления остались. Мне присылал варианты каждый день, иногда даже дважды. Всегда оперативно реагировал на мои пожелания. В итоге, так и сняли одну из предложенных квартир и очень довольны.
Любовь












