


















4-комнатная квартира: Москва, Нижняя Красносельская улица, 35с49 (129 м²)
Двухуровневые апартаменты 129 м² с собственной террасой и панорамными видами на Москву.
Общая площадь апартаментов — 129 м², включая просторную террасу 48 м².
Пространство организовано на двух уровнях и напоминает городской пентхаус: высокий второй свет, панорамные окна и выход на большую приватную террасу.
С террасы открываются впечатляющие виды на центр Москвы и сталинские высотки. Это идеальное пространство для завтраков, ужинов с друзьями и отдыха на свежем воздухе.
Планировка
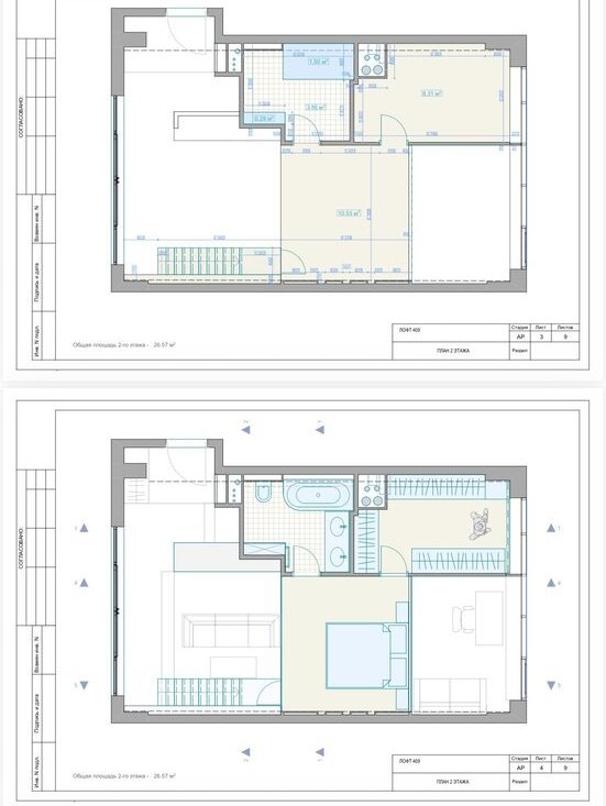
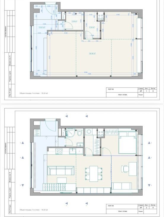
1 уровень — 55 м²
• просторная гостиная со панорамным видом
• кабинет
• гостевая спальня
• кухня, объединенная с гостиной
• обеденная зона
• гостевой санузел с душевой
• выход на террасу
• постирочная/кладовка
Панорамные окна и высокие потолки наполняют пространство светом и создают ощущение объема.
2 уровень — 27 м²
Приватная зона квартиры:
• хозяйская спальня
• внешняя перегородка со смарт-стеклом чтобы не закрывать панорамный вид на Москву
• санузел с ванной
• гардеробная комната
Терраса — 48 м²
Настоящее rooftop-пространство в центре города:
• мангал для bbq
• озеленение и цветники
• зона ужинов и отдыха
• панорамный вид на Москву
Терраса идеально подходит для приема гостей, летних ужинов и отдыха на открытом воздухе.
Интерьер
Апартаменты оформлены в современном дизайнерском стиле.
• кухня выполнена в глубоком бирюзовом оттенке
• натуральное дерево и мрамор в отделке
• встроенная кухонная техника, винный шкаф и бар
• высокие потолки и второй свет
• дизайнерские светильники
• качественные материалы и продуманная мебель
Интерьер создает атмосферу современного европейского пентхауса.
Преимущества
• двухуровневая архитектура
• собственная терраса 48 м²
• панорамные виды на центр Москвы
• собственная система вентиляции и кондиционирования
• дизайнерский интерьер
• спальня с ванной и гардеробной
• редкий формат недвижимости
Эти апартаменты созданы для тех, кто ценит простор, свет и воздух. Терраса превращает дом в продолжение неба — здесь можн
Особенности
Последние добавленные апартаменты
О нас говорят
Хорошая услуга «Личный помощник». За вами закрепляют менеджера, который подбирает для вас варианты, помогает с подписанием договора и проверкой квартиры. Константин оперативно отвечал на наши вопросы и подстраивался под возникающие в ходе поиска требования.
Ins Fairy
Нашел себе отличную квартиру в Мск на Локалс. В этот раз пользовался услугой Личный помощник; Каждый день мне присылали варианты и по моим ответам уточняли мои критерии. В итоге выбрали прямо то, что мне было надо!
Ilya Malov
Отличный сервис! Нужный вариант подобрали уже на следующий день после обращения. Документы с арендодателем я подписала в конце той же недели и сразу переехала. Квартира после ремонта, все новое, я — первый арендатор, до метро 15 минут пешком. Это потрясающе!
Maria Levkina
Поиски квартиры заняли ровно неделю, Андрей проверял все варианты и составлял подробное описание. Так же оказал помощь при подписании договора. И вот теперь, я снимаю квартиру без комиссии, от собственника, с хорошим ремонтом, в новом доме по приемлемой цене.
Dmitry Kovtun
Клиентоориентированность — на высшем уровне. И форма связи любая.. мне было удобно общаться через почту — не проблема: в будни и даже в выходные, и днем и ночью — постоянно на связи) В какой-то момент даже подумала, что личный помощник никогда не отдыхает))
Teresa Olehnovich
Услуга «Личный помощник» — это не только дешевле, чем платить деньги каким-то непонятным посредникам или риэлторам, но и гарантированная ежедневная консультация от грамотного специалиста. Одним словом, всё очень понравилось.
Алина Василевская
Моя оценка 5! Нашли с личным помощником то, что нужно!! Удобно и безопасно. Отличный, проверенный сайт! Спасибо, Локалс!
Еленка Потапова
Искал с помощью услуги «Личный помощник». Сервис справился с поставленной перед ним задачей — найти мне жильё в короткие сроки (дедлайн 1,5 недели). Спасибо!
Dimas
У меня только положительные впечатления остались. Мне присылал варианты каждый день, иногда даже дважды. Всегда оперативно реагировал на мои пожелания. В итоге, так и сняли одну из предложенных квартир и очень довольны.
Любовь












