




































4-к кв. Москва Пенягинская ул., 18 (137.8 м²)
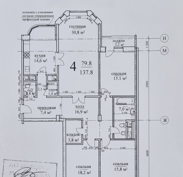
Продается великолепная по своей планировке и расположению 4-х комнатная квартира в ЖК бизнескласса Митинский оазис в экологически чистом районе Москвы Митино, закрытая территория с видеонаблюдением. Площадь квартиры по документам 132,6, фактическая 137,8 м², расположена на 3-ем этаже 8-этажной секции 4-х подъездного монолитного дома 2001 года постройки. Идеальная планировка для проживания семьи с детьми. Большая прихожая 7,4 м², холл 16,9 м², три изолированные комнаты (две детские 15,1 и 15,8 м² и родительская спальня 18,2 м²), большая гостиная 30,8 м² объединенная аркой с просторной кухней 14,6 м², также в квартире имеется гостевой санузел 1,8 м², большая ванная комната 7 м², две гардеробные комнаты 1,4 и 3,8 м², зона библиотеки, две застекленные лоджии 3,1 и 3,2 м². Окна квартиры выходят на две стороны, на тихий двор без машин и на сторону подъезда. В доме имеется двухуровневый паркинг, за отдельную плату продается большое машино-место площадью 28,8 м², расположенное на верхнем сухом уровне паркинга, также у дома имеется большая гостевая парковка. Дом очень удачно расположен внутри ЖК, через не оживленную дорогу Митинский природный ландшафтный парк площадью 140 Га со своим прудом, пешеходными дорожками, велодорожками, местами для отдыха и развлечений, зимой работают 2 катка, шикарная горка для катания на тюбингах, в 100 м от дома находится школа, рядом с домом детский сад, в шаговой доступности еще один садик и 2 бассейна. В 5 минутах ходьбы от дома расположен гипермаркет Глобус, фитнес-центр DDX, торгово-развлекательный центр Митино-парк. Отличная транспортная доступность, рядом Пятницкое, Волоколамское и Новорижское шоссе, станция Пенягино МЦД-2, рядом с домом находится остановка общественного транспорта, от которой легко добраться до ближайшей станции метро Митино за 5 минут, либо доехать до центра города. Квартира полностью оборудована импортной мебелью (обсуждается отдельно), обе детские комнаты, спальня, гостиная. Кухня привезена из Италии, сделана из натуральных фасадов дерева светящаяся акация, окна застройщика заменены на пластиковые фирмы Rehau, установлены 2 кондиционера фирмы Daikin, двери производства Испания с натуральным шпоном красного дерева. Квартира продается в связи с разъездом со взрослыми детьми, все квартиры для переезда куплены. Один и единственный взрослый собственник, свободная продажа.
Убедительная просьба агентов и риэлторов не беспокоить!
Особенности
Последние добавленные апартаменты
О нас говорят
Хорошая услуга «Личный помощник». За вами закрепляют менеджера, который подбирает для вас варианты, помогает с подписанием договора и проверкой квартиры. Константин оперативно отвечал на наши вопросы и подстраивался под возникающие в ходе поиска требования.
Ins Fairy
Нашел себе отличную квартиру в Мск на Локалс. В этот раз пользовался услугой Личный помощник; Каждый день мне присылали варианты и по моим ответам уточняли мои критерии. В итоге выбрали прямо то, что мне было надо!
Ilya Malov
Отличный сервис! Нужный вариант подобрали уже на следующий день после обращения. Документы с арендодателем я подписала в конце той же недели и сразу переехала. Квартира после ремонта, все новое, я — первый арендатор, до метро 15 минут пешком. Это потрясающе!
Maria Levkina
Поиски квартиры заняли ровно неделю, Андрей проверял все варианты и составлял подробное описание. Так же оказал помощь при подписании договора. И вот теперь, я снимаю квартиру без комиссии, от собственника, с хорошим ремонтом, в новом доме по приемлемой цене.
Dmitry Kovtun
Клиентоориентированность — на высшем уровне. И форма связи любая.. мне было удобно общаться через почту — не проблема: в будни и даже в выходные, и днем и ночью — постоянно на связи) В какой-то момент даже подумала, что личный помощник никогда не отдыхает))
Teresa Olehnovich
Услуга «Личный помощник» — это не только дешевле, чем платить деньги каким-то непонятным посредникам или риэлторам, но и гарантированная ежедневная консультация от грамотного специалиста. Одним словом, всё очень понравилось.
Алина Василевская
Моя оценка 5! Нашли с личным помощником то, что нужно!! Удобно и безопасно. Отличный, проверенный сайт! Спасибо, Локалс!
Еленка Потапова
Искал с помощью услуги «Личный помощник». Сервис справился с поставленной перед ним задачей — найти мне жильё в короткие сроки (дедлайн 1,5 недели). Спасибо!
Dimas
У меня только положительные впечатления остались. Мне присылал варианты каждый день, иногда даже дважды. Всегда оперативно реагировал на мои пожелания. В итоге, так и сняли одну из предложенных квартир и очень довольны.
Любовь












