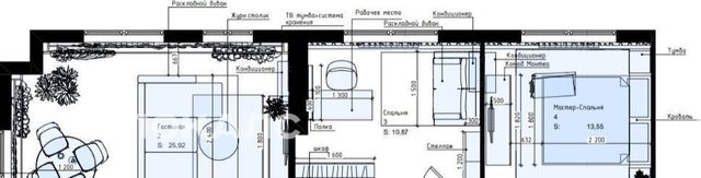
3-х комнатная квартира на метро Мичуринский проспект
ВПЕРВЫЕ сдаётся абсолютно новая светлая квартира с 2 изолированными спальнями и большой кухней-гостинной (27м). НАПРЯМУЮ ОТ СОБСТВЕННИКА, БЕЗ ПОСРЕДНИКОВ И ЛИШНЕЙ КОМИССИИ.
квартиру делали под себя, провели полный капитальный ремонт двух санузлов: замена всех труб, стен, плитки, вся сантехника - все новое и непиковское. приятно пользоваться))) также переделали все стеновые покрытия - во всех квартире выполнена современная декоративная штукатурка. делали себе
кухня: 3 окна, гарнитур - массив с доводчиками, вся техника встроенная: холодильник, посудомойка 60см, духовка, микроволновка, индукционная плита с функцией объединения конфорок. + фильтр для воды, измельчитель отходов - не нужно будет копить вонючий мусор))
в спальне кровать 180см, ортопедический матрас. один с/у - душ.кабина, другой - полноценная ванная. Стиральная машина с сушкой.
много мест хранения (+ к фото ещё установлена гардеробная система в спальне).
окон с прямым видом на соседей нет!!! только 1 окно на кухне, и то по диагонали. остальные окна смотрят на Москву.
квартира сдаётся со всем, что есть на фото: ковры-шторы-пледы - все 100% хлопок.
От метро 5мин пешком, 30 этаж - шикарный вид из окон., ЖК пик бизнес, хорошо заселен, все квартиры сразу с ремонтом продавались - соседи живут, ремонтов вокруг нет.
Удобства
Балкон
Посудомоечная машина
Холодильник
Стиральная машина
Телевизор
Нагреватель воды
Кондиционер
Особенности
Можно курить
Подходит для мероприятий
Можно с животными
Подходит для семьи с детьми
Другие 3-х комнатные квартиры
Последние добавленные апартаменты
О нас говорят
Хорошая услуга «Личный помощник». За вами закрепляют менеджера, который подбирает для вас варианты, помогает с подписанием договора и проверкой квартиры. Константин оперативно отвечал на наши вопросы и подстраивался под возникающие в ходе поиска требования.
Ins Fairy
Нашел себе отличную квартиру в Мск на Локалс. В этот раз пользовался услугой Личный помощник; Каждый день мне присылали варианты и по моим ответам уточняли мои критерии. В итоге выбрали прямо то, что мне было надо!
Ilya Malov
Отличный сервис! Нужный вариант подобрали уже на следующий день после обращения. Документы с арендодателем я подписала в конце той же недели и сразу переехала. Квартира после ремонта, все новое, я — первый арендатор, до метро 15 минут пешком. Это потрясающе!
Maria Levkina
Поиски квартиры заняли ровно неделю, Андрей проверял все варианты и составлял подробное описание. Так же оказал помощь при подписании договора. И вот теперь, я снимаю квартиру без комиссии, от собственника, с хорошим ремонтом, в новом доме по приемлемой цене.
Dmitry Kovtun
Клиентоориентированность — на высшем уровне. И форма связи любая.. мне было удобно общаться через почту — не проблема: в будни и даже в выходные, и днем и ночью — постоянно на связи) В какой-то момент даже подумала, что личный помощник никогда не отдыхает))
Teresa Olehnovich
Услуга «Личный помощник» — это не только дешевле, чем платить деньги каким-то непонятным посредникам или риэлторам, но и гарантированная ежедневная консультация от грамотного специалиста. Одним словом, всё очень понравилось.
Алина Василевская
Моя оценка 5! Нашли с личным помощником то, что нужно!! Удобно и безопасно. Отличный, проверенный сайт! Спасибо, Локалс!
Еленка Потапова
Искал с помощью услуги «Личный помощник». Сервис справился с поставленной перед ним задачей — найти мне жильё в короткие сроки (дедлайн 1,5 недели). Спасибо!
Dimas
У меня только положительные впечатления остались. Мне присылал варианты каждый день, иногда даже дважды. Всегда оперативно реагировал на мои пожелания. В итоге, так и сняли одну из предложенных квартир и очень довольны.
Любовь












