




























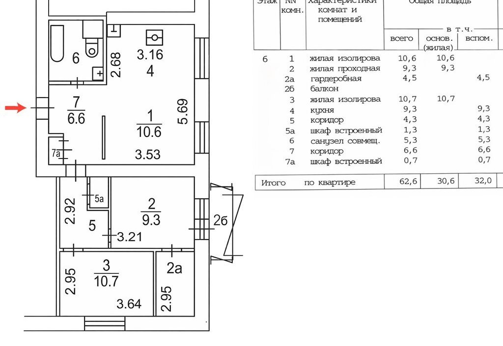
3-комнатная квартира: Москва, улица Кравченко, 4к1 (62.6 м²)
Продаю сам, собственник. Помощь в продаже не требуется.
Уютная 3-комнатная квартира 62 м² с дизайнерским ремонтом в престижном Ломоносовском районе ЮЗАО.
Отличное расположение:
Пешая доступность до метро «Новаторская и «Проспект Вернадского», рядом зелёные зоны и парки (Удальцовские пруды, Воронцовский парк, Парк 50 лет Октября), удобный выезд на Ленинский проспект и проспект Вернадского.
О доме:
Сталинский теплый кирпичный дом. В подъезде недавно выполнен капитальный ремонт, чисто и ухоженно, культурные соседи. Тамбур на две квартиры.
О квартире:
-дизайнерский ремонт
-удобная узаконенная перепланировка
-увеличенный санузел с сантехникой Villeroy & Boch
-современная бытовая техника
-балкон
-квартира полностью готова к проживанию.
Двор: благоустроенная территория, детская площадка и фонтан.
Отличный вариант для комфортной жизни в зелёном районе рядом с метро.
Особенности
Другие 3-х комнатные квартиры
Последние добавленные апартаменты
О нас говорят
Хорошая услуга «Личный помощник». За вами закрепляют менеджера, который подбирает для вас варианты, помогает с подписанием договора и проверкой квартиры. Константин оперативно отвечал на наши вопросы и подстраивался под возникающие в ходе поиска требования.
Ins Fairy
Нашел себе отличную квартиру в Мск на Локалс. В этот раз пользовался услугой Личный помощник; Каждый день мне присылали варианты и по моим ответам уточняли мои критерии. В итоге выбрали прямо то, что мне было надо!
Ilya Malov
Отличный сервис! Нужный вариант подобрали уже на следующий день после обращения. Документы с арендодателем я подписала в конце той же недели и сразу переехала. Квартира после ремонта, все новое, я — первый арендатор, до метро 15 минут пешком. Это потрясающе!
Maria Levkina
Поиски квартиры заняли ровно неделю, Андрей проверял все варианты и составлял подробное описание. Так же оказал помощь при подписании договора. И вот теперь, я снимаю квартиру без комиссии, от собственника, с хорошим ремонтом, в новом доме по приемлемой цене.
Dmitry Kovtun
Клиентоориентированность — на высшем уровне. И форма связи любая.. мне было удобно общаться через почту — не проблема: в будни и даже в выходные, и днем и ночью — постоянно на связи) В какой-то момент даже подумала, что личный помощник никогда не отдыхает))
Teresa Olehnovich
Услуга «Личный помощник» — это не только дешевле, чем платить деньги каким-то непонятным посредникам или риэлторам, но и гарантированная ежедневная консультация от грамотного специалиста. Одним словом, всё очень понравилось.
Алина Василевская
Моя оценка 5! Нашли с личным помощником то, что нужно!! Удобно и безопасно. Отличный, проверенный сайт! Спасибо, Локалс!
Еленка Потапова
Искал с помощью услуги «Личный помощник». Сервис справился с поставленной перед ним задачей — найти мне жильё в короткие сроки (дедлайн 1,5 недели). Спасибо!
Dimas
У меня только положительные впечатления остались. Мне присылал варианты каждый день, иногда даже дважды. Всегда оперативно реагировал на мои пожелания. В итоге, так и сняли одну из предложенных квартир и очень довольны.
Любовь












