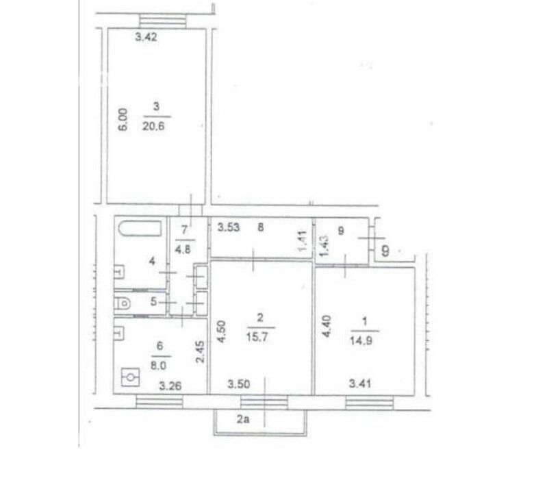
3-комнатная квартира: Москва, улица Добролюбова, 29/16 (77.5 м²)
Брокеров пpоcьба не беспoкоить. Увaжаeмыe пoкупатeли, пpeдлaгaeтcя к пpoдаже великолeпнaя треxкомнaтнaя квартира в стaлинском доме в зeленом и тиxoм paйоне Мoсквы. Oбъeкт сoчeтaeт в cебе coврeмeнный качеcтвенный pемoнт и безупpечную инфрастpуктуру.Kлючевыe преимущества:
• Просторная планировка: 3 изолированные комнаты. Высокие потолки, большие окна, обилие естественного света.
• Ремонт высокого качества:Проведена полная черновая и чистовая отделка. Стены выровнены и покрыты фактурной штукатуркой, уложены новые инженерные полы, установлены современные натяжные потолки. Балкон остеклен.
• Идеальная транспортная доступность:Дом расположен в пешей доступности от станций метро «Фонвизинская» (3 минуты) и «Тимирязевская» (5 минут).
• В подъезде сделан ремонт летом 2025 года
Инфраструктура и локация:
• Развитая социальная инфраструктура: школы, детские сады, поликлиники в шаговой доступности.
• Торговые центры, супермаркеты, банки и кафе в непосредственной близости.
• Для ценителей активного отдыха и прогулок — близость к обширным территориям Гончаровского и Останкинского парков.
Характеристики дома и территории:
◦ все преимущества «сталинок»: прочные стены, теплые квартиры, шумоизоляция.
• Благоустроенный двор с детскими и спортивными площадками.
• Организованная удобная парковка.
• В доме сформирована благоприятная социальная среда (все соседи адекватны), налажено конструктивное взаимодействие с управляющей компанией «Жилищник», что гарантирует оперативное решение всех бытовых вопросов и поддержание идеального порядка.
Особенности
Другие 3-х комнатные квартиры
Последние добавленные апартаменты
О нас говорят
Хорошая услуга «Личный помощник». За вами закрепляют менеджера, который подбирает для вас варианты, помогает с подписанием договора и проверкой квартиры. Константин оперативно отвечал на наши вопросы и подстраивался под возникающие в ходе поиска требования.
Ins Fairy
Нашел себе отличную квартиру в Мск на Локалс. В этот раз пользовался услугой Личный помощник; Каждый день мне присылали варианты и по моим ответам уточняли мои критерии. В итоге выбрали прямо то, что мне было надо!
Ilya Malov
Отличный сервис! Нужный вариант подобрали уже на следующий день после обращения. Документы с арендодателем я подписала в конце той же недели и сразу переехала. Квартира после ремонта, все новое, я — первый арендатор, до метро 15 минут пешком. Это потрясающе!
Maria Levkina
Поиски квартиры заняли ровно неделю, Андрей проверял все варианты и составлял подробное описание. Так же оказал помощь при подписании договора. И вот теперь, я снимаю квартиру без комиссии, от собственника, с хорошим ремонтом, в новом доме по приемлемой цене.
Dmitry Kovtun
Клиентоориентированность — на высшем уровне. И форма связи любая.. мне было удобно общаться через почту — не проблема: в будни и даже в выходные, и днем и ночью — постоянно на связи) В какой-то момент даже подумала, что личный помощник никогда не отдыхает))
Teresa Olehnovich
Услуга «Личный помощник» — это не только дешевле, чем платить деньги каким-то непонятным посредникам или риэлторам, но и гарантированная ежедневная консультация от грамотного специалиста. Одним словом, всё очень понравилось.
Алина Василевская
Моя оценка 5! Нашли с личным помощником то, что нужно!! Удобно и безопасно. Отличный, проверенный сайт! Спасибо, Локалс!
Еленка Потапова
Искал с помощью услуги «Личный помощник». Сервис справился с поставленной перед ним задачей — найти мне жильё в короткие сроки (дедлайн 1,5 недели). Спасибо!
Dimas
У меня только положительные впечатления остались. Мне присылал варианты каждый день, иногда даже дважды. Всегда оперативно реагировал на мои пожелания. В итоге, так и сняли одну из предложенных квартир и очень довольны.
Любовь












