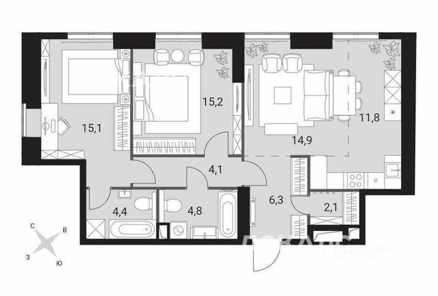
3-комнатная квартира: Москва, улица Академика Волгина, 2 (80 м²)
==ЛОТ 223627 ==БЕЗ КОМИССИИ! Просторная квартира с продуманной функциональной планировкой: кухня-гостиная с двумя окнами, две изолированные спальни, главная спальня с собственным санузлом. При входе — удобная гардеробная-постирочная. Окна выходят на две стороны, обеспечивая хорошее естественное освещение в течение всего дня. Высота потолков — 3 м, межкомнатные двери — 2, 4 м. Отделка и инженерия: Качественный ремонт в соответствии со стандартами бизнес-класса. Полы — дубовая инженерная доска, в санузлах и кухне — широкоформатный керамогранит. Сантехника Paini и Kaldewei, двери из массива бука, дизайнерские радиаторы. Установлены тёплые полы, центральная система кондиционирования, «умный дом», защита от протечек. Усиленная шумоизоляция полов и стен обеспечивает комфортное проживание. Мебель и техника: Кухня полностью оборудована встроенной техникой Koenig: индукционная варочная панель, посудомоечная машина, микроволновая печь. Дополнительно установлены измельчитель пищевых отходов и система фильтрации питьевой воды. Холодильник Maunfeld в ретро-стиле. В квартире есть стиральная и сушильная машины, спальная и столовая группы, мягкая мебель. Под арендатора приобретаются: матрас, шкаф в спальню и система хранения в кладовой.
Удобства
Балкон
Посудомоечная машина
Холодильник
Стиральная машина
Телевизор
Нагреватель воды
Кондиционер
Особенности
Можно курить
Подходит для мероприятий
Можно с животными
Подходит для семьи с детьми
Другие 3-х комнатные квартиры
Последние добавленные апартаменты
О нас говорят
Хорошая услуга «Личный помощник». За вами закрепляют менеджера, который подбирает для вас варианты, помогает с подписанием договора и проверкой квартиры. Константин оперативно отвечал на наши вопросы и подстраивался под возникающие в ходе поиска требования.
Ins Fairy
Нашел себе отличную квартиру в Мск на Локалс. В этот раз пользовался услугой Личный помощник; Каждый день мне присылали варианты и по моим ответам уточняли мои критерии. В итоге выбрали прямо то, что мне было надо!
Ilya Malov
Отличный сервис! Нужный вариант подобрали уже на следующий день после обращения. Документы с арендодателем я подписала в конце той же недели и сразу переехала. Квартира после ремонта, все новое, я — первый арендатор, до метро 15 минут пешком. Это потрясающе!
Maria Levkina
Поиски квартиры заняли ровно неделю, Андрей проверял все варианты и составлял подробное описание. Так же оказал помощь при подписании договора. И вот теперь, я снимаю квартиру без комиссии, от собственника, с хорошим ремонтом, в новом доме по приемлемой цене.
Dmitry Kovtun
Клиентоориентированность — на высшем уровне. И форма связи любая.. мне было удобно общаться через почту — не проблема: в будни и даже в выходные, и днем и ночью — постоянно на связи) В какой-то момент даже подумала, что личный помощник никогда не отдыхает))
Teresa Olehnovich
Услуга «Личный помощник» — это не только дешевле, чем платить деньги каким-то непонятным посредникам или риэлторам, но и гарантированная ежедневная консультация от грамотного специалиста. Одним словом, всё очень понравилось.
Алина Василевская
Моя оценка 5! Нашли с личным помощником то, что нужно!! Удобно и безопасно. Отличный, проверенный сайт! Спасибо, Локалс!
Еленка Потапова
Искал с помощью услуги «Личный помощник». Сервис справился с поставленной перед ним задачей — найти мне жильё в короткие сроки (дедлайн 1,5 недели). Спасибо!
Dimas
У меня только положительные впечатления остались. Мне присылал варианты каждый день, иногда даже дважды. Всегда оперативно реагировал на мои пожелания. В итоге, так и сняли одну из предложенных квартир и очень довольны.
Любовь












