3-комнатная квартира: Москва, Люблинская улица, 25/1 (63 м²)
Продаётся уютная трехкомнатная квартира с полной мебельной и бытовой комплектацией — заезжай и живи!
Краткое описание
• Свободная продажа.
• Тип: 3 комнатная квартира.
• Высота потолков 3,1 метра
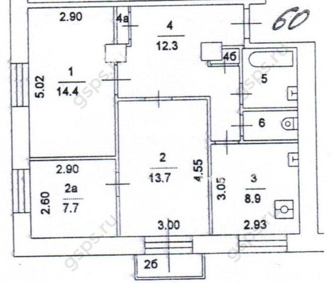
• Общая планировка: две смежные комнаты - зал и спальня; раздельный кабинет или детская, кухня 8,9 м2, ванная и туалет раздельно, очень просторный коридор.
• Дом после капитального ремонта в 2020 году
• В квартире сделан качественный ремонт в 2018 году, включающий замену проводки, разводки воды и сантехники.
• Балкон остеклен.
Квартира продается с:
• Мебель: в квартире полностью обставлены спальня, гостиная и кабинет/детская. В гостиной — комфортный диван, ТВ и шкаф-стеллаж. В спальне — металлическая кровать с матрасом. В кабинете — рабочее место с письменным столом и вместительным шкафом-кабинетом, диван. в коридоре два вместительных шкафа-купе.
• Кухня: полностью оборудована кухонной мебелью в классическом стиле, встроенная газовая плита и духовой шкаф, обеденный стол со стульями, посудомоечная машина, мебель Mr.Doors.
• Бытовая техника: кондиционеры (установлены в гостиной и кухне), настенный телевизор. Состояние техники хорошее, всё функционирует.
• Санузел: ванная и санузел раздельно, в ванной стиральная машина.
• Отделка: на стенах обои, ламинат в жилых комнатах, керамическая плитка на кухне и в санузлах, пластиковые окна. Потолки ровные, современные светильники.
• Чистый подъезд, приличные соседи, сверху не шумят.
Рядом с домом
5 минут на транспорте или 15 минут пешком до м. Текстильщики, рядом школа им. Фридмана, спортивный комплекс, Люблинский рынок.
Особенности
• Готовность к немедленному заселению — не требует дополнительных вложений, но попросим пару недель на освобождение.
• Никто не прописан
• Основание права - наследство по завещанию.
• Нюанс: квартира продается по доверенности в связи с проживанием собственника за пределами РФ, оформление сделки у нотариуса за счет продавца.
Особенности
Другие 3-х комнатные квартиры
Последние добавленные апартаменты
О нас говорят
Хорошая услуга «Личный помощник». За вами закрепляют менеджера, который подбирает для вас варианты, помогает с подписанием договора и проверкой квартиры. Константин оперативно отвечал на наши вопросы и подстраивался под возникающие в ходе поиска требования.
Ins Fairy
Нашел себе отличную квартиру в Мск на Локалс. В этот раз пользовался услугой Личный помощник; Каждый день мне присылали варианты и по моим ответам уточняли мои критерии. В итоге выбрали прямо то, что мне было надо!
Ilya Malov
Отличный сервис! Нужный вариант подобрали уже на следующий день после обращения. Документы с арендодателем я подписала в конце той же недели и сразу переехала. Квартира после ремонта, все новое, я — первый арендатор, до метро 15 минут пешком. Это потрясающе!
Maria Levkina
Поиски квартиры заняли ровно неделю, Андрей проверял все варианты и составлял подробное описание. Так же оказал помощь при подписании договора. И вот теперь, я снимаю квартиру без комиссии, от собственника, с хорошим ремонтом, в новом доме по приемлемой цене.
Dmitry Kovtun
Клиентоориентированность — на высшем уровне. И форма связи любая.. мне было удобно общаться через почту — не проблема: в будни и даже в выходные, и днем и ночью — постоянно на связи) В какой-то момент даже подумала, что личный помощник никогда не отдыхает))
Teresa Olehnovich
Услуга «Личный помощник» — это не только дешевле, чем платить деньги каким-то непонятным посредникам или риэлторам, но и гарантированная ежедневная консультация от грамотного специалиста. Одним словом, всё очень понравилось.
Алина Василевская
Моя оценка 5! Нашли с личным помощником то, что нужно!! Удобно и безопасно. Отличный, проверенный сайт! Спасибо, Локалс!
Еленка Потапова
Искал с помощью услуги «Личный помощник». Сервис справился с поставленной перед ним задачей — найти мне жильё в короткие сроки (дедлайн 1,5 недели). Спасибо!
Dimas
У меня только положительные впечатления остались. Мне присылал варианты каждый день, иногда даже дважды. Всегда оперативно реагировал на мои пожелания. В итоге, так и сняли одну из предложенных квартир и очень довольны.
Любовь












