3-комнатная квартира: Москва, Кусковская улица, 12/1 (72.5 м²)
Агенты, риелторы и другие помощники по продаже, просьба не беспокоить! Помощь не требуется, комиссии нет! Продажа от собственника
Продаётся уютная и светлая трёхкомнатная квартира, в новом доме, в зелёном районе Москвы, рядом с парком. Квартира новая, в ней никто не проживал. Есть машино-место на поземном паркинге, в цену не входит).
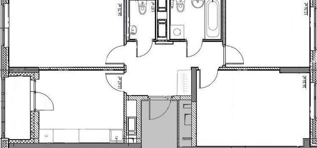
Планировка квартиры - "распашонка."
Окна выходят на две стороны, с панорамным видом на Кусковский лесопарк и внутренний двор, а благодаря высокому этажу и ориентации окон, в квартире много естественного света.
В квартире просторная кухня и 3 изолированные комнаты. Один совмещённый и один раздельный санузел. Планировка дает возможность оборудовать комфортную гардеробную комнату/постирочную, вместо второго санузла.
О районе:
Развитая инфраструктура — рядом школы, детские сады и магазины, обеспечивающие комфорт и удобство повседневной жизни. В 3 минутах ходьбы от подъезда — Перовский парк, рядом с домом современные детская и спортивная площадки.
Идеальное расположение: всего 5 минут пешком до станции МЦД, остановки общественного транспорта — в 2-х минутах от дома. Метро Перово — 20 минут пешком или 10 минут на транспорте.
На территории дома оборудован гостевой и подземный паркинг.
Квартира продаётся напрямую от собственника, без комиссий и посредников. Без обременений, подходит для оформления ипотеки. Отличный вариант для тех, кто ценит спокойствие и комфорт в зелёном районе Москвы.
Особенности
Другие 3-х комнатные квартиры
3-комнатная квартира: Москва, улица Васильцовский Стан, 10к1 (84.6 м²)
Последние добавленные апартаменты
О нас говорят
Хорошая услуга «Личный помощник». За вами закрепляют менеджера, который подбирает для вас варианты, помогает с подписанием договора и проверкой квартиры. Константин оперативно отвечал на наши вопросы и подстраивался под возникающие в ходе поиска требования.
Ins Fairy
Нашел себе отличную квартиру в Мск на Локалс. В этот раз пользовался услугой Личный помощник; Каждый день мне присылали варианты и по моим ответам уточняли мои критерии. В итоге выбрали прямо то, что мне было надо!
Ilya Malov
Отличный сервис! Нужный вариант подобрали уже на следующий день после обращения. Документы с арендодателем я подписала в конце той же недели и сразу переехала. Квартира после ремонта, все новое, я — первый арендатор, до метро 15 минут пешком. Это потрясающе!
Maria Levkina
Поиски квартиры заняли ровно неделю, Андрей проверял все варианты и составлял подробное описание. Так же оказал помощь при подписании договора. И вот теперь, я снимаю квартиру без комиссии, от собственника, с хорошим ремонтом, в новом доме по приемлемой цене.
Dmitry Kovtun
Клиентоориентированность — на высшем уровне. И форма связи любая.. мне было удобно общаться через почту — не проблема: в будни и даже в выходные, и днем и ночью — постоянно на связи) В какой-то момент даже подумала, что личный помощник никогда не отдыхает))
Teresa Olehnovich
Услуга «Личный помощник» — это не только дешевле, чем платить деньги каким-то непонятным посредникам или риэлторам, но и гарантированная ежедневная консультация от грамотного специалиста. Одним словом, всё очень понравилось.
Алина Василевская
Моя оценка 5! Нашли с личным помощником то, что нужно!! Удобно и безопасно. Отличный, проверенный сайт! Спасибо, Локалс!
Еленка Потапова
Искал с помощью услуги «Личный помощник». Сервис справился с поставленной перед ним задачей — найти мне жильё в короткие сроки (дедлайн 1,5 недели). Спасибо!
Dimas
У меня только положительные впечатления остались. Мне присылал варианты каждый день, иногда даже дважды. Всегда оперативно реагировал на мои пожелания. В итоге, так и сняли одну из предложенных квартир и очень довольны.
Любовь












