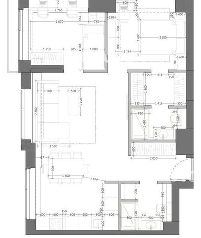
3-комнатная квартира: Москва, 1-й Сетуньский проезд, 8 (70.9 м²)
Элегантная квартира площадью 70,9 кв.м. с двумя спальнями и просторной кухней-гостиной площадью 32 кв.м. в башне RIVERSIDE премиального жилого комплекса HIDE.
В квартире выполнена безупречная отделка с использованием качественных отделочных материалов с полностью готовыми санузлами (сантехника Villeroy & Boch, Hansegrohe и Am-Pm), установлена система "Умный дом". Будущему владельцу остается выбрать по своему вкусу только люстры и мебель.
HIDE - модный и комфортный жилой комплекс премиум-класса с уникальной архитектурой, панорамным остеклением и лучшими видовыми характеристики, расположенный в престижном экологичном районе Раменки рядом с парками Воробьевы горы и Лужники. Здесь есть все необходимое для комфортного проживания: высокий уровень сервиса для резидентов, надежная система охраны, собственный парк, lounge-зоны с камином, кафе и фитнес-центр, открытая терраса на кровле с зоной для пикника. Предусмотрен 2-уровневый подземный паркинг с зарядками для электромобилей.
Отличная транспортная доступность: 10 минут до Москва-Сити, 5 минут до Кутузовского проспекта.
Особенности
Другие 3-х комнатные квартиры
Последние добавленные апартаменты
1-комнатная квартира: Москва, Большая Академическая улица, 18к2 (32 м²)
О нас говорят
Хорошая услуга «Личный помощник». За вами закрепляют менеджера, который подбирает для вас варианты, помогает с подписанием договора и проверкой квартиры. Константин оперативно отвечал на наши вопросы и подстраивался под возникающие в ходе поиска требования.
Ins Fairy
Нашел себе отличную квартиру в Мск на Локалс. В этот раз пользовался услугой Личный помощник; Каждый день мне присылали варианты и по моим ответам уточняли мои критерии. В итоге выбрали прямо то, что мне было надо!
Ilya Malov
Отличный сервис! Нужный вариант подобрали уже на следующий день после обращения. Документы с арендодателем я подписала в конце той же недели и сразу переехала. Квартира после ремонта, все новое, я — первый арендатор, до метро 15 минут пешком. Это потрясающе!
Maria Levkina
Поиски квартиры заняли ровно неделю, Андрей проверял все варианты и составлял подробное описание. Так же оказал помощь при подписании договора. И вот теперь, я снимаю квартиру без комиссии, от собственника, с хорошим ремонтом, в новом доме по приемлемой цене.
Dmitry Kovtun
Клиентоориентированность — на высшем уровне. И форма связи любая.. мне было удобно общаться через почту — не проблема: в будни и даже в выходные, и днем и ночью — постоянно на связи) В какой-то момент даже подумала, что личный помощник никогда не отдыхает))
Teresa Olehnovich
Услуга «Личный помощник» — это не только дешевле, чем платить деньги каким-то непонятным посредникам или риэлторам, но и гарантированная ежедневная консультация от грамотного специалиста. Одним словом, всё очень понравилось.
Алина Василевская
Моя оценка 5! Нашли с личным помощником то, что нужно!! Удобно и безопасно. Отличный, проверенный сайт! Спасибо, Локалс!
Еленка Потапова
Искал с помощью услуги «Личный помощник». Сервис справился с поставленной перед ним задачей — найти мне жильё в короткие сроки (дедлайн 1,5 недели). Спасибо!
Dimas
У меня только положительные впечатления остались. Мне присылал варианты каждый день, иногда даже дважды. Всегда оперативно реагировал на мои пожелания. В итоге, так и сняли одну из предложенных квартир и очень довольны.
Любовь












