






























3-к кв. Москва ул. Гарибальди, 10К4 (70.7 м²)
Риэлторов просьба не беспокоить, комиссию не плачу.
Собственником продается 3-комнатная квартира в престижном Ломоносовском районе Москвы
О Доме:
Престижный район Москвы (Ломоносовский)
Дом построен по индивидуальному проекту
Монолитный кирпичный дом, железобетонные перекрытия
Год постройки: 1978
14 этажей, один подъезд
Тихий двор, удаленный от проезжей части
Два уровня парковки (всегда есть места)
Грузовой и пассажирский лифты
Мусоропровод
Интеллигентные соседи
О Квартире:
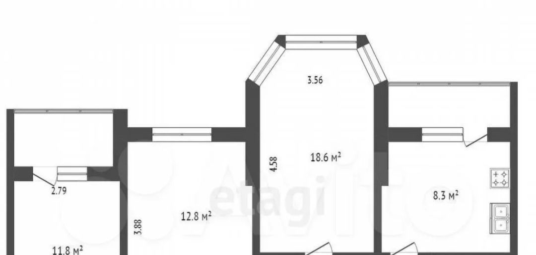
Удобная и функциональная планировка
Потолки: 2,8 м
Две лоджии (2,1 кв.м каждая) в комнате и на кухне
Три изолированные комнаты:
o Гостиная с эркером и панорамным окном: 18,6 кв.м
o Спальня: 12,8 кв.м
o Детская: 11,8 кв.м
Кухня: 8,3 кв.м
Требуется ремонт
Инфраструктура:
Пешая доступность до двух станций метро: Новые Черемушки, Новаторская
Воронцовский парк с прудами, лодочной станцией и детскими аттракционами в шаговой доступности
Три детских сада в 50 м
Престижная школа (прикрепление к школам 117, 121) 30 м
Детская и взрослая поликлиники (после реконструкции) 100м
Спортивная площадка
Продуктовые магазины, МФЦ, торговые центры, рестораны, кинотеатры
Зарядка для электромобилей на придомовой парковке
Дополнительная Информация:
Первичная продажа
Один собственник, наследство по закону
Полная сумма в договоре
Без обременений
Без перепланировок
Подходит под ипотеку
Оперативный показ
Просьба агентов и посредников не беспокоить.
Особенности
Другие 3-х комнатные квартиры
Последние добавленные апартаменты
1-комнатная квартира: Москва, улица Космонавта Волкова, 17к1 (29.89 м²)
О нас говорят
Хорошая услуга «Личный помощник». За вами закрепляют менеджера, который подбирает для вас варианты, помогает с подписанием договора и проверкой квартиры. Константин оперативно отвечал на наши вопросы и подстраивался под возникающие в ходе поиска требования.
Ins Fairy
Нашел себе отличную квартиру в Мск на Локалс. В этот раз пользовался услугой Личный помощник; Каждый день мне присылали варианты и по моим ответам уточняли мои критерии. В итоге выбрали прямо то, что мне было надо!
Ilya Malov
Отличный сервис! Нужный вариант подобрали уже на следующий день после обращения. Документы с арендодателем я подписала в конце той же недели и сразу переехала. Квартира после ремонта, все новое, я — первый арендатор, до метро 15 минут пешком. Это потрясающе!
Maria Levkina
Поиски квартиры заняли ровно неделю, Андрей проверял все варианты и составлял подробное описание. Так же оказал помощь при подписании договора. И вот теперь, я снимаю квартиру без комиссии, от собственника, с хорошим ремонтом, в новом доме по приемлемой цене.
Dmitry Kovtun
Клиентоориентированность — на высшем уровне. И форма связи любая.. мне было удобно общаться через почту — не проблема: в будни и даже в выходные, и днем и ночью — постоянно на связи) В какой-то момент даже подумала, что личный помощник никогда не отдыхает))
Teresa Olehnovich
Услуга «Личный помощник» — это не только дешевле, чем платить деньги каким-то непонятным посредникам или риэлторам, но и гарантированная ежедневная консультация от грамотного специалиста. Одним словом, всё очень понравилось.
Алина Василевская
Моя оценка 5! Нашли с личным помощником то, что нужно!! Удобно и безопасно. Отличный, проверенный сайт! Спасибо, Локалс!
Еленка Потапова
Искал с помощью услуги «Личный помощник». Сервис справился с поставленной перед ним задачей — найти мне жильё в короткие сроки (дедлайн 1,5 недели). Спасибо!
Dimas
У меня только положительные впечатления остались. Мне присылал варианты каждый день, иногда даже дважды. Всегда оперативно реагировал на мои пожелания. В итоге, так и сняли одну из предложенных квартир и очень довольны.
Любовь












