3-к кв. Москва Пулковская ул., 2 (159.3 м²)
Пентхаус 160м2 с французскими балконами по периметру всей площади. 29 этаж. Потолки 3,5м.
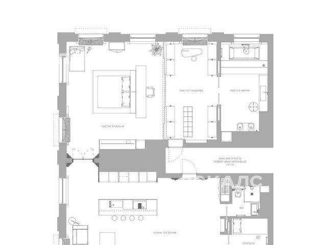
Планировка: кухня-гостиная с обеденной зоной, 2 спальни, большая гардеробная, ванная комната со всеми удобствами, санузел с душевой.
Квартира меблирована, укомплектована всей необходимой для жизни бытовой техникой (стиральная и сушильная машины, холодильник и морозильник, Кофемашина, винный холодильник, ПМ, духовка/пароварка и тд.).
Кондиционирование, подогрев полов, проектор, высокоскоростной интернет, охрана, камеры.
Огороженная территория, видеонаблюдение. Подземный паркинг, машино-место оплачивается отдельно.
Редчайший в своем виде - дизайн лот в доме бизнес класса, в пяти минутах от яхт клуба, ресторана Vodniy и отеля double tree by Hilton, от яхт клубов и федерации PROYAHTING, и серии теннисных кортов (открытых и закрытых) на северо - западе Москвы. В 2-х минутах от набережной - для прогулок вдоль воды. Частная школа, клиники, торговые центры и парки - все рядом в пешей доступности.
Удобная транспортная доступность: быстрый выезд Ленинградское шоссе, на МКАД и в центр Москвы. До станции метро "Водный стадион" можно дойти пешком за 10 минут.
Пентхаус сделан как дизайн объект для портфолио архитектора на продажу, в новостройке.
Мы создали смысловой продукт для тех, кто ценит безупречную эстетику и понимает, что настоящая роскошь — это осознанный подход к каждой детали.
Дизайн интерьера строится на диалоге фактур и безупречных пропорциях. Натуральный тонированный шпон, массив дерева, мрамор Bianco Perlino и выразительный Silk Georgette создают глубокую, сдержанную палитру. Природные материалы здесь подобраны с особым вниманием к их энергетике, создавая живительную и стабильную атмосферу. Это пространство для тех, кто ценит не очевидный блеск, а подлинную материальность и тихую элегантность. Здесь это особенно тонко проявляется: белый кирпич, матовая полированная сталь, палево-серый шпон, тонкие шерстяные и белые ткани, обилие натурального льна.
Этот пентхаус — коллекционный объект, предлагающий уникальную среду для человека, стремящегося к внутреннему балансу.
При частном запросе высылается подробная презентация объекта - уровня комплектации, встроенной мебели, техники, эксклюзивных материалов отделки.
Удобства
Балкон
Посудомоечная машина
Холодильник
Стиральная машина
Телевизор
Нагреватель воды
Кондиционер
Особенности
Можно курить
Подходит для мероприятий
Можно с животными
Подходит для семьи с детьми
Другие 3-х комнатные квартиры
Последние добавленные апартаменты
О нас говорят
Хорошая услуга «Личный помощник». За вами закрепляют менеджера, который подбирает для вас варианты, помогает с подписанием договора и проверкой квартиры. Константин оперативно отвечал на наши вопросы и подстраивался под возникающие в ходе поиска требования.
Ins Fairy
Нашел себе отличную квартиру в Мск на Локалс. В этот раз пользовался услугой Личный помощник; Каждый день мне присылали варианты и по моим ответам уточняли мои критерии. В итоге выбрали прямо то, что мне было надо!
Ilya Malov
Отличный сервис! Нужный вариант подобрали уже на следующий день после обращения. Документы с арендодателем я подписала в конце той же недели и сразу переехала. Квартира после ремонта, все новое, я — первый арендатор, до метро 15 минут пешком. Это потрясающе!
Maria Levkina
Поиски квартиры заняли ровно неделю, Андрей проверял все варианты и составлял подробное описание. Так же оказал помощь при подписании договора. И вот теперь, я снимаю квартиру без комиссии, от собственника, с хорошим ремонтом, в новом доме по приемлемой цене.
Dmitry Kovtun
Клиентоориентированность — на высшем уровне. И форма связи любая.. мне было удобно общаться через почту — не проблема: в будни и даже в выходные, и днем и ночью — постоянно на связи) В какой-то момент даже подумала, что личный помощник никогда не отдыхает))
Teresa Olehnovich
Услуга «Личный помощник» — это не только дешевле, чем платить деньги каким-то непонятным посредникам или риэлторам, но и гарантированная ежедневная консультация от грамотного специалиста. Одним словом, всё очень понравилось.
Алина Василевская
Моя оценка 5! Нашли с личным помощником то, что нужно!! Удобно и безопасно. Отличный, проверенный сайт! Спасибо, Локалс!
Еленка Потапова
Искал с помощью услуги «Личный помощник». Сервис справился с поставленной перед ним задачей — найти мне жильё в короткие сроки (дедлайн 1,5 недели). Спасибо!
Dimas
У меня только положительные впечатления остались. Мне присылал варианты каждый день, иногда даже дважды. Всегда оперативно реагировал на мои пожелания. В итоге, так и сняли одну из предложенных квартир и очень довольны.
Любовь












