


















3-к кв. Москва Дорожная ул., 28К1 (57.0 м²)
Продаётся уютная 3-х комнатная квартира на юге Москвы.
Москва, улица Дорожная, дом 28 корп.1 (ЮАО, Чертаново-Южное)
Метро Академика Янгеля 15 минут пешком. МЦД Д2 Покровское 15 мишут пешком.
Дом после капитального ремонта 2023 года.
В квартире хороший ремонт.
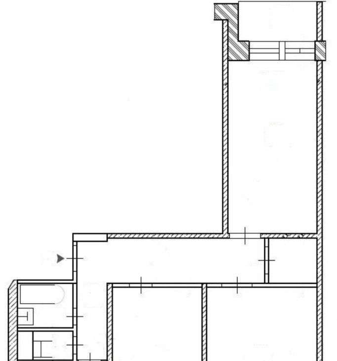
Площадь квартиры - 58,4 м2. Распашонка: три изолированных комнаты 12,6 м2, 11,6 м2, 18 м2. Из окна красивый вид, очень зелено, тихо и спокойно.
Состояние заезжай и живи.
Металлическая дверь, тамбур, домофон, чистый подьезд, адекватные соседи.
Квартира находится в районе с хорошо развитой инфраструктурой. Рядом есть всё необходимое для комфортной жизни: магазины, школы, детские сады, аптеки и спортивные клубы. Транспортная доступность отличная — лёгкое добраться до основных магистралей и центра города. Удобный выезд на МКАД, МЦД И Варшавское шоссе. Для прогулок в пешей доступности парк Варшавские пруды, Покровский парк и Битцевский лесопарк с велодорожками, каскад Кировоградских прудов.
Сделка по ДКП, обременения отсутствуют, ипотека возможна. Один взрослый собственник. Свободная продажа. Быстрый выход на сделку.
Риэлторам , просьба не беспокоить.
Особенности
Другие 3-х комнатные квартиры
Последние добавленные апартаменты
О нас говорят
Хорошая услуга «Личный помощник». За вами закрепляют менеджера, который подбирает для вас варианты, помогает с подписанием договора и проверкой квартиры. Константин оперативно отвечал на наши вопросы и подстраивался под возникающие в ходе поиска требования.
Ins Fairy
Нашел себе отличную квартиру в Мск на Локалс. В этот раз пользовался услугой Личный помощник; Каждый день мне присылали варианты и по моим ответам уточняли мои критерии. В итоге выбрали прямо то, что мне было надо!
Ilya Malov
Отличный сервис! Нужный вариант подобрали уже на следующий день после обращения. Документы с арендодателем я подписала в конце той же недели и сразу переехала. Квартира после ремонта, все новое, я — первый арендатор, до метро 15 минут пешком. Это потрясающе!
Maria Levkina
Поиски квартиры заняли ровно неделю, Андрей проверял все варианты и составлял подробное описание. Так же оказал помощь при подписании договора. И вот теперь, я снимаю квартиру без комиссии, от собственника, с хорошим ремонтом, в новом доме по приемлемой цене.
Dmitry Kovtun
Клиентоориентированность — на высшем уровне. И форма связи любая.. мне было удобно общаться через почту — не проблема: в будни и даже в выходные, и днем и ночью — постоянно на связи) В какой-то момент даже подумала, что личный помощник никогда не отдыхает))
Teresa Olehnovich
Услуга «Личный помощник» — это не только дешевле, чем платить деньги каким-то непонятным посредникам или риэлторам, но и гарантированная ежедневная консультация от грамотного специалиста. Одним словом, всё очень понравилось.
Алина Василевская
Моя оценка 5! Нашли с личным помощником то, что нужно!! Удобно и безопасно. Отличный, проверенный сайт! Спасибо, Локалс!
Еленка Потапова
Искал с помощью услуги «Личный помощник». Сервис справился с поставленной перед ним задачей — найти мне жильё в короткие сроки (дедлайн 1,5 недели). Спасибо!
Dimas
У меня только положительные впечатления остались. Мне присылал варианты каждый день, иногда даже дважды. Всегда оперативно реагировал на мои пожелания. В итоге, так и сняли одну из предложенных квартир и очень довольны.
Любовь












