

















3-к кв. Москва бул. Веласкеса, 4 (71.0 м²)
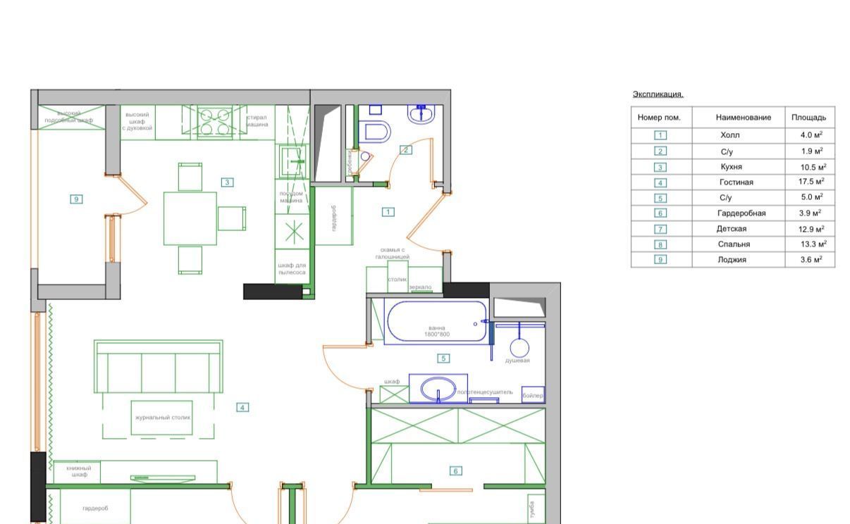
Продается уютная 3-х комнатная квартира на 10 этаже с дизайнерским ремонтом. Ремонт был сделан в 2020 году, проживали собственники, в аренду никогда не сдавалась. Общая площадь -71 кв. м.
Кухня - площадь 11 кв. м., встроенная угловая кухня со столешницей из искусственного камня с полным набором встроенной техники - СВЧ, духовка, варочная панель (все - Bosch), стиральная машина и посудомоечная машина (обе - Electrolux), холодильник (Samsung), вытяжка Elica. Круглый раздвижной кухонный стол с набором мягких стульев.
Гостиная с большим панорамным окном - 3-х местный угловой диван, тумба под телевизор и открытый книжный шкаф. Встроенные трековые светильники Centrsvet.
Спальня - кровать шириной 160 см, 2 прикроватные тумбы, кушетка, встроенный гардероб площадью 4 м2. с секциями со штангами и выдвижными ящиками.
2-я спальня/кабинет - раскладной диван и стол.
Ванная комната с отдельным тропическим душем. Душевая система и смеситель с терморегулятором марки Grohe, ванна Villeroy & Boch. Раковина из искусственного камня на подвесной тумбе с 2-мя ящиками.
Туалет - инсталляция Geberit, подвесной унитаз Villeroy & Boch, раковина для мытья рук, встроенный шкаф над инсталляцией с открытыми полками.
Коридор - встроенный шкаф для верхней одежды и консоль для мелочей
Лоджия - заменены окна от застройщика, установлен двухкамерный стеклопакет. Имеется шкаф и открытое полки для хранений хоз принадлежностей.
В гостиной и 2-х спальнях установлены сплит системы.
Во время ремонта заменены все батареи на батареи марки Rifar
Потолки - в жилых комнатах и гостиной - гипсокартоновые потолки, в санузлах и на кухне - натяжные потолки с теневым профилем
Продомовая территория - двор без машин с детской площадкой. Имеется подземный паркинг. Место в подземном паркинге продается отдельно, с приоритетной продажей покупателю квартиры. Через дорогу от дома - школа и детский сад.
Приобреталась напрямую у застройщика по ДДУ
Свободная продажа, без обременений.
Продает собственник, риелторов просьба не беспокоить
Особенности
Другие 3-х комнатные квартиры
Последние добавленные апартаменты
2-к кв. Москва ул. Мичуринский проспект Олимпийская деревня, 6 (54.0 м²)
О нас говорят
Хорошая услуга «Личный помощник». За вами закрепляют менеджера, который подбирает для вас варианты, помогает с подписанием договора и проверкой квартиры. Константин оперативно отвечал на наши вопросы и подстраивался под возникающие в ходе поиска требования.
Ins Fairy
Нашел себе отличную квартиру в Мск на Локалс. В этот раз пользовался услугой Личный помощник; Каждый день мне присылали варианты и по моим ответам уточняли мои критерии. В итоге выбрали прямо то, что мне было надо!
Ilya Malov
Отличный сервис! Нужный вариант подобрали уже на следующий день после обращения. Документы с арендодателем я подписала в конце той же недели и сразу переехала. Квартира после ремонта, все новое, я — первый арендатор, до метро 15 минут пешком. Это потрясающе!
Maria Levkina
Поиски квартиры заняли ровно неделю, Андрей проверял все варианты и составлял подробное описание. Так же оказал помощь при подписании договора. И вот теперь, я снимаю квартиру без комиссии, от собственника, с хорошим ремонтом, в новом доме по приемлемой цене.
Dmitry Kovtun
Клиентоориентированность — на высшем уровне. И форма связи любая.. мне было удобно общаться через почту — не проблема: в будни и даже в выходные, и днем и ночью — постоянно на связи) В какой-то момент даже подумала, что личный помощник никогда не отдыхает))
Teresa Olehnovich
Услуга «Личный помощник» — это не только дешевле, чем платить деньги каким-то непонятным посредникам или риэлторам, но и гарантированная ежедневная консультация от грамотного специалиста. Одним словом, всё очень понравилось.
Алина Василевская
Моя оценка 5! Нашли с личным помощником то, что нужно!! Удобно и безопасно. Отличный, проверенный сайт! Спасибо, Локалс!
Еленка Потапова
Искал с помощью услуги «Личный помощник». Сервис справился с поставленной перед ним задачей — найти мне жильё в короткие сроки (дедлайн 1,5 недели). Спасибо!
Dimas
У меня только положительные впечатления остались. Мне присылал варианты каждый день, иногда даже дважды. Всегда оперативно реагировал на мои пожелания. В итоге, так и сняли одну из предложенных квартир и очень довольны.
Любовь












