
























3-к кв. Москва Ботаническая ул., 29Ак3 (67.2 м²)
В шаге от Ботанического сада, в охраняемом и огороженном по периметру, жилом комплексе из пяти домов, с шикарным панорамным видом из окон на Главный Ботанический Сад РАН, на 20 этаже 31-го этажного нового 2024 года постройки монолитного жилого дома, предлагается абсолютно новая 3-х комнатная квартира без отделки, общей площадью 67,2 м2, жилая 59,3 м2.
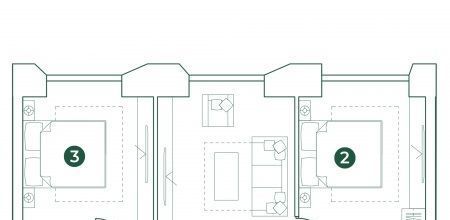
На плане квартиры (см.фото):
1) Гостинная (жилая комната) с кухней - 29,7 м2;
2) Спальня - 16 м2;
3) Спальня - 13,6 м2,
4) Коридор - 3,96 м2
5) C/у - 4,7 м2
6) C/у - 3,6 м2
В эко-квартале бизнес-класса в уникальной локации Москвы. В доме на этаже 2-а лифтовых холла на 4 лифта (2-а грузовых, 2-а пассажирских).
Территория и дом по периметру огорожены и находятся под круглосуточным видеонаблюдением и охраной ЧОПа. А также, прямо напротив дома, через дорогу, находится отдел Полиции.
Природа и красота: гости заходят в ваш дом, и им открываются окна в пол высотой 2,46 метра, с великолепными панорамами Главного и Малого Ботанических садов, Останкинского парка, ВДНХ, Мичуринского Сада и живописного Марфино.
Семейный SPA-комплекс "Termoland".
В 20 м от Главного Ботанического сада РАН, в окружении 600 га прогулочных зон.
Удобный выезд на Дмитровское и Алтуфьевское шоссе, 15 минут до ТТК и Проспекта Мира.
Три станции метро в пешей доступности: Владыкино, Фонвизинская, Петровско-Разумовская. В шаговой доступности: частные школы и детские сады, медицинские учреждения и аптеки, торговые центры и магазины, фитнес-центры, кафе и рестораны. 15 минут пешком до ТПУ Петровско-Разумовская).
Полная стоимость в ДКП. Возможна ипотека. Просмотр возможен только в светлое время суток. Договариваться за сутки. При опоздании более 15 минут, не зависимо от причин (строго) - не ждем, уходим.
Особенности
Другие 3-х комнатные квартиры
Последние добавленные апартаменты
О нас говорят
Хорошая услуга «Личный помощник». За вами закрепляют менеджера, который подбирает для вас варианты, помогает с подписанием договора и проверкой квартиры. Константин оперативно отвечал на наши вопросы и подстраивался под возникающие в ходе поиска требования.
Ins Fairy
Нашел себе отличную квартиру в Мск на Локалс. В этот раз пользовался услугой Личный помощник; Каждый день мне присылали варианты и по моим ответам уточняли мои критерии. В итоге выбрали прямо то, что мне было надо!
Ilya Malov
Отличный сервис! Нужный вариант подобрали уже на следующий день после обращения. Документы с арендодателем я подписала в конце той же недели и сразу переехала. Квартира после ремонта, все новое, я — первый арендатор, до метро 15 минут пешком. Это потрясающе!
Maria Levkina
Поиски квартиры заняли ровно неделю, Андрей проверял все варианты и составлял подробное описание. Так же оказал помощь при подписании договора. И вот теперь, я снимаю квартиру без комиссии, от собственника, с хорошим ремонтом, в новом доме по приемлемой цене.
Dmitry Kovtun
Клиентоориентированность — на высшем уровне. И форма связи любая.. мне было удобно общаться через почту — не проблема: в будни и даже в выходные, и днем и ночью — постоянно на связи) В какой-то момент даже подумала, что личный помощник никогда не отдыхает))
Teresa Olehnovich
Услуга «Личный помощник» — это не только дешевле, чем платить деньги каким-то непонятным посредникам или риэлторам, но и гарантированная ежедневная консультация от грамотного специалиста. Одним словом, всё очень понравилось.
Алина Василевская
Моя оценка 5! Нашли с личным помощником то, что нужно!! Удобно и безопасно. Отличный, проверенный сайт! Спасибо, Локалс!
Еленка Потапова
Искал с помощью услуги «Личный помощник». Сервис справился с поставленной перед ним задачей — найти мне жильё в короткие сроки (дедлайн 1,5 недели). Спасибо!
Dimas
У меня только положительные впечатления остались. Мне присылал варианты каждый день, иногда даже дважды. Всегда оперативно реагировал на мои пожелания. В итоге, так и сняли одну из предложенных квартир и очень довольны.
Любовь












