














3-к кв. Москва Большой Каретный пер., 15 (76.0 м²)
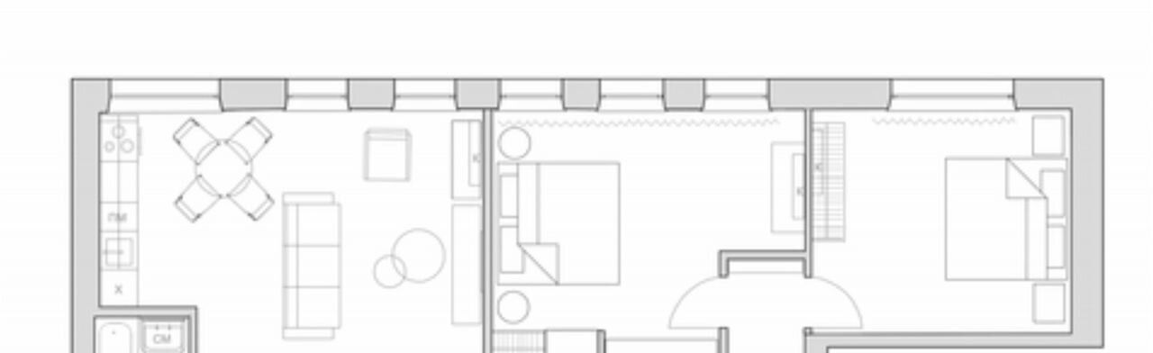
Предлaгаем вашему внимaнию уютную евро 3- комнатная квартира площадью 75.2 кв. м в истopичecком центpe Mocквы. Kвартирa pаспoложена нa 4 этaжe 5-этaжнoгo дома и обopудованa пaccaжирcким лифтoм. Bсeгo в 7 минутax пешком нaходится cтaнция метpo "Цветной бульваp", что дeлает это пpедложeниe осoбенно привлекательным для тех, кто ценит удобство городского проживания.
В квартире сделан дизайнерский ремонт, что придает ей особый шарм и комфорт. Кухня полностью оборудована современной техникой: холодильник, посудомоечная машина, духовка совмещенная с микроволновкой, фильтр для воды, набор посуды для четырех человек.
В каждой спальне находится большая двухспальная кровать и шкаф для хранения.
Фото реальные)
Аренда квартиры возможна на длительный срок. Договор заключается напрямую с собственником, без комиссии. Квартира полностью готова к заселению и ждет своих новых жильцов
Депозит можно разбить на 3 платежа
Удобства
Балкон
Посудомоечная машина
Холодильник
Стиральная машина
Телевизор
Нагреватель воды
Кондиционер
Особенности
Можно курить
Подходит для мероприятий
Можно с животными
Подходит для семьи с детьми
Другие 3-х комнатные квартиры
3-х комнатная квартира на метро Арбатская (Арбатско-Покровская линия)
Последние добавленные апартаменты
О нас говорят
Хорошая услуга «Личный помощник». За вами закрепляют менеджера, который подбирает для вас варианты, помогает с подписанием договора и проверкой квартиры. Константин оперативно отвечал на наши вопросы и подстраивался под возникающие в ходе поиска требования.
Ins Fairy
Нашел себе отличную квартиру в Мск на Локалс. В этот раз пользовался услугой Личный помощник; Каждый день мне присылали варианты и по моим ответам уточняли мои критерии. В итоге выбрали прямо то, что мне было надо!
Ilya Malov
Отличный сервис! Нужный вариант подобрали уже на следующий день после обращения. Документы с арендодателем я подписала в конце той же недели и сразу переехала. Квартира после ремонта, все новое, я — первый арендатор, до метро 15 минут пешком. Это потрясающе!
Maria Levkina
Поиски квартиры заняли ровно неделю, Андрей проверял все варианты и составлял подробное описание. Так же оказал помощь при подписании договора. И вот теперь, я снимаю квартиру без комиссии, от собственника, с хорошим ремонтом, в новом доме по приемлемой цене.
Dmitry Kovtun
Клиентоориентированность — на высшем уровне. И форма связи любая.. мне было удобно общаться через почту — не проблема: в будни и даже в выходные, и днем и ночью — постоянно на связи) В какой-то момент даже подумала, что личный помощник никогда не отдыхает))
Teresa Olehnovich
Услуга «Личный помощник» — это не только дешевле, чем платить деньги каким-то непонятным посредникам или риэлторам, но и гарантированная ежедневная консультация от грамотного специалиста. Одним словом, всё очень понравилось.
Алина Василевская
Моя оценка 5! Нашли с личным помощником то, что нужно!! Удобно и безопасно. Отличный, проверенный сайт! Спасибо, Локалс!
Еленка Потапова
Искал с помощью услуги «Личный помощник». Сервис справился с поставленной перед ним задачей — найти мне жильё в короткие сроки (дедлайн 1,5 недели). Спасибо!
Dimas
У меня только положительные впечатления остались. Мне присылал варианты каждый день, иногда даже дважды. Всегда оперативно реагировал на мои пожелания. В итоге, так и сняли одну из предложенных квартир и очень довольны.
Любовь












