































3-к кв. Москва Большая Филевская ул., 3к2 (58.1 м²)
Впервые на длительный срок сдается уютная квартира с новым качественным ремонтом в ЖК "Западный порт" (формат 3-Евро).
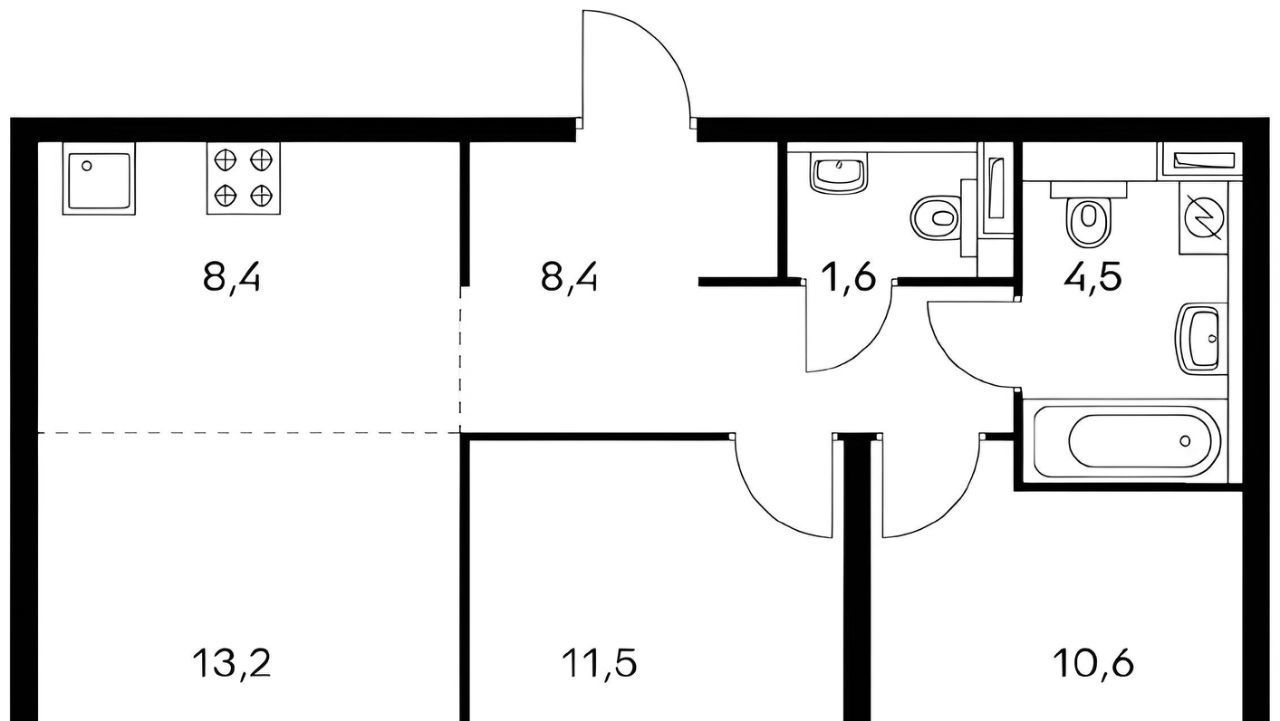
Квартира оборудована всем необходимым для комфортного проживания: современная стильная кухня-гостиная со встроенной техникой (посудомоечная машина, холодильник, духовой шкаф, варочная панель), комната свободного назначения (кабинет, детская комната), спальня с гардеробом, двухспальной кроватью и тумбочками, 2 с/у.
В одном из санузле установлена постирочная машина. В гостиной и спальне - кондиционеры.
Главная изюминка этой квартиры — вид из окон на реку и башни делового центра Москва-сити и панорамные окна квартиры.
Презентабельная входная группа.
В подземном паркинге у собственника данной квартиры имеется машиноместо, его можно арендовать за дополнительную плату.
Вся территория жилого комплекса огорожена, находится под видеонаблюдением и строго охраняется. В просторном внутреннем дворе расположена современная детская площадка.
На первых этажах жилого комплекса и рядом с домом расположены различные продуктовые магазины, кафе и рестораны, аптеки и медицинские центры, детский сад, спортивный клуб, салоны красоты.
В шаговой доступности ст. "Фили" и МЦК Шелепиха, удобный выезд на Кутузовский проспект / проспект Багратион.
В 50 метрах от дома в ближайшее время планируется открытие станции речного городского транспорта.
Ключи на руках! Оперативный показ. Заселение день в день. Звоните в любое время!
Удобства
Балкон
Посудомоечная машина
Холодильник
Стиральная машина
Телевизор
Нагреватель воды
Кондиционер
Особенности
Можно курить
Подходит для мероприятий
Можно с животными
Подходит для семьи с детьми
Другие 3-х комнатные квартиры
Последние добавленные апартаменты
О нас говорят
Хорошая услуга «Личный помощник». За вами закрепляют менеджера, который подбирает для вас варианты, помогает с подписанием договора и проверкой квартиры. Константин оперативно отвечал на наши вопросы и подстраивался под возникающие в ходе поиска требования.
Ins Fairy
Нашел себе отличную квартиру в Мск на Локалс. В этот раз пользовался услугой Личный помощник; Каждый день мне присылали варианты и по моим ответам уточняли мои критерии. В итоге выбрали прямо то, что мне было надо!
Ilya Malov
Отличный сервис! Нужный вариант подобрали уже на следующий день после обращения. Документы с арендодателем я подписала в конце той же недели и сразу переехала. Квартира после ремонта, все новое, я — первый арендатор, до метро 15 минут пешком. Это потрясающе!
Maria Levkina
Поиски квартиры заняли ровно неделю, Андрей проверял все варианты и составлял подробное описание. Так же оказал помощь при подписании договора. И вот теперь, я снимаю квартиру без комиссии, от собственника, с хорошим ремонтом, в новом доме по приемлемой цене.
Dmitry Kovtun
Клиентоориентированность — на высшем уровне. И форма связи любая.. мне было удобно общаться через почту — не проблема: в будни и даже в выходные, и днем и ночью — постоянно на связи) В какой-то момент даже подумала, что личный помощник никогда не отдыхает))
Teresa Olehnovich
Услуга «Личный помощник» — это не только дешевле, чем платить деньги каким-то непонятным посредникам или риэлторам, но и гарантированная ежедневная консультация от грамотного специалиста. Одним словом, всё очень понравилось.
Алина Василевская
Моя оценка 5! Нашли с личным помощником то, что нужно!! Удобно и безопасно. Отличный, проверенный сайт! Спасибо, Локалс!
Еленка Потапова
Искал с помощью услуги «Личный помощник». Сервис справился с поставленной перед ним задачей — найти мне жильё в короткие сроки (дедлайн 1,5 недели). Спасибо!
Dimas
У меня только положительные впечатления остались. Мне присылал варианты каждый день, иногда даже дважды. Всегда оперативно реагировал на мои пожелания. В итоге, так и сняли одну из предложенных квартир и очень довольны.
Любовь












