3-к кв. Москва 2-я Новоостанкинская ул., 25 (65.0 м²)
Риелторам не беспокоить!
ВАЖНО:
Свободная продажа - 1 взрослый собственник
Никто не прописан
Чистые документы!
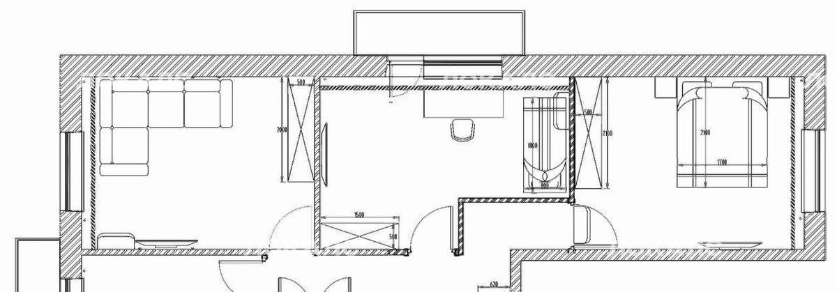
Три ИЗОЛИРОВАННЫЕ комнаты - перепланировка УЗАКОНЕНА!
Продаётся шикарная трехкомнатная квартира с дизайнерским ремонтом и хорошим расположением в престижном районе Москвы (2-ая Новоостанкинская, дом 25)
Шикарная узаконенная планировка: большая кухня (10 м) и три изолированные комнаты правильной формы (14,4+14,4+13,5), два балкона: из комнаты и кухни (застеклены), продуманная эргономика и много места для хранения.
Квартира находится в тихом дворе и выходит на 3 стороны света!
Общая площадь: 64,6 м + 2 балкона!
Ремонт дизайнерский, новый.
Все коммуникации были заменены, на кухне - теплый пол.
Предусмотрена мастер-кнопка.
Использовались только качественные импортные материалы.
Квартира продается со всей мебелью на фото: шкафы, кухонная мебель, кровать, диваны и др. и бытовой техникой (газовая плита, электрический духовой шкаф, СВЧ, вытяжка, холодильник, вместительная посудомоечная машина, стиральная машина, кондиционеры в каждой комнате и многофункциональная мойка).
Дом расположен во дворе престижного, зеленого района Москвы с развитой инфраструктурой: сады/школы/секции/поликлиника; магазины/кафе и метро ВДНХ в шаговой доступности.
Особенности
Другие 3-х комнатные квартиры
Последние добавленные апартаменты
О нас говорят
Хорошая услуга «Личный помощник». За вами закрепляют менеджера, который подбирает для вас варианты, помогает с подписанием договора и проверкой квартиры. Константин оперативно отвечал на наши вопросы и подстраивался под возникающие в ходе поиска требования.
Ins Fairy
Нашел себе отличную квартиру в Мск на Локалс. В этот раз пользовался услугой Личный помощник; Каждый день мне присылали варианты и по моим ответам уточняли мои критерии. В итоге выбрали прямо то, что мне было надо!
Ilya Malov
Отличный сервис! Нужный вариант подобрали уже на следующий день после обращения. Документы с арендодателем я подписала в конце той же недели и сразу переехала. Квартира после ремонта, все новое, я — первый арендатор, до метро 15 минут пешком. Это потрясающе!
Maria Levkina
Поиски квартиры заняли ровно неделю, Андрей проверял все варианты и составлял подробное описание. Так же оказал помощь при подписании договора. И вот теперь, я снимаю квартиру без комиссии, от собственника, с хорошим ремонтом, в новом доме по приемлемой цене.
Dmitry Kovtun
Клиентоориентированность — на высшем уровне. И форма связи любая.. мне было удобно общаться через почту — не проблема: в будни и даже в выходные, и днем и ночью — постоянно на связи) В какой-то момент даже подумала, что личный помощник никогда не отдыхает))
Teresa Olehnovich
Услуга «Личный помощник» — это не только дешевле, чем платить деньги каким-то непонятным посредникам или риэлторам, но и гарантированная ежедневная консультация от грамотного специалиста. Одним словом, всё очень понравилось.
Алина Василевская
Моя оценка 5! Нашли с личным помощником то, что нужно!! Удобно и безопасно. Отличный, проверенный сайт! Спасибо, Локалс!
Еленка Потапова
Искал с помощью услуги «Личный помощник». Сервис справился с поставленной перед ним задачей — найти мне жильё в короткие сроки (дедлайн 1,5 недели). Спасибо!
Dimas
У меня только положительные впечатления остались. Мне присылал варианты каждый день, иногда даже дважды. Всегда оперативно реагировал на мои пожелания. В итоге, так и сняли одну из предложенных квартир и очень довольны.
Любовь












