





























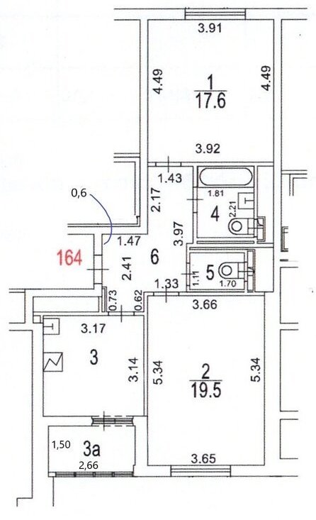
2-комнатная квартира: Москва, Жигулёвская улица, 12А (61.7 м²)
Просторная (самая большая в доме) двухкомнатная квартира-распашонка.
61,7 кв.м - площадь без учета лоджии (+4 кв.м).
Свободная продажа.
В квартире никто не был зарегистрирован и никогда не жил.
Один взрослый собственник (40 лет).
Основание приобретения квартиры - переселение по Программе реновации (договор мены с ДГИ).
Основание приобретения предыдущей квартиры (в сносимой 5-этажке) - договор купли-продажи 2018 г. (в собственности более 6 лет).
Материнский капитал не использовался.
Полная стоимость в договоре.
Ипотека, оплата за счет средств материнского капитала - возможны.
Торг (в т.ч. о рассрочке оплаты части стоимости) - возможен.
Дом расположен на удалении от Волгоградского проспекта (более 350 м), окна направлены параллельно проспекту - в квартире будет тихо.
В будущем не возникнет ситуация "окна в окна" с домом напротив.
Дом монолитный.
Генподрядчик - ООО "ГП-МФС" (группа ПИК).
Квартира на 9 из 12 этажей в 3 подъезде.
4 квартиры на площадке.
Комнаты без ниш и без выступов в углах.
Улучшенная чистовая отделка по стандарту реновации.
В прихожей есть место для шкафа глубиной до 60 см, развернутого в зону одевания (не во всех квартирах данного дома есть такая возможность).
Просторный раздельный санузел с 2 унитазами и 2 раковинами.
Больше никаких очередей в санузел утром.
"Гостевой" туалет можно переоборудовать в кладовку или в гардеробную.
Лоджию можно присоединить к кухне (окна на лоджии раздвижные, можно установить второе теплое остекление).
Входная дверь находится в "тупике": никому не будут мешать детская коляска, санки, велосипеды, самокаты; видеонаблюдение обеспечит обзор всего пространства за дверью.
Весь дом сдан с чистовой отделкой, - шума от ремонтных работ будет значительно меньше, чем в новостройках без отделки.
Вход в подъезд на уровне земли, есть место для колясочной и комната консьержа.
Весь 1-ый этаж дома - нежилой, скоро откроются магазины, аптеки, предприятия быта, пункты выдачи заказов.
Особенности
Другие 2-х комнатные квартиры
Последние добавленные апартаменты
О нас говорят
Хорошая услуга «Личный помощник». За вами закрепляют менеджера, который подбирает для вас варианты, помогает с подписанием договора и проверкой квартиры. Константин оперативно отвечал на наши вопросы и подстраивался под возникающие в ходе поиска требования.
Ins Fairy
Нашел себе отличную квартиру в Мск на Локалс. В этот раз пользовался услугой Личный помощник; Каждый день мне присылали варианты и по моим ответам уточняли мои критерии. В итоге выбрали прямо то, что мне было надо!
Ilya Malov
Отличный сервис! Нужный вариант подобрали уже на следующий день после обращения. Документы с арендодателем я подписала в конце той же недели и сразу переехала. Квартира после ремонта, все новое, я — первый арендатор, до метро 15 минут пешком. Это потрясающе!
Maria Levkina
Поиски квартиры заняли ровно неделю, Андрей проверял все варианты и составлял подробное описание. Так же оказал помощь при подписании договора. И вот теперь, я снимаю квартиру без комиссии, от собственника, с хорошим ремонтом, в новом доме по приемлемой цене.
Dmitry Kovtun
Клиентоориентированность — на высшем уровне. И форма связи любая.. мне было удобно общаться через почту — не проблема: в будни и даже в выходные, и днем и ночью — постоянно на связи) В какой-то момент даже подумала, что личный помощник никогда не отдыхает))
Teresa Olehnovich
Услуга «Личный помощник» — это не только дешевле, чем платить деньги каким-то непонятным посредникам или риэлторам, но и гарантированная ежедневная консультация от грамотного специалиста. Одним словом, всё очень понравилось.
Алина Василевская
Моя оценка 5! Нашли с личным помощником то, что нужно!! Удобно и безопасно. Отличный, проверенный сайт! Спасибо, Локалс!
Еленка Потапова
Искал с помощью услуги «Личный помощник». Сервис справился с поставленной перед ним задачей — найти мне жильё в короткие сроки (дедлайн 1,5 недели). Спасибо!
Dimas
У меня только положительные впечатления остались. Мне присылал варианты каждый день, иногда даже дважды. Всегда оперативно реагировал на мои пожелания. В итоге, так и сняли одну из предложенных квартир и очень довольны.
Любовь












