


























2-комнатная квартира: Москва, проспект Лихачёва, 12к4 (40.2 м²)
Продается евродвушка на 4 этаже.
Дом 12-ти этажный, на этаже 5 квартир (оставшиеся 4 квартиры сделали ремонт и живут)
Комплекс введен в эксплуатацию в 2022 году, ключи получены. Квартира покупалась у застройщика по ДДУ.
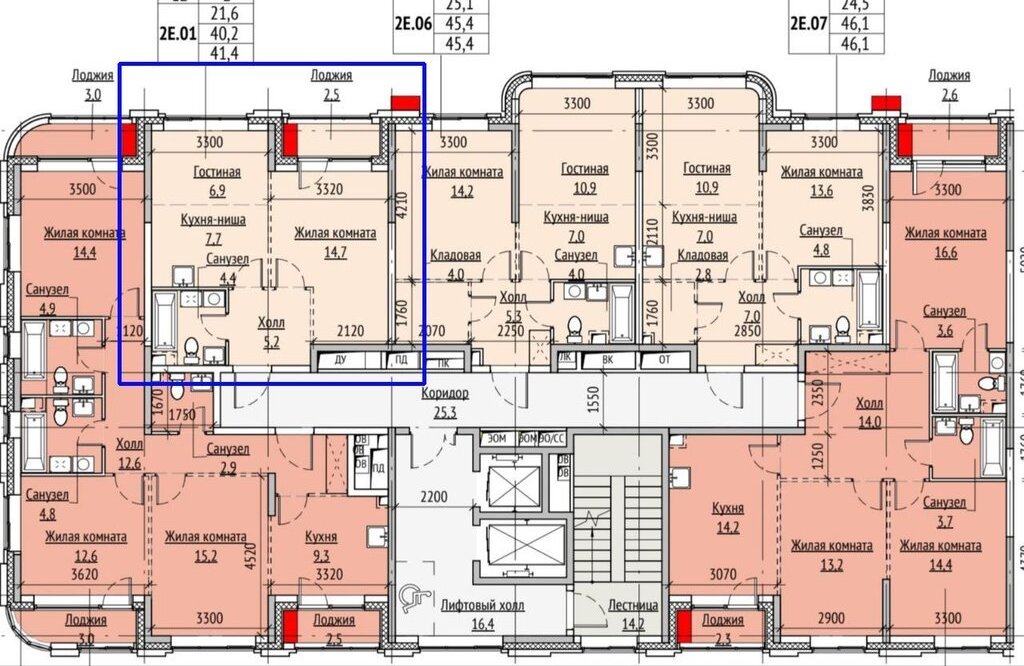
Площадь квартиры 40,2 м2
Жилая площадь 21,6 м2
Кухня 7,7 кв.м, гостиная 6,9 кв.м.
Потолки 3,0 м.
Окна во двор и благоустроенную набережную
Один собственник, никто не прописан. Полная стоимость в договоре.
В БКИ запись о кредитном договоре отсутствует. Обременений нет.
Прямой выход на внутренний двор комплекса. Внутренний двор благоустроен (детские площадки, зоны пикника и отдыха). Обустроен открытый доступ к набережной. В комплексе ведется видеонаблюдение и работает система контроля доступа на внутреннюю территорию. В ЖК присутствует подземный паркинг и кладовые. Первый этаж занят коммерческими помещениями + якорный продуктовый магазин. На территории ЖК детский сад, планируется постройка школы. В шаговой доступности м. Технопарк (6-7 минут), ТЦ «Мегаполис» (8-9 минут), Парк Остров мечты (15-18 минут). В 10-15 минут на автомобиле «Леруа Мерлен» и ТЦ «Ривьера». Район перспективный с точки зрения развития, рядом Южный речной порт, несколько бизнес-центров и ЖК. На стороне завода ЗИЛ застраивается территория и будет обустроен парк. Построен автомобильный мост в сторону центра, в сторону ЗилАрт и ТТК.
Особенности
Другие 2-х комнатные квартиры
Последние добавленные апартаменты
О нас говорят
Хорошая услуга «Личный помощник». За вами закрепляют менеджера, который подбирает для вас варианты, помогает с подписанием договора и проверкой квартиры. Константин оперативно отвечал на наши вопросы и подстраивался под возникающие в ходе поиска требования.
Ins Fairy
Нашел себе отличную квартиру в Мск на Локалс. В этот раз пользовался услугой Личный помощник; Каждый день мне присылали варианты и по моим ответам уточняли мои критерии. В итоге выбрали прямо то, что мне было надо!
Ilya Malov
Отличный сервис! Нужный вариант подобрали уже на следующий день после обращения. Документы с арендодателем я подписала в конце той же недели и сразу переехала. Квартира после ремонта, все новое, я — первый арендатор, до метро 15 минут пешком. Это потрясающе!
Maria Levkina
Поиски квартиры заняли ровно неделю, Андрей проверял все варианты и составлял подробное описание. Так же оказал помощь при подписании договора. И вот теперь, я снимаю квартиру без комиссии, от собственника, с хорошим ремонтом, в новом доме по приемлемой цене.
Dmitry Kovtun
Клиентоориентированность — на высшем уровне. И форма связи любая.. мне было удобно общаться через почту — не проблема: в будни и даже в выходные, и днем и ночью — постоянно на связи) В какой-то момент даже подумала, что личный помощник никогда не отдыхает))
Teresa Olehnovich
Услуга «Личный помощник» — это не только дешевле, чем платить деньги каким-то непонятным посредникам или риэлторам, но и гарантированная ежедневная консультация от грамотного специалиста. Одним словом, всё очень понравилось.
Алина Василевская
Моя оценка 5! Нашли с личным помощником то, что нужно!! Удобно и безопасно. Отличный, проверенный сайт! Спасибо, Локалс!
Еленка Потапова
Искал с помощью услуги «Личный помощник». Сервис справился с поставленной перед ним задачей — найти мне жильё в короткие сроки (дедлайн 1,5 недели). Спасибо!
Dimas
У меня только положительные впечатления остались. Мне присылал варианты каждый день, иногда даже дважды. Всегда оперативно реагировал на мои пожелания. В итоге, так и сняли одну из предложенных квартир и очень довольны.
Любовь












