






















2-комнатная квартира: Москва, Мартеновская улица, 6к3 (54 м²)
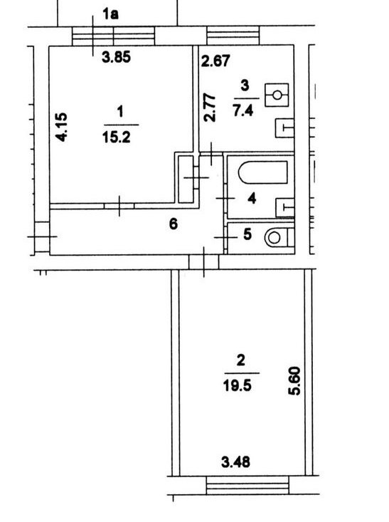
Россиянам на длительный срок сдается чистая тихая добротно оборудованная для себя двухкомнатная квартира рядом с парком и метро. Ожидаются близкие родственники любого возраста с официальным трудоустройством (справка 2-НДФЛ), до 5 человек, можно с детьми, но без животных. Собственник сдает без комиссии, арендой занимается с 1992 года, наниматели без проблем проживали до 7 лет. Бесплатно делается регистрация пребывания. Субаренда исключается. Место тихое с развитой инфраструктурой и открытой просторной автостоянкой: Москва, Восточный АО, район Перово, до метро "Новогиреево" 15-18 минут пешком, до Терлецкого парка 200 м. Квартира расположена на 3 этаже 5 этажного малонаселенного кирпичного дома после капитального ремонта по адресу: ул. Мартеновская, д. 6 корп. 3. В отличие от жилья в бетонных многоэтажках эта квартира и дом с отличной тепло- и звукоизоляцией. Площадь: общая - 54 квм, жилая - 35 квм, потолки 275 см, комнаты изолированные (19,5 + 15,2) с массивными звукопоглощающими дверями. Кухня 7.4 квм (газовая плита, стиралка, микроволновка, газовая колонка - термостат, электроводонагреватель, холодильник..). Полностью укомплектованы и оборудованы коридор 6.8 квм с большим шкафом-купе, остекленный балкон 2 квм и раздельный санузел (2.4 квм с большой ванной + туалет 1.5 квм). Квартира после качественного ремонта с большим количеством систем хранения / спальных мест и возможностью доукомплектования. Телефон и Интернет (вкл. WiFi) - по требованию. Однократно вносите страховой депозит за 1 месяц и ежемесячно - за наем жилья и по счетчикам (за горячее водоснабжение не платите, прекрасно справляется новейшая газовая колонка). Минимальный срок аренды - до сентября, далее продление на год. Интересы риэлторов защищаются.
Удобства
Балкон
Посудомоечная машина
Холодильник
Стиральная машина
Телевизор
Нагреватель воды
Кондиционер
Особенности
Можно курить
Подходит для мероприятий
Можно с животными
Подходит для семьи с детьми
Другие 2-х комнатные квартиры
Последние добавленные апартаменты
О нас говорят
Хорошая услуга «Личный помощник». За вами закрепляют менеджера, который подбирает для вас варианты, помогает с подписанием договора и проверкой квартиры. Константин оперативно отвечал на наши вопросы и подстраивался под возникающие в ходе поиска требования.
Ins Fairy
Нашел себе отличную квартиру в Мск на Локалс. В этот раз пользовался услугой Личный помощник; Каждый день мне присылали варианты и по моим ответам уточняли мои критерии. В итоге выбрали прямо то, что мне было надо!
Ilya Malov
Отличный сервис! Нужный вариант подобрали уже на следующий день после обращения. Документы с арендодателем я подписала в конце той же недели и сразу переехала. Квартира после ремонта, все новое, я — первый арендатор, до метро 15 минут пешком. Это потрясающе!
Maria Levkina
Поиски квартиры заняли ровно неделю, Андрей проверял все варианты и составлял подробное описание. Так же оказал помощь при подписании договора. И вот теперь, я снимаю квартиру без комиссии, от собственника, с хорошим ремонтом, в новом доме по приемлемой цене.
Dmitry Kovtun
Клиентоориентированность — на высшем уровне. И форма связи любая.. мне было удобно общаться через почту — не проблема: в будни и даже в выходные, и днем и ночью — постоянно на связи) В какой-то момент даже подумала, что личный помощник никогда не отдыхает))
Teresa Olehnovich
Услуга «Личный помощник» — это не только дешевле, чем платить деньги каким-то непонятным посредникам или риэлторам, но и гарантированная ежедневная консультация от грамотного специалиста. Одним словом, всё очень понравилось.
Алина Василевская
Моя оценка 5! Нашли с личным помощником то, что нужно!! Удобно и безопасно. Отличный, проверенный сайт! Спасибо, Локалс!
Еленка Потапова
Искал с помощью услуги «Личный помощник». Сервис справился с поставленной перед ним задачей — найти мне жильё в короткие сроки (дедлайн 1,5 недели). Спасибо!
Dimas
У меня только положительные впечатления остались. Мне присылал варианты каждый день, иногда даже дважды. Всегда оперативно реагировал на мои пожелания. В итоге, так и сняли одну из предложенных квартир и очень довольны.
Любовь












