2-комнатная квартира: Москва, Луховицкая улица, 1/55 (60.3 м²)
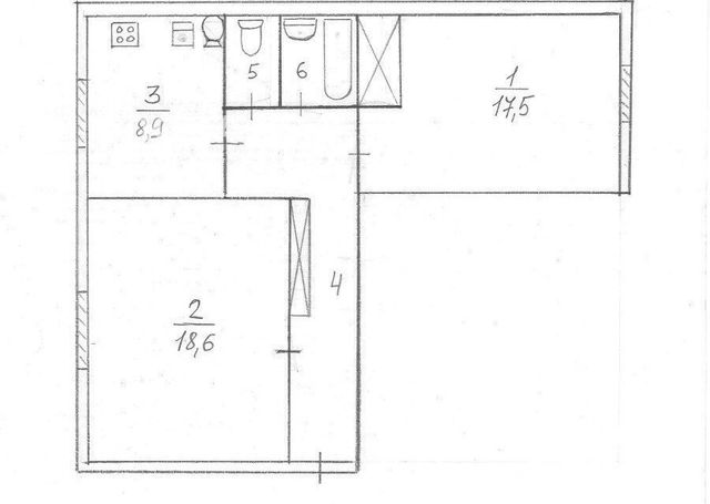
Просторная квартира «распашонка» с чистой юридической историей от первых хозяев (приватизация без нарушений более 7 лет), без обременений и долгов, 3 взрослых собственника. Площадь 60,3, изолированные комнаты 18,6 + 17,5, кухня 8,9, СУР, потолки 3м. Второй этаж (есть лифт), 2 окна во двор, 1 – на улицу с аллеей и неинтенсивным движением, на окнах стеклопакеты.
Состояние квартиры хорошее, жилое, без насекомых (тараканов, клопов и т.п.), без перепланировок, отличная шумоизоляция, зимой тепло, летом прохладно. Дом добротный, сталинский, построенный в 1955 г. по индивидуальному проекту. Чистый подъезд, спокойные соседи, первый этаж нежилой (вневедомственная охрана), стоянка во дворе.
Развитая инфраструктура: 10 мин пешком до метро Окская, Стахановская, 15 мин до МЦД и ж/д станций Чухлинка, Плющево, рядом с домом остановка автобусов, детский сад, школа, магазины, в шаговой доступности большие детские площадки, поликлиника, Кусковский лесопарк.
Прямая продажа, выписка до сделки. Торг.
Звонить с 9.00 до 21.00. Собственник
Особенности
Другие 2-х комнатные квартиры
Последние добавленные апартаменты
О нас говорят
Хорошая услуга «Личный помощник». За вами закрепляют менеджера, который подбирает для вас варианты, помогает с подписанием договора и проверкой квартиры. Константин оперативно отвечал на наши вопросы и подстраивался под возникающие в ходе поиска требования.
Ins Fairy
Нашел себе отличную квартиру в Мск на Локалс. В этот раз пользовался услугой Личный помощник; Каждый день мне присылали варианты и по моим ответам уточняли мои критерии. В итоге выбрали прямо то, что мне было надо!
Ilya Malov
Отличный сервис! Нужный вариант подобрали уже на следующий день после обращения. Документы с арендодателем я подписала в конце той же недели и сразу переехала. Квартира после ремонта, все новое, я — первый арендатор, до метро 15 минут пешком. Это потрясающе!
Maria Levkina
Поиски квартиры заняли ровно неделю, Андрей проверял все варианты и составлял подробное описание. Так же оказал помощь при подписании договора. И вот теперь, я снимаю квартиру без комиссии, от собственника, с хорошим ремонтом, в новом доме по приемлемой цене.
Dmitry Kovtun
Клиентоориентированность — на высшем уровне. И форма связи любая.. мне было удобно общаться через почту — не проблема: в будни и даже в выходные, и днем и ночью — постоянно на связи) В какой-то момент даже подумала, что личный помощник никогда не отдыхает))
Teresa Olehnovich
Услуга «Личный помощник» — это не только дешевле, чем платить деньги каким-то непонятным посредникам или риэлторам, но и гарантированная ежедневная консультация от грамотного специалиста. Одним словом, всё очень понравилось.
Алина Василевская
Моя оценка 5! Нашли с личным помощником то, что нужно!! Удобно и безопасно. Отличный, проверенный сайт! Спасибо, Локалс!
Еленка Потапова
Искал с помощью услуги «Личный помощник». Сервис справился с поставленной перед ним задачей — найти мне жильё в короткие сроки (дедлайн 1,5 недели). Спасибо!
Dimas
У меня только положительные впечатления остались. Мне присылал варианты каждый день, иногда даже дважды. Всегда оперативно реагировал на мои пожелания. В итоге, так и сняли одну из предложенных квартир и очень довольны.
Любовь












