


























2-комнатная квартира: Москва, 1-я Ямская улица, 4 (53 м²)
Лот № 74863 Двухуровневая квартира в премиум-квартале Jazz.
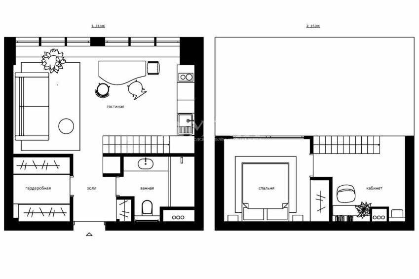
В квартира выполнен дизайнерский ремонт в стиле скандинавский лофт с панорамными окнами в пол. Общая площадь - 53м2, включая отдельную спальню (кровать 200*160), отдельную гардеробную комнату, кабинет, просторную гостиную, зону кухни и с.у. Большое светлое пространство гостиной со вторым светом имеет высоту около 5 метров.
Полы - дубовый паркет. Техника: холодильник, посудомойка, стиралка, микроволновка, варочная панель, электропривод для штор, кондиционер. Имеется кронштейн для вашего проектора. В ванной просторная душевая (без чаши), гигиенический душ. Много встроенного хранения.
В квартиру подведена принудительная приточно-вытяжная вентиляция с фильтрацией и очисткой воздуха. Также в доме осуществляется фильтрация воды - вся вода в кранах питьевая. Установлен центральный бойлер для предотвращения летнего отключения холодной воды.
Окна выходят на очень тихий двор с крутым ландшафтным дизайном; гамаками, качелями, беседками, универсальной спортплощадкой, уникальной площадкой «Труба», галереей от дождя.
Закрытая охраняемая территория двора без машин. Вся необходимая инфраструктура имеется на территории комплекса: частный детский сад, барбершоп, surf coffe, кондитерская, ресторан, фитнес-зал, ozon, сдэк. Есть возможность заказывать уборку, гостевой пропуск/парковку, доставку воды и другие услуги через приложение комплекса.
В подъездах предусмотрена премиальная отделка и консьерж. В стоимость входит безлимитное пользование приватным тренажёрным залом.
Рядом Фестивальный и Екатерининский парки.
Квартира идеальна для 1-2 человек ростом до 183 см. Можно с ребенком, но без животных. На долгий срок.
Удобства
Балкон
Посудомоечная машина
Холодильник
Стиральная машина
Телевизор
Нагреватель воды
Кондиционер
Особенности
Можно курить
Подходит для мероприятий
Можно с животными
Подходит для семьи с детьми
Последние добавленные апартаменты
О нас говорят
Хорошая услуга «Личный помощник». За вами закрепляют менеджера, который подбирает для вас варианты, помогает с подписанием договора и проверкой квартиры. Константин оперативно отвечал на наши вопросы и подстраивался под возникающие в ходе поиска требования.
Ins Fairy
Нашел себе отличную квартиру в Мск на Локалс. В этот раз пользовался услугой Личный помощник; Каждый день мне присылали варианты и по моим ответам уточняли мои критерии. В итоге выбрали прямо то, что мне было надо!
Ilya Malov
Отличный сервис! Нужный вариант подобрали уже на следующий день после обращения. Документы с арендодателем я подписала в конце той же недели и сразу переехала. Квартира после ремонта, все новое, я — первый арендатор, до метро 15 минут пешком. Это потрясающе!
Maria Levkina
Поиски квартиры заняли ровно неделю, Андрей проверял все варианты и составлял подробное описание. Так же оказал помощь при подписании договора. И вот теперь, я снимаю квартиру без комиссии, от собственника, с хорошим ремонтом, в новом доме по приемлемой цене.
Dmitry Kovtun
Клиентоориентированность — на высшем уровне. И форма связи любая.. мне было удобно общаться через почту — не проблема: в будни и даже в выходные, и днем и ночью — постоянно на связи) В какой-то момент даже подумала, что личный помощник никогда не отдыхает))
Teresa Olehnovich
Услуга «Личный помощник» — это не только дешевле, чем платить деньги каким-то непонятным посредникам или риэлторам, но и гарантированная ежедневная консультация от грамотного специалиста. Одним словом, всё очень понравилось.
Алина Василевская
Моя оценка 5! Нашли с личным помощником то, что нужно!! Удобно и безопасно. Отличный, проверенный сайт! Спасибо, Локалс!
Еленка Потапова
Искал с помощью услуги «Личный помощник». Сервис справился с поставленной перед ним задачей — найти мне жильё в короткие сроки (дедлайн 1,5 недели). Спасибо!
Dimas
У меня только положительные впечатления остались. Мне присылал варианты каждый день, иногда даже дважды. Всегда оперативно реагировал на мои пожелания. В итоге, так и сняли одну из предложенных квартир и очень довольны.
Любовь












