









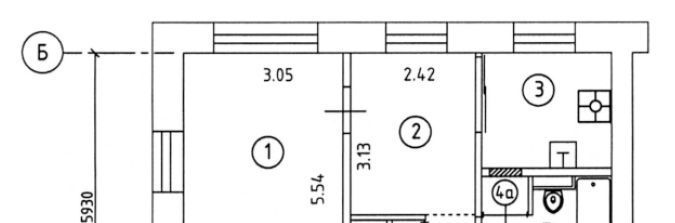
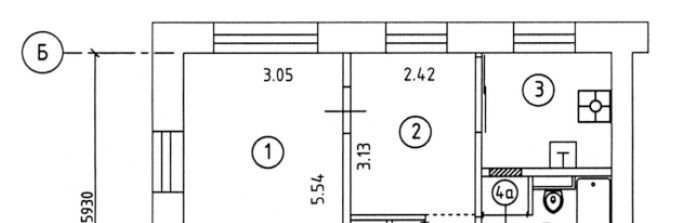
2-к кв. Москва Зеленый просп., 34 (41.2 м²)
Продаётся уютная двухкомнатная квартира площадью 41.2 квадратных метра на первом этаже пятиэтажного кирпичного дома, расположенного по адресу: Москва, Зелёный проспект, 34.
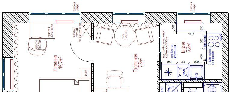
Квартира может похвастаться дизайнерским ремонтом, который выполнен с вкусом и вниманием к деталям. Сделана перепланировка, отвечающая современным запросам городского жителя. Перепланировка согласована во всех инстанциях. Устроена кладовая, изначально проектируемая для размещения велосипедов.
Высокий первый этаж. На цокольном этаже расположены административные помещения. Из окон открывается приятный вид на тихий двор, где также расположена детская площадка идеальное место для отдыха и игр детей.
Расположение дома позволяет быстро добраться до станций метро Новогиреево и Перово, находящихся всего в 0.9 и 1.2 километрах соответственно. Это значит, что пешком до них можно дойти за 11-15 минут, что очень удобно для тех, кто предпочитает активный образ жизни или не хочет зависеть от общественного транспорта.
Для автовладельцев предусмотрена парковка во дворе, что решает вопрос с местом для автомобиля.
Благодаря близости различных объектов инфраструктуры, таких как школа, детский сад, торговый центр, парк и фитнес-клуб, проживание здесь будет комфортным и удобным для всей семьи. Рядом также расположены салоны красоты и продуктовые магазины, что делает ежедневные покупки максимально удобными.
1 взрослый собственник среднего возраста. ГВС от газовой колонки.
Этот вариант идеально подойдёт тем, кто ценит комфорт, уединённость и одновременно желает иметь всё необходимое рядом с домом. Приглашаем вас ознакомиться с этой прекрасной квартирой, которая ждёт своих новых владельцев!
Особенности
Другие 2-х комнатные квартиры
Последние добавленные апартаменты
О нас говорят
Хорошая услуга «Личный помощник». За вами закрепляют менеджера, который подбирает для вас варианты, помогает с подписанием договора и проверкой квартиры. Константин оперативно отвечал на наши вопросы и подстраивался под возникающие в ходе поиска требования.
Ins Fairy
Нашел себе отличную квартиру в Мск на Локалс. В этот раз пользовался услугой Личный помощник; Каждый день мне присылали варианты и по моим ответам уточняли мои критерии. В итоге выбрали прямо то, что мне было надо!
Ilya Malov
Отличный сервис! Нужный вариант подобрали уже на следующий день после обращения. Документы с арендодателем я подписала в конце той же недели и сразу переехала. Квартира после ремонта, все новое, я — первый арендатор, до метро 15 минут пешком. Это потрясающе!
Maria Levkina
Поиски квартиры заняли ровно неделю, Андрей проверял все варианты и составлял подробное описание. Так же оказал помощь при подписании договора. И вот теперь, я снимаю квартиру без комиссии, от собственника, с хорошим ремонтом, в новом доме по приемлемой цене.
Dmitry Kovtun
Клиентоориентированность — на высшем уровне. И форма связи любая.. мне было удобно общаться через почту — не проблема: в будни и даже в выходные, и днем и ночью — постоянно на связи) В какой-то момент даже подумала, что личный помощник никогда не отдыхает))
Teresa Olehnovich
Услуга «Личный помощник» — это не только дешевле, чем платить деньги каким-то непонятным посредникам или риэлторам, но и гарантированная ежедневная консультация от грамотного специалиста. Одним словом, всё очень понравилось.
Алина Василевская
Моя оценка 5! Нашли с личным помощником то, что нужно!! Удобно и безопасно. Отличный, проверенный сайт! Спасибо, Локалс!
Еленка Потапова
Искал с помощью услуги «Личный помощник». Сервис справился с поставленной перед ним задачей — найти мне жильё в короткие сроки (дедлайн 1,5 недели). Спасибо!
Dimas
У меня только положительные впечатления остались. Мне присылал варианты каждый день, иногда даже дважды. Всегда оперативно реагировал на мои пожелания. В итоге, так и сняли одну из предложенных квартир и очень довольны.
Любовь












