


















2-к кв. Москва ул. Викторенко, 2/1 (60.0 м²)
Уютная квартира после ремонта с собственной террасой!
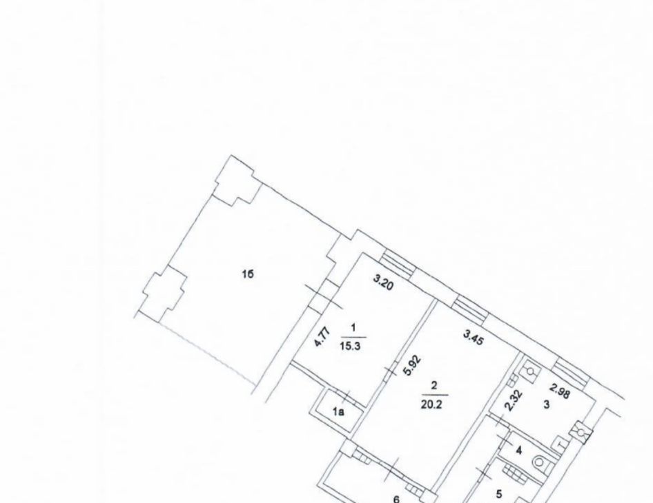
2х комнатная квартира общей площадью 60 кв.м.
Функциональная планировка:
- Изолированная кухня - 6.7 кв.м.
- Гостиная с обеденной зоной - 20.2 кв.м.
- Спальня с гардеробной и собственным выходом на террасу - 17 кв.м.
- Раздельный санузел с ванной - 5.3 кв.м.
Квартира после ремонта со всей необходимой встроенной техникой и системой кондиционирования.
Собственная эксплуатируемая терраса с уличной мягкой мебелью.
Чистый дом с приятными соседями и огороженной территорией для наземной парковки.
Идеальное расположение: 5 минут пешком до метро Аэропорт, удобный выезд на Ленинградское шоссе, 15 минут до центра.
Рядом с домом расположена вся необходимая инфраструктура: аптеки, мойки, рестораны, Азбука Вкуса и тп.
Оперативный показ!
Можно с детьми и с маленькими животными.
Удобства
Балкон
Посудомоечная машина
Холодильник
Стиральная машина
Телевизор
Нагреватель воды
Кондиционер
Особенности
Можно курить
Подходит для мероприятий
Можно с животными
Подходит для семьи с детьми
Последние добавленные апартаменты
О нас говорят
Хорошая услуга «Личный помощник». За вами закрепляют менеджера, который подбирает для вас варианты, помогает с подписанием договора и проверкой квартиры. Константин оперативно отвечал на наши вопросы и подстраивался под возникающие в ходе поиска требования.
Ins Fairy
Нашел себе отличную квартиру в Мск на Локалс. В этот раз пользовался услугой Личный помощник; Каждый день мне присылали варианты и по моим ответам уточняли мои критерии. В итоге выбрали прямо то, что мне было надо!
Ilya Malov
Отличный сервис! Нужный вариант подобрали уже на следующий день после обращения. Документы с арендодателем я подписала в конце той же недели и сразу переехала. Квартира после ремонта, все новое, я — первый арендатор, до метро 15 минут пешком. Это потрясающе!
Maria Levkina
Поиски квартиры заняли ровно неделю, Андрей проверял все варианты и составлял подробное описание. Так же оказал помощь при подписании договора. И вот теперь, я снимаю квартиру без комиссии, от собственника, с хорошим ремонтом, в новом доме по приемлемой цене.
Dmitry Kovtun
Клиентоориентированность — на высшем уровне. И форма связи любая.. мне было удобно общаться через почту — не проблема: в будни и даже в выходные, и днем и ночью — постоянно на связи) В какой-то момент даже подумала, что личный помощник никогда не отдыхает))
Teresa Olehnovich
Услуга «Личный помощник» — это не только дешевле, чем платить деньги каким-то непонятным посредникам или риэлторам, но и гарантированная ежедневная консультация от грамотного специалиста. Одним словом, всё очень понравилось.
Алина Василевская
Моя оценка 5! Нашли с личным помощником то, что нужно!! Удобно и безопасно. Отличный, проверенный сайт! Спасибо, Локалс!
Еленка Потапова
Искал с помощью услуги «Личный помощник». Сервис справился с поставленной перед ним задачей — найти мне жильё в короткие сроки (дедлайн 1,5 недели). Спасибо!
Dimas
У меня только положительные впечатления остались. Мне присылал варианты каждый день, иногда даже дважды. Всегда оперативно реагировал на мои пожелания. В итоге, так и сняли одну из предложенных квартир и очень довольны.
Любовь












