









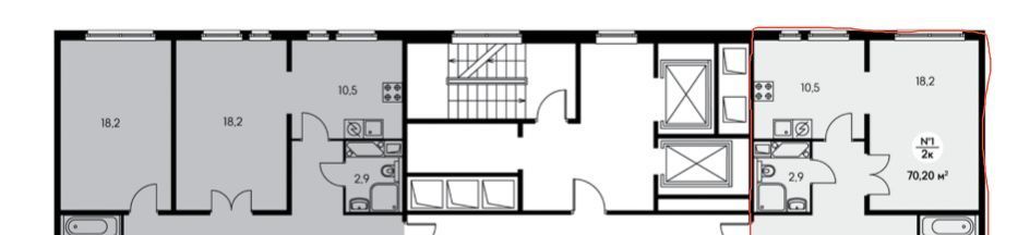
2-к кв. Москва ул. Саларьевская, 14к2 (70.2 м²)
Продается просторная и светлая двухкомнатная квартира в 12 минутах пешком от метро Саларьево. Общая площадь 70,2 кв. м, расположена на 11 этаже 15-этажного дома. Современный жилой комплекс с удобной инфраструктурой и комфортным проживанием. Рядом 2 детских сада, школа в 3 минутах, фитнес, йога-центры, кафе, аптеки и магазины. Соседи - замечательные, подъезд украшается к праздникам, в квартире тихо.
Планировка включает две просторные отдельные комнаты, два санузла, просторный коридор и кухню. В квартире есть вся необходимая мебель и техника: кухонный гарнитур со встроенной качественной техникой, кондиционер в спальне, холодильник, посудомоечная и стиральная машины, микроволновая печь. Окна выходят как на улицу с видом на парк, так и во двор.
На этаже есть колясочная-кладовка (~6м²) с дверью на замке общая с соседями. На схеме она напротив лифтов.
На территории предусмотрена наземная парковка, также имеется подземная с доступом из подъезда и многоуровневая в шаговой доступности.
Рядом с домом находятся все необходимые объекты инфраструктуры: школы, детские сады и магазины, большой ТРЦ "Саларис", вет. клиника, салоны красоты. До поликлиники 15 минут на машине или 30 минут на общественном транспорте. Планируется строительство поликлиники через дорогу.
1 взрослый собственник. Без обременений, дети не прописаны.
Звоните в любое время.
Риэлторов без реальных покупателей просьба не беспокоить.
Особенности
Другие 2-х комнатные квартиры
Последние добавленные апартаменты
О нас говорят
Хорошая услуга «Личный помощник». За вами закрепляют менеджера, который подбирает для вас варианты, помогает с подписанием договора и проверкой квартиры. Константин оперативно отвечал на наши вопросы и подстраивался под возникающие в ходе поиска требования.
Ins Fairy
Нашел себе отличную квартиру в Мск на Локалс. В этот раз пользовался услугой Личный помощник; Каждый день мне присылали варианты и по моим ответам уточняли мои критерии. В итоге выбрали прямо то, что мне было надо!
Ilya Malov
Отличный сервис! Нужный вариант подобрали уже на следующий день после обращения. Документы с арендодателем я подписала в конце той же недели и сразу переехала. Квартира после ремонта, все новое, я — первый арендатор, до метро 15 минут пешком. Это потрясающе!
Maria Levkina
Поиски квартиры заняли ровно неделю, Андрей проверял все варианты и составлял подробное описание. Так же оказал помощь при подписании договора. И вот теперь, я снимаю квартиру без комиссии, от собственника, с хорошим ремонтом, в новом доме по приемлемой цене.
Dmitry Kovtun
Клиентоориентированность — на высшем уровне. И форма связи любая.. мне было удобно общаться через почту — не проблема: в будни и даже в выходные, и днем и ночью — постоянно на связи) В какой-то момент даже подумала, что личный помощник никогда не отдыхает))
Teresa Olehnovich
Услуга «Личный помощник» — это не только дешевле, чем платить деньги каким-то непонятным посредникам или риэлторам, но и гарантированная ежедневная консультация от грамотного специалиста. Одним словом, всё очень понравилось.
Алина Василевская
Моя оценка 5! Нашли с личным помощником то, что нужно!! Удобно и безопасно. Отличный, проверенный сайт! Спасибо, Локалс!
Еленка Потапова
Искал с помощью услуги «Личный помощник». Сервис справился с поставленной перед ним задачей — найти мне жильё в короткие сроки (дедлайн 1,5 недели). Спасибо!
Dimas
У меня только положительные впечатления остались. Мне присылал варианты каждый день, иногда даже дважды. Всегда оперативно реагировал на мои пожелания. В итоге, так и сняли одну из предложенных квартир и очень довольны.
Любовь












