















2-к кв. Москва ул. Нижняя Масловка, 6к1 (40.2 м²)
Сдаётся уютная современная квартира от собственника.
Дом 1966 года и ремонт в квартире не делался очень давно, поэтому основной задачей было обновить все инженерные коммуникации, но что-то пошло не так и в итоге капительный ремонт и полноценное обновление квартиры по смыслам и наполнению.
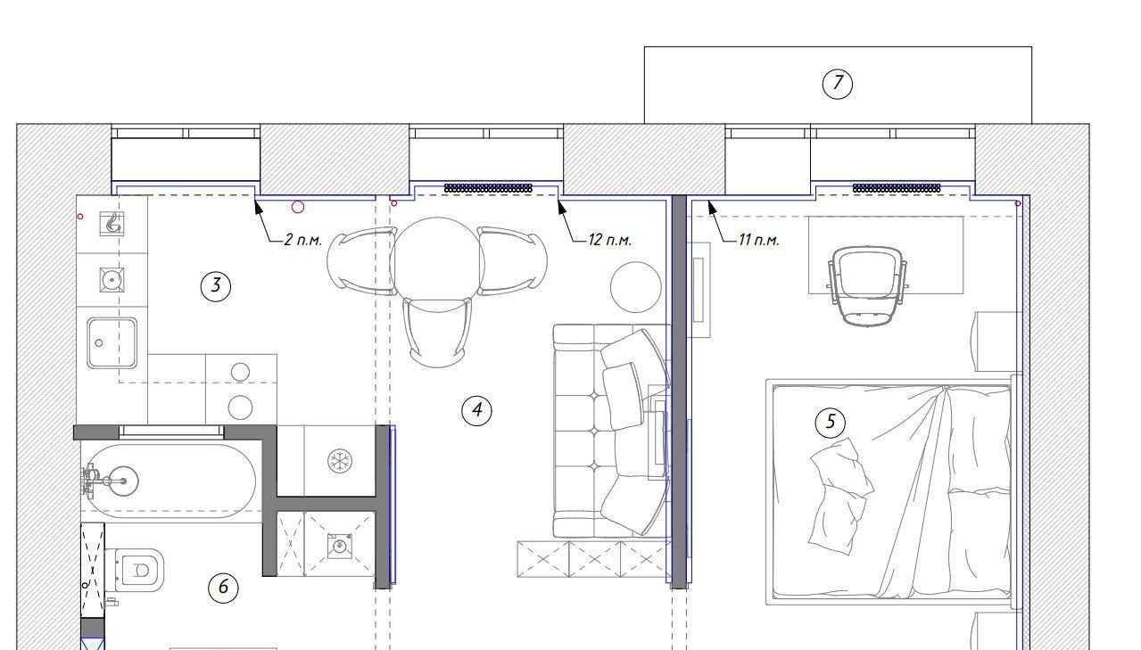
В память о советском прошлом было восстановлено световое окно между ванной и кухней, двустворчатые распашные двери в комнату, а бабушкин Зингер отреставрирован и превращен в подстолье раковины.
Была совершена перепланировка из классической двушки с маленькой кухней в современную евродвушку.:
- Заменены все инженерные системы
- Установлены потрясающие окна с отличным шумоподавлением
- Объединены комната и кухня
- Объединен санузел
- Установлены системы кондиционирования и приточной вентиляции
- Добавлена гардеробная и места хранения
- Обшит балкон
- Закуплена свежая современная мебель
Из плюсов
Полностью мебелированная квартира:
- обеденный стол и дизайнерские стулья
- рабочий стол и кресло
- двухспальный диван и кровать
- встроенная мебель
- гардеробная
Солнечная сторона
- почти всегда в квартире есть солнце
- для тех, кто не очень его любит, на всех окнах установлены блэкаут шторы
Великолепная транспортная доступность:
- в 5-ти минутах метро Савеловская, БКЛ, МЦД-1, МЦД-2 (до Сити от двери до двери 25 минут, Тверская - 17 минут, Комсомольская - 15 минут)
- в 3-х минутах магистральные автобусы до центра
- удобный выезд на автомобиле в любом направлении
Сформировавшийся район:
- нет пустырей и высотных строений
- зеленый двор с детскими площадками и площадкой для выгула собак
- магазины, Вкусно и точка, Мои документы, рынок - все в соседнем дворе
Парковка
- предоставляется право заезда на территорию, всегда можно найти парковочное место
Техника в квартире
- Для охлаждения помещения 2 кондиционера
- Для кислорода бризер (приточная вентиляция) с тройной системой очистки
- Газовая варочная панель, электрическая духовка
- Посудомоечная машина
- Стиральная машина с функцией сушилки
- Бойлер на случай отключения воды
Покрытия и шумоизоляция
- Фартук кухни и с/у керамогранит
- Все остальные стены под покраску, примыкающие к соседям были дополнительно шумоизолированы
- На пол постелен дополнительный слой шумоизоляции, сверху паркетная доска французской елочкой создает уют
Из минусов
Хотя для меня, как человека, который любит город, это скорее плюс - окна выходят на ТТК
Не был уверен, что получится, но за счет установки шумоизоляции и замены окон на трехслойный стеклопакет удалось добиться потрясающей тишины в квартире.
Для охлаждения квартиры установлено по кондиционеру в каждой из комнат, для насыщения кислородом имеется бризер (приточная вентиляция) с системой тройной очистки воздуха.
Хочется сдать квартиру на долгий срок приятным людям.
Готов ответить на ваши вопросы и показать квартиру.
Уважаемые риэлторы, пока не нуждаюсь в вашей помощи, но если хотите что-то уточнить, пожалуйста, пишите в личные сообщения.
Удобства
Балкон
Посудомоечная машина
Холодильник
Стиральная машина
Телевизор
Нагреватель воды
Кондиционер
Особенности
Можно курить
Подходит для мероприятий
Можно с животными
Подходит для семьи с детьми
Другие 2-х комнатные квартиры
Последние добавленные апартаменты
О нас говорят
Хорошая услуга «Личный помощник». За вами закрепляют менеджера, который подбирает для вас варианты, помогает с подписанием договора и проверкой квартиры. Константин оперативно отвечал на наши вопросы и подстраивался под возникающие в ходе поиска требования.
Ins Fairy
Нашел себе отличную квартиру в Мск на Локалс. В этот раз пользовался услугой Личный помощник; Каждый день мне присылали варианты и по моим ответам уточняли мои критерии. В итоге выбрали прямо то, что мне было надо!
Ilya Malov
Отличный сервис! Нужный вариант подобрали уже на следующий день после обращения. Документы с арендодателем я подписала в конце той же недели и сразу переехала. Квартира после ремонта, все новое, я — первый арендатор, до метро 15 минут пешком. Это потрясающе!
Maria Levkina
Поиски квартиры заняли ровно неделю, Андрей проверял все варианты и составлял подробное описание. Так же оказал помощь при подписании договора. И вот теперь, я снимаю квартиру без комиссии, от собственника, с хорошим ремонтом, в новом доме по приемлемой цене.
Dmitry Kovtun
Клиентоориентированность — на высшем уровне. И форма связи любая.. мне было удобно общаться через почту — не проблема: в будни и даже в выходные, и днем и ночью — постоянно на связи) В какой-то момент даже подумала, что личный помощник никогда не отдыхает))
Teresa Olehnovich
Услуга «Личный помощник» — это не только дешевле, чем платить деньги каким-то непонятным посредникам или риэлторам, но и гарантированная ежедневная консультация от грамотного специалиста. Одним словом, всё очень понравилось.
Алина Василевская
Моя оценка 5! Нашли с личным помощником то, что нужно!! Удобно и безопасно. Отличный, проверенный сайт! Спасибо, Локалс!
Еленка Потапова
Искал с помощью услуги «Личный помощник». Сервис справился с поставленной перед ним задачей — найти мне жильё в короткие сроки (дедлайн 1,5 недели). Спасибо!
Dimas
У меня только положительные впечатления остались. Мне присылал варианты каждый день, иногда даже дважды. Всегда оперативно реагировал на мои пожелания. В итоге, так и сняли одну из предложенных квартир и очень довольны.
Любовь












