
















2-к кв. Москва ул. Народного Ополчения, 15К2 (72.5 м²)
ЖК WELLTON TOWERS
ПРОСЬБА РИЭЛТОРАМ НЕ БЕСПОКОИТЬ!
В продаже уютные, стильные, двухкомнатные апартаменты с новым, дорогим ремонтом из экологически чистых материалов.
Апартаменты угловые, вид на две стороны на красивый благоустроенный двор. Пять
панорамных окон, три балкона.
В апартаментах сделан функциональный дизайнерский ремонт: предусмотрена приточно-вытяжная система вентиляция со скрытыми блоками, несколько сценариев освещения и отопления, на полу инженерная доска из ясеня, на стенах панели из шпона, система теплый пол, постирочный блок от Аsko, на окнах рулонные шторы на электроприводах.
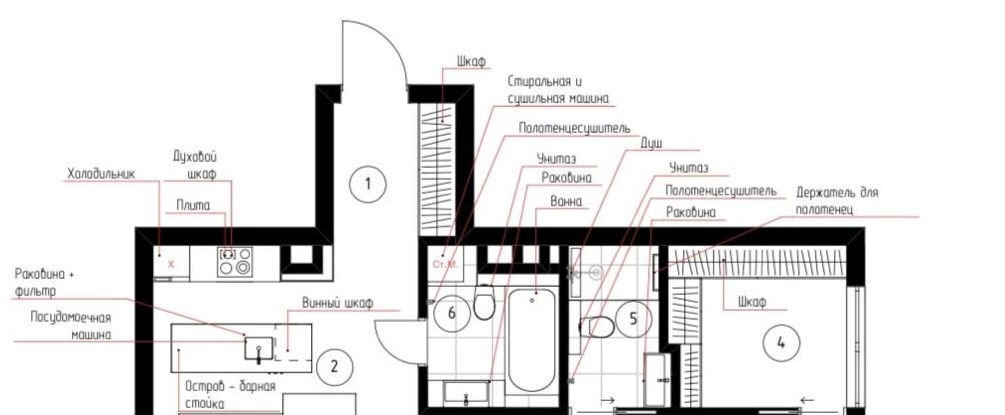
Грамотно продуманная планировка с просторной кухней-гостиной (30 м²), двумя
санузлами (один с душевой, второй с ванной), мастер-спальня, переходящая в просторную
гардеробную, в которой предусмотрены системы хранения Porro, сантехника
премиального итальянского бренда Zuchetti, двери скрытого монтажа от Sofia doors.
Предметы мебели от ведущих итальянских брендов, свет от Henge, диван - Poliform,
обеденный стол из массива - Riva, кровать - Ivano Redaelli, комод - Rimadessio - эти
знаковые предметы мебели делают интерьер уютным и наполненным, в нем хочется жить.
Современный комплекс небоскрёбов бизнес-класса, премиальная отделка входных групп и мест общего пользования, качественная и уютная зона лобби с консьерж-сервисом 24/7. В стилобатной части комплекса расположен уникальный ландшафтный парк,
обустроенный спортивными и детскими площадками, прогулочными зонами. Для
удобства владельцев квартир предусмотрены два подземных, два наземных и гостевые
паркинги, закрытая территория с круглосуточной охраной.
В районе полностью развитая инфраструктура - магазины, супермаркеты, детские сады, школы, фитнес, йога, аптеки, кафе, рестораны, салоны красоты, пункты OZON,
Wildberries, пекарни, теннисный клуб. В пешей доступности: инновационная гимназия
Хорошкола с бассейном и научно-инженерным кампусом.
Рядом с домом находится благоустроенная набережная, заповедник Серебряный бор (25 минут пешком). В шаговой доступности станция метро Народное ополчение (10 мин),
Карамышевская (11 мин). От дома до ТТК - 5 км, до МКАД - 9 км, до Садового кольца - 8
км.
Один взрослый собственник. Оперативные показы по договоренности. Полное
сопровождение сделки. Звоните!
Особенности
Другие 2-х комнатные квартиры
Последние добавленные апартаменты
2-комнатная квартира: Москва, 1-й Красногвардейский проезд, 21с2 (92 м²)
О нас говорят
Хорошая услуга «Личный помощник». За вами закрепляют менеджера, который подбирает для вас варианты, помогает с подписанием договора и проверкой квартиры. Константин оперативно отвечал на наши вопросы и подстраивался под возникающие в ходе поиска требования.
Ins Fairy
Нашел себе отличную квартиру в Мск на Локалс. В этот раз пользовался услугой Личный помощник; Каждый день мне присылали варианты и по моим ответам уточняли мои критерии. В итоге выбрали прямо то, что мне было надо!
Ilya Malov
Отличный сервис! Нужный вариант подобрали уже на следующий день после обращения. Документы с арендодателем я подписала в конце той же недели и сразу переехала. Квартира после ремонта, все новое, я — первый арендатор, до метро 15 минут пешком. Это потрясающе!
Maria Levkina
Поиски квартиры заняли ровно неделю, Андрей проверял все варианты и составлял подробное описание. Так же оказал помощь при подписании договора. И вот теперь, я снимаю квартиру без комиссии, от собственника, с хорошим ремонтом, в новом доме по приемлемой цене.
Dmitry Kovtun
Клиентоориентированность — на высшем уровне. И форма связи любая.. мне было удобно общаться через почту — не проблема: в будни и даже в выходные, и днем и ночью — постоянно на связи) В какой-то момент даже подумала, что личный помощник никогда не отдыхает))
Teresa Olehnovich
Услуга «Личный помощник» — это не только дешевле, чем платить деньги каким-то непонятным посредникам или риэлторам, но и гарантированная ежедневная консультация от грамотного специалиста. Одним словом, всё очень понравилось.
Алина Василевская
Моя оценка 5! Нашли с личным помощником то, что нужно!! Удобно и безопасно. Отличный, проверенный сайт! Спасибо, Локалс!
Еленка Потапова
Искал с помощью услуги «Личный помощник». Сервис справился с поставленной перед ним задачей — найти мне жильё в короткие сроки (дедлайн 1,5 недели). Спасибо!
Dimas
У меня только положительные впечатления остались. Мне присылал варианты каждый день, иногда даже дважды. Всегда оперативно реагировал на мои пожелания. В итоге, так и сняли одну из предложенных квартир и очень довольны.
Любовь












