










2-к кв. Москва ул. Барышиха, 40К1 (56.0 м²)
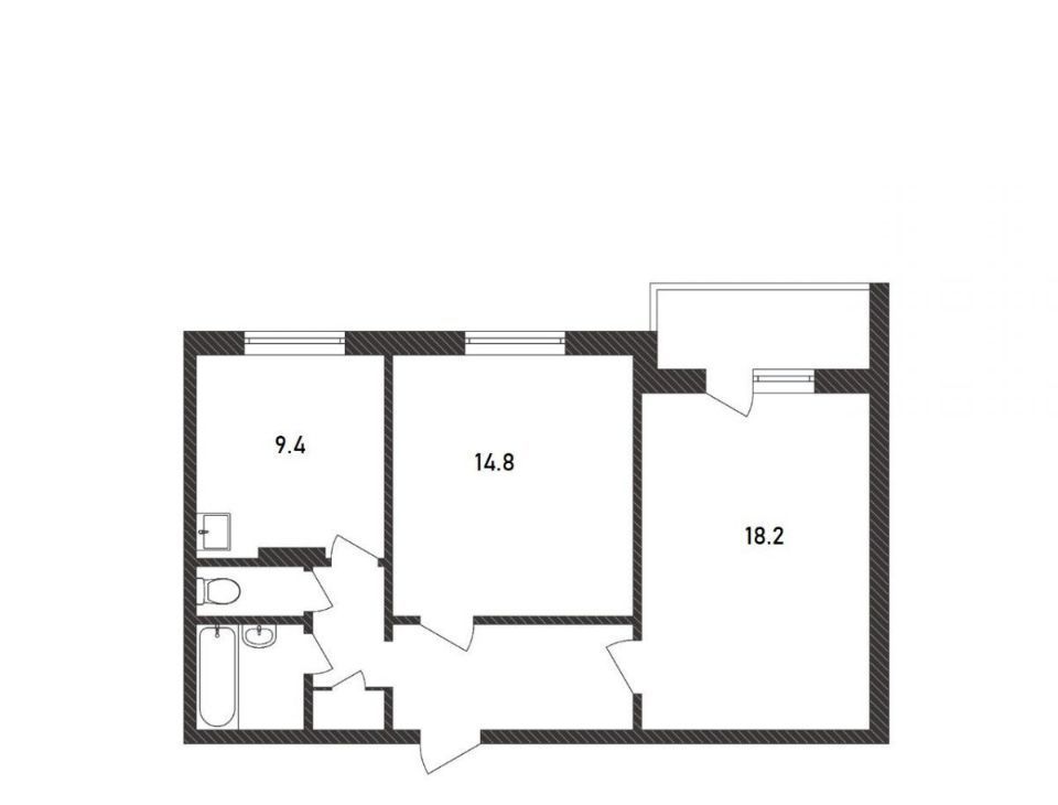
Сдаётся уютная 2-комнатная квартира площадью 56 кв. м на втором этаже 17-этажного дома. Квартира располагается в панельном доме, построенном в 1993 году. Всего в доме два пассажирских лифта, а для вашего автомобиля предусмотрена наземная парковка. Высота потолков составляет 2.64 метра. До ближайшего метро можно дойти пешком всего за 10 минут.
Квартира оформлена в современном стиле с евроремонтом. Планировка включает в себя две отдельные комнаты и кухню площадью 10 кв. м, где есть вся необходимая мебель и техника: холодильник, посудомоечная и стиральная машины, телевизор. Санузел совмещённый, с ванной. Окна квартиры выходят на улицу, поэтому в комнатах всегда светло. В квартире также имеется лоджия
Дом находится в районе с развитой инфраструктурой. В шаговой доступности расположены школы, детские сады, клиники и магазины, что делает проживание здесь удобным и комфортным. Благодаря близости к метро, у вас не будет проблем с транспортной доступностью.
Условия аренды обсуждаются индивидуально. Квартира сдаётся на длительный срок. Возможна аренда по договору, подробности уточняйте по контактам ниже.
Приглашаем вас на просмотр — записывайтесь, чтобы лично оценить все преимущества этой квартиры.
Удобства
Балкон
Посудомоечная машина
Холодильник
Стиральная машина
Телевизор
Нагреватель воды
Кондиционер
Особенности
Можно курить
Подходит для мероприятий
Можно с животными
Подходит для семьи с детьми
Последние добавленные апартаменты
О нас говорят
Хорошая услуга «Личный помощник». За вами закрепляют менеджера, который подбирает для вас варианты, помогает с подписанием договора и проверкой квартиры. Константин оперативно отвечал на наши вопросы и подстраивался под возникающие в ходе поиска требования.
Ins Fairy
Нашел себе отличную квартиру в Мск на Локалс. В этот раз пользовался услугой Личный помощник; Каждый день мне присылали варианты и по моим ответам уточняли мои критерии. В итоге выбрали прямо то, что мне было надо!
Ilya Malov
Отличный сервис! Нужный вариант подобрали уже на следующий день после обращения. Документы с арендодателем я подписала в конце той же недели и сразу переехала. Квартира после ремонта, все новое, я — первый арендатор, до метро 15 минут пешком. Это потрясающе!
Maria Levkina
Поиски квартиры заняли ровно неделю, Андрей проверял все варианты и составлял подробное описание. Так же оказал помощь при подписании договора. И вот теперь, я снимаю квартиру без комиссии, от собственника, с хорошим ремонтом, в новом доме по приемлемой цене.
Dmitry Kovtun
Клиентоориентированность — на высшем уровне. И форма связи любая.. мне было удобно общаться через почту — не проблема: в будни и даже в выходные, и днем и ночью — постоянно на связи) В какой-то момент даже подумала, что личный помощник никогда не отдыхает))
Teresa Olehnovich
Услуга «Личный помощник» — это не только дешевле, чем платить деньги каким-то непонятным посредникам или риэлторам, но и гарантированная ежедневная консультация от грамотного специалиста. Одним словом, всё очень понравилось.
Алина Василевская
Моя оценка 5! Нашли с личным помощником то, что нужно!! Удобно и безопасно. Отличный, проверенный сайт! Спасибо, Локалс!
Еленка Потапова
Искал с помощью услуги «Личный помощник». Сервис справился с поставленной перед ним задачей — найти мне жильё в короткие сроки (дедлайн 1,5 недели). Спасибо!
Dimas
У меня только положительные впечатления остались. Мне присылал варианты каждый день, иногда даже дважды. Всегда оперативно реагировал на мои пожелания. В итоге, так и сняли одну из предложенных квартир и очень довольны.
Любовь












