2-к кв. Москва Перервинский бул., 19К1 (50.3 м²)
Уютная двушка-линейка на Перервинском бульваре ждёт нового собственника.
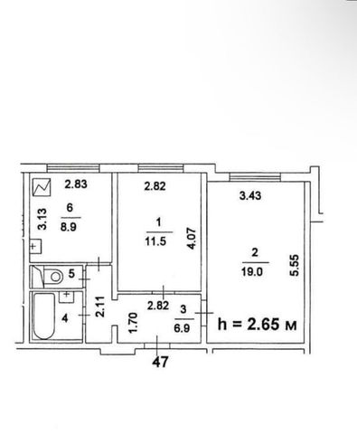
Квартира находится в тихом зелёном районе в 18 минутах ходьбы от метро Братиславская, на 2 этаже 12-этажного дома 2001 года постройки, серии П-44Т.
Общая площадь 50,3 м2;
потолки 2,65 м;
изолированные комнаты 18 и 11,5 м2;
кухня 8,9 м2;
раздельный санузел;
без балкона - зато максимум полезной площади и света;
окна выходят на улицу.
Квартира после капитального ремонта (выполнен в марте 2025 года), оборудована всем новым и необходимым для комфортного проживания: мебелью, техникой, сантехникой.
Из техники: двухкамерный холодильник, варочная панель, духовой шкаф, посудомоечная машинка, микроволновая печь, стиральная машинка.
Рядом с домом оборудованная детская площадка, есть три детских сада, две школы (до 4-х минут ходьбы), также в шаговой доступности продуктовые магазины, детская и взрослая поликлиники, два парка Дюссельдорфский и имени 850 летия г. Москвы, два фитнес клуба с бассейном.
Свободная продажа, один взрослый собственник, более пяти лет в собственности (ДКП).
Квартира без обременений. Юридически и физически свободна. Быстрый выход на сделку. Все документы готовы. Просмотр по договоренности.
Агентов без потенциальных покупателей прошу не беспокоить. В услугах риэлтора не нуждаюсь, есть свой риэлтор. Благодарю за понимание.
Особенности
Другие 2-х комнатные квартиры
Последние добавленные апартаменты
О нас говорят
Хорошая услуга «Личный помощник». За вами закрепляют менеджера, который подбирает для вас варианты, помогает с подписанием договора и проверкой квартиры. Константин оперативно отвечал на наши вопросы и подстраивался под возникающие в ходе поиска требования.
Ins Fairy
Нашел себе отличную квартиру в Мск на Локалс. В этот раз пользовался услугой Личный помощник; Каждый день мне присылали варианты и по моим ответам уточняли мои критерии. В итоге выбрали прямо то, что мне было надо!
Ilya Malov
Отличный сервис! Нужный вариант подобрали уже на следующий день после обращения. Документы с арендодателем я подписала в конце той же недели и сразу переехала. Квартира после ремонта, все новое, я — первый арендатор, до метро 15 минут пешком. Это потрясающе!
Maria Levkina
Поиски квартиры заняли ровно неделю, Андрей проверял все варианты и составлял подробное описание. Так же оказал помощь при подписании договора. И вот теперь, я снимаю квартиру без комиссии, от собственника, с хорошим ремонтом, в новом доме по приемлемой цене.
Dmitry Kovtun
Клиентоориентированность — на высшем уровне. И форма связи любая.. мне было удобно общаться через почту — не проблема: в будни и даже в выходные, и днем и ночью — постоянно на связи) В какой-то момент даже подумала, что личный помощник никогда не отдыхает))
Teresa Olehnovich
Услуга «Личный помощник» — это не только дешевле, чем платить деньги каким-то непонятным посредникам или риэлторам, но и гарантированная ежедневная консультация от грамотного специалиста. Одним словом, всё очень понравилось.
Алина Василевская
Моя оценка 5! Нашли с личным помощником то, что нужно!! Удобно и безопасно. Отличный, проверенный сайт! Спасибо, Локалс!
Еленка Потапова
Искал с помощью услуги «Личный помощник». Сервис справился с поставленной перед ним задачей — найти мне жильё в короткие сроки (дедлайн 1,5 недели). Спасибо!
Dimas
У меня только положительные впечатления остались. Мне присылал варианты каждый день, иногда даже дважды. Всегда оперативно реагировал на мои пожелания. В итоге, так и сняли одну из предложенных квартир и очень довольны.
Любовь












