




2-к кв. Москва Кусковская ул., 12/1 (54.6 м²)
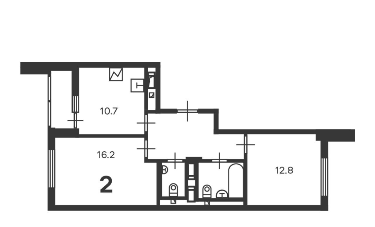
Сдается уютная 2-комнатная квартира в современном доме, расположенном по адресу: Россия, Москва, Кусковская улица, 12/1. Квартира находится на 14 этаже 15-этажного дома, построенного в 2025 году. Общая площадь квартиры составляет 54,6 кв. м, кухня - 10 кв. м. До метро всего 10 минут пешком.
В квартире сделан косметический ремонт, установлена вся необходимая техника: холодильник, телевизор и стиральная машина. Мебель есть как на кухне, так и в комнате. Планировка включает один совмещенный и один отдельный санузел, а также балкон с видом на улицу и во двор. В ванной комнате установлена ванна. Благодаря подведенному интернету, вы всегда будете на связи.
Дом оборудован пассажирским и грузовым лифтами, имеется подземная парковка, поэтому вы всегда найдете место для своего автомобиля. Современное состояние дома и его инфраструктура обеспечивают комфортное проживание.
Рядом с домом находятся школы, детские сады, клиники и магазины, что делает это место идеальным для семей. Удобная транспортная доступность позволит вам легко добраться до любых районов города.
Квартира сдается по договору аренды, без дополнительных комиссий. Залог и предоплата обсуждаются индивидуально. Идеально подойдет для комфортного проживания семьи или пары.
Приглашаем вас на просмотр! Позвоните, чтобы записаться на удобное время и лично оценить все преимущества этой замечательной квартиры.
Удобства
Балкон
Посудомоечная машина
Холодильник
Стиральная машина
Телевизор
Нагреватель воды
Кондиционер
Особенности
Можно курить
Подходит для мероприятий
Можно с животными
Подходит для семьи с детьми
Другие 2-х комнатные квартиры
Последние добавленные апартаменты
О нас говорят
Хорошая услуга «Личный помощник». За вами закрепляют менеджера, который подбирает для вас варианты, помогает с подписанием договора и проверкой квартиры. Константин оперативно отвечал на наши вопросы и подстраивался под возникающие в ходе поиска требования.
Ins Fairy
Нашел себе отличную квартиру в Мск на Локалс. В этот раз пользовался услугой Личный помощник; Каждый день мне присылали варианты и по моим ответам уточняли мои критерии. В итоге выбрали прямо то, что мне было надо!
Ilya Malov
Отличный сервис! Нужный вариант подобрали уже на следующий день после обращения. Документы с арендодателем я подписала в конце той же недели и сразу переехала. Квартира после ремонта, все новое, я — первый арендатор, до метро 15 минут пешком. Это потрясающе!
Maria Levkina
Поиски квартиры заняли ровно неделю, Андрей проверял все варианты и составлял подробное описание. Так же оказал помощь при подписании договора. И вот теперь, я снимаю квартиру без комиссии, от собственника, с хорошим ремонтом, в новом доме по приемлемой цене.
Dmitry Kovtun
Клиентоориентированность — на высшем уровне. И форма связи любая.. мне было удобно общаться через почту — не проблема: в будни и даже в выходные, и днем и ночью — постоянно на связи) В какой-то момент даже подумала, что личный помощник никогда не отдыхает))
Teresa Olehnovich
Услуга «Личный помощник» — это не только дешевле, чем платить деньги каким-то непонятным посредникам или риэлторам, но и гарантированная ежедневная консультация от грамотного специалиста. Одним словом, всё очень понравилось.
Алина Василевская
Моя оценка 5! Нашли с личным помощником то, что нужно!! Удобно и безопасно. Отличный, проверенный сайт! Спасибо, Локалс!
Еленка Потапова
Искал с помощью услуги «Личный помощник». Сервис справился с поставленной перед ним задачей — найти мне жильё в короткие сроки (дедлайн 1,5 недели). Спасибо!
Dimas
У меня только положительные впечатления остались. Мне присылал варианты каждый день, иногда даже дважды. Всегда оперативно реагировал на мои пожелания. В итоге, так и сняли одну из предложенных квартир и очень довольны.
Любовь












