

























2-к кв. Москва Хорошевское ш., 13АК3 (70.0 м²)
Сталинский шик: искусство жить в Хорошевском
Пятый этаж — это финальный аккорд в симфонии низкого дома. Здесь, в кирпичном здании 1952 года, 70 м² обретают характер эпохи: трёхметровые потолки дарят ощущение свободы и воздуха, а дизайнерский ремонт в стиле арт-деко и хай-тек создаёт диалог времён, где классическая роскошь встречается с современной функциональностью.
Интерьер, который говорит на языке искусства:
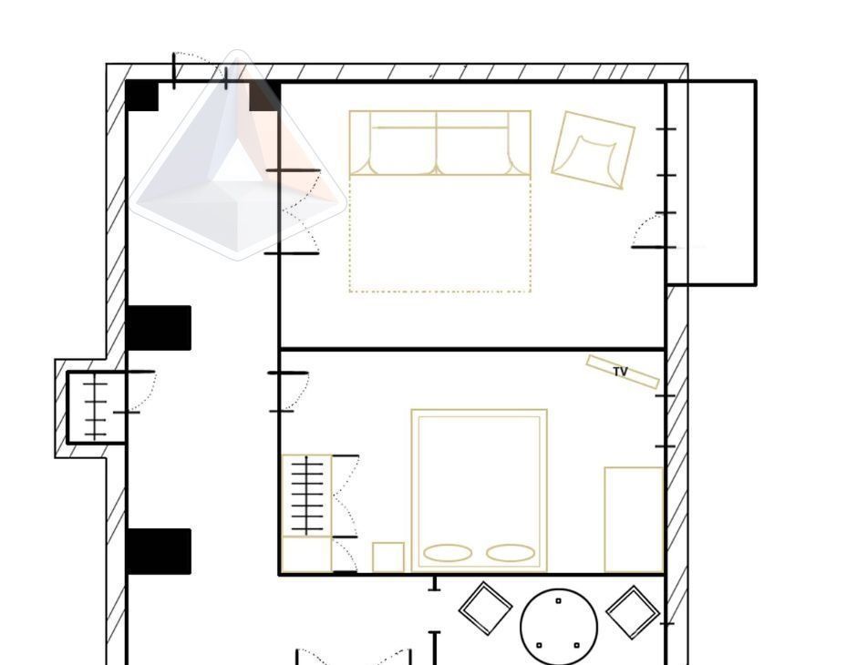
• Две изолированные комнаты: просторная гостиная 20 м² для вдохновляющих встреч и уютная спальня 16 м² — приватный оазис для восстановления сил
• Кухня 910 м² с полной комплектацией: духовой шкаф, газовая плита, микроволновая печь, бойлер — гастрономия как удовольствие, а не обязанность
• Гардеробная и продуманные системы хранения — порядок, который освобождает мысли и пространство для главного
• Раздельный санузел и балкон с видом во двор — приватность и спокойствие в каждом дне
Материалы, которые чувствуются:
• Итальянская мебель на заказ — тактильное удовольствие в каждом прикосновении
• Напольные покрытия: плитка в мокрой зоне, ламинат в жилых комнатах — эстетика и практичность в идеальном балансе
• Рабочий стол, телевизор, высокоскоростной интернет с Wi-Fi — технологии, которые заботятся о вашем времени
Атмосфера, которую создаёт дом:
• Низкоэтажный сталинский дом с современным лифтом — камерность и комфорт без суеты высоток
• Тихий зелёный двор с детской площадкой, спокойные соседи — приватность, ставшая редкостью в большом городе
• Окна во двор — вид, который радует глаз и дарит ощущение защищённости
Локация, где время работает на вас:
• 10 минут до м. Беговая
• 11 минут до м. Полежаевская
• 12 минут до м. Хорошёвская
• Рядом ТТК — быстрый выезд в любую точку Москвы
• ТРЦ Хорошо! и Авиапарк — шопинг и развлечения в шаговой доступности
• Развитая инфраструктура: Азбука Вкуса, ВкусВилл, аптеки, кафе Кофемания и Сыроварня, фитнес, кинотеатр — жизнь без лишних перемещений
Пространство для тех, кто ценит архитектуру с характером, дизайнерский подход и тишину камерного района. Идеально для долгосрочной аренды — чтобы квартира стала продолжением вашего образа жизни.
Важно: квартира сдаётся строго без животных, детей и субаренды — мы ищем арендаторов, которые разделяют нашу философию бережного отношения к пространству.
ID: 161923
Оперативный показ по предварительной договоренности от ION Realty
Удобства
Балкон
Посудомоечная машина
Холодильник
Стиральная машина
Телевизор
Нагреватель воды
Кондиционер
Особенности
Можно курить
Подходит для мероприятий
Можно с животными
Подходит для семьи с детьми
Другие 2-х комнатные квартиры
Последние добавленные апартаменты
О нас говорят
Хорошая услуга «Личный помощник». За вами закрепляют менеджера, который подбирает для вас варианты, помогает с подписанием договора и проверкой квартиры. Константин оперативно отвечал на наши вопросы и подстраивался под возникающие в ходе поиска требования.
Ins Fairy
Нашел себе отличную квартиру в Мск на Локалс. В этот раз пользовался услугой Личный помощник; Каждый день мне присылали варианты и по моим ответам уточняли мои критерии. В итоге выбрали прямо то, что мне было надо!
Ilya Malov
Отличный сервис! Нужный вариант подобрали уже на следующий день после обращения. Документы с арендодателем я подписала в конце той же недели и сразу переехала. Квартира после ремонта, все новое, я — первый арендатор, до метро 15 минут пешком. Это потрясающе!
Maria Levkina
Поиски квартиры заняли ровно неделю, Андрей проверял все варианты и составлял подробное описание. Так же оказал помощь при подписании договора. И вот теперь, я снимаю квартиру без комиссии, от собственника, с хорошим ремонтом, в новом доме по приемлемой цене.
Dmitry Kovtun
Клиентоориентированность — на высшем уровне. И форма связи любая.. мне было удобно общаться через почту — не проблема: в будни и даже в выходные, и днем и ночью — постоянно на связи) В какой-то момент даже подумала, что личный помощник никогда не отдыхает))
Teresa Olehnovich
Услуга «Личный помощник» — это не только дешевле, чем платить деньги каким-то непонятным посредникам или риэлторам, но и гарантированная ежедневная консультация от грамотного специалиста. Одним словом, всё очень понравилось.
Алина Василевская
Моя оценка 5! Нашли с личным помощником то, что нужно!! Удобно и безопасно. Отличный, проверенный сайт! Спасибо, Локалс!
Еленка Потапова
Искал с помощью услуги «Личный помощник». Сервис справился с поставленной перед ним задачей — найти мне жильё в короткие сроки (дедлайн 1,5 недели). Спасибо!
Dimas
У меня только положительные впечатления остались. Мне присылал варианты каждый день, иногда даже дважды. Всегда оперативно реагировал на мои пожелания. В итоге, так и сняли одну из предложенных квартир и очень довольны.
Любовь












