
























2-к кв. Москва Большая Филевская ул., 3к4 (51.0 м²)
Вашему вниманию представляем новую евро-двушку в ЖК Западный порт. Квартира новая, только после ремонта, никто не жил, очень солнечная и светлая, есть все необходимое для комфортной жизни. Окна в пол, есть лоджия. В квартире сделана приточка, кондиционер тоже имеется. Без комиссии для арендатора! Квартира свободна и готова к заезду!
Отдельно сдается ММ в подземном паркинге по цене - 20 тысяч в месяц!
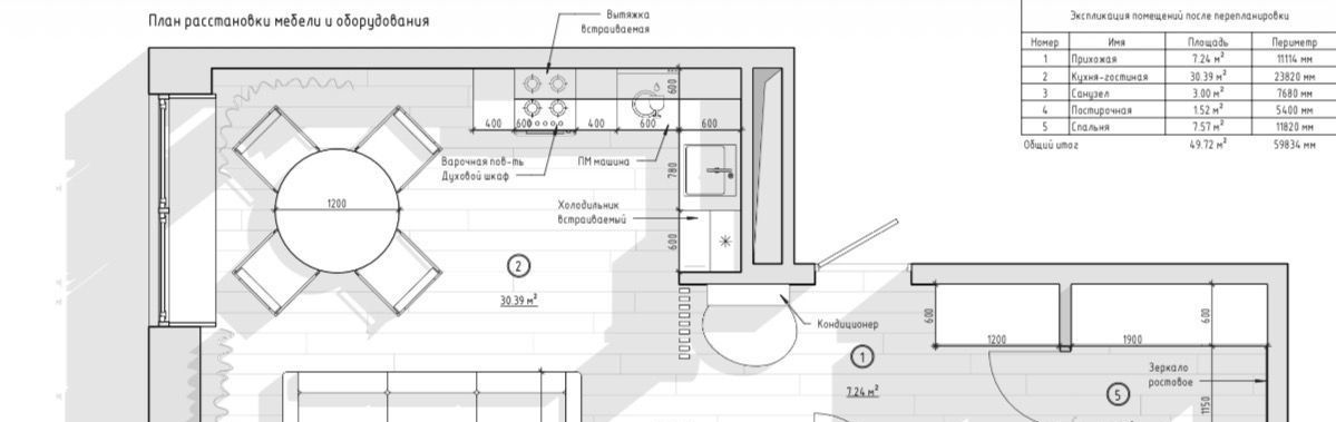
Планировка:
- кухня-гостиная
- спальня
- постирочная с стиралкой и сушкой Asco
- санузел с душем
- прихожая
Жилой комплекс расположен на первой береговой линии Москвы-реки, напротив Москва-Сити. ЖК имеет отличную транспортную доступность: 5 минут пешком до метро Фили и 4 минуты на автомобиле от ТТК. Дорога до центра города на машине занимает не более 15 минут.
Богатая инфраструктура: в квартал входят три жилых блока с подземным паркингом и два детских сада. Во дворе у каждого дома небольшой парк, где можно отдохнуть и позаниматься спортом. А также рядом с ЖК расположены развлекательный центр Филион и один из самых крупных столичных торгово-развлекательный центров Афимолл Сити.
Собственная набережная это изюминка ЖК: жители могут гулять по благоустроенной набережной с видом на деловой центр Москва-Сити.
Удобства
Балкон
Посудомоечная машина
Холодильник
Стиральная машина
Телевизор
Нагреватель воды
Кондиционер
Особенности
Можно курить
Подходит для мероприятий
Можно с животными
Подходит для семьи с детьми
Другие 2-х комнатные квартиры
Последние добавленные апартаменты
О нас говорят
Хорошая услуга «Личный помощник». За вами закрепляют менеджера, который подбирает для вас варианты, помогает с подписанием договора и проверкой квартиры. Константин оперативно отвечал на наши вопросы и подстраивался под возникающие в ходе поиска требования.
Ins Fairy
Нашел себе отличную квартиру в Мск на Локалс. В этот раз пользовался услугой Личный помощник; Каждый день мне присылали варианты и по моим ответам уточняли мои критерии. В итоге выбрали прямо то, что мне было надо!
Ilya Malov
Отличный сервис! Нужный вариант подобрали уже на следующий день после обращения. Документы с арендодателем я подписала в конце той же недели и сразу переехала. Квартира после ремонта, все новое, я — первый арендатор, до метро 15 минут пешком. Это потрясающе!
Maria Levkina
Поиски квартиры заняли ровно неделю, Андрей проверял все варианты и составлял подробное описание. Так же оказал помощь при подписании договора. И вот теперь, я снимаю квартиру без комиссии, от собственника, с хорошим ремонтом, в новом доме по приемлемой цене.
Dmitry Kovtun
Клиентоориентированность — на высшем уровне. И форма связи любая.. мне было удобно общаться через почту — не проблема: в будни и даже в выходные, и днем и ночью — постоянно на связи) В какой-то момент даже подумала, что личный помощник никогда не отдыхает))
Teresa Olehnovich
Услуга «Личный помощник» — это не только дешевле, чем платить деньги каким-то непонятным посредникам или риэлторам, но и гарантированная ежедневная консультация от грамотного специалиста. Одним словом, всё очень понравилось.
Алина Василевская
Моя оценка 5! Нашли с личным помощником то, что нужно!! Удобно и безопасно. Отличный, проверенный сайт! Спасибо, Локалс!
Еленка Потапова
Искал с помощью услуги «Личный помощник». Сервис справился с поставленной перед ним задачей — найти мне жильё в короткие сроки (дедлайн 1,5 недели). Спасибо!
Dimas
У меня только положительные впечатления остались. Мне присылал варианты каждый день, иногда даже дважды. Всегда оперативно реагировал на мои пожелания. В итоге, так и сняли одну из предложенных квартир и очень довольны.
Любовь












