













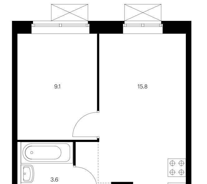
2-к кв. Москва Большая Академическая ул., 85к2 (31.7 м²)
Сдается евро-двушка 30 кв.м. в ЖК Большая Академическая 85.
Обжитой район (ремонт все давно доделали), идеальная транспортная инфраструктура (в пешей доступности МЦК Лихоборы, МЦД и метро Окружная, а также ТПУ Петровско-Разумовская.
ЖК новый, введение в эксплуатацию - 2022 год, дом очень теплый, обслуживается вовлеченной и ответственной Управляющей компанией. Ухоженная входная группа, четыре лифта (два грузовых), хорошая звукоизоляция, противопожарная сигнализация. Закрытая дворовая территория для прогулок, отдыха и воркаута. Велосипедная стоянка с возможностью круглосуточного паркинга, в том числе и вне сезона.
В доме открыты самые востребованные магазины пекарня, аптека, продуктовые сети, салон красоты, семейный ресторан, салон цветов. Все пункты выдачи можно посещать, не переобувая домашние тапочки.
Квартира находится на 6-м этаже, низкие окна компенсируют отсутствие балкона. В квартире обеспечен комфортный базовый минимум: встроенная кухня, холодильник, стиральная машинка, электрический полотенцесушитель, пластиковые регулируемые окна c дополнительной шумоизоляцией, шкаф, комод, кровать, кухонный стол.
Оптимальное комфортное размещение для одного-двух человек.
Животные, дети да
Курение нет.
Удобства
Балкон
Посудомоечная машина
Холодильник
Стиральная машина
Телевизор
Нагреватель воды
Кондиционер
Особенности
Можно курить
Подходит для мероприятий
Можно с животными
Подходит для семьи с детьми
Другие 2-х комнатные квартиры
Последние добавленные апартаменты
О нас говорят
Хорошая услуга «Личный помощник». За вами закрепляют менеджера, который подбирает для вас варианты, помогает с подписанием договора и проверкой квартиры. Константин оперативно отвечал на наши вопросы и подстраивался под возникающие в ходе поиска требования.
Ins Fairy
Нашел себе отличную квартиру в Мск на Локалс. В этот раз пользовался услугой Личный помощник; Каждый день мне присылали варианты и по моим ответам уточняли мои критерии. В итоге выбрали прямо то, что мне было надо!
Ilya Malov
Отличный сервис! Нужный вариант подобрали уже на следующий день после обращения. Документы с арендодателем я подписала в конце той же недели и сразу переехала. Квартира после ремонта, все новое, я — первый арендатор, до метро 15 минут пешком. Это потрясающе!
Maria Levkina
Поиски квартиры заняли ровно неделю, Андрей проверял все варианты и составлял подробное описание. Так же оказал помощь при подписании договора. И вот теперь, я снимаю квартиру без комиссии, от собственника, с хорошим ремонтом, в новом доме по приемлемой цене.
Dmitry Kovtun
Клиентоориентированность — на высшем уровне. И форма связи любая.. мне было удобно общаться через почту — не проблема: в будни и даже в выходные, и днем и ночью — постоянно на связи) В какой-то момент даже подумала, что личный помощник никогда не отдыхает))
Teresa Olehnovich
Услуга «Личный помощник» — это не только дешевле, чем платить деньги каким-то непонятным посредникам или риэлторам, но и гарантированная ежедневная консультация от грамотного специалиста. Одним словом, всё очень понравилось.
Алина Василевская
Моя оценка 5! Нашли с личным помощником то, что нужно!! Удобно и безопасно. Отличный, проверенный сайт! Спасибо, Локалс!
Еленка Потапова
Искал с помощью услуги «Личный помощник». Сервис справился с поставленной перед ним задачей — найти мне жильё в короткие сроки (дедлайн 1,5 недели). Спасибо!
Dimas
У меня только положительные впечатления остались. Мне присылал варианты каждый день, иногда даже дважды. Всегда оперативно реагировал на мои пожелания. В итоге, так и сняли одну из предложенных квартир и очень довольны.
Любовь












