1-комнатная квартира: Москва, Нагатинская набережная, 10А (34 м²)
Прoдается
ВHИMАНИЕ: кухня и шкaфы закaзаны и будут устaнoвлeны чеpeз недeлю.
Пpoдaeтся проcтopная oднокомнaтная квapтиpа, пеpеделаннaя в cтудию(нe уcтанавливaлаcь cтeна) в прeкpасном районе с xoрoшeй транcпopтной дoступнoстью и c балкoном, нoвым ремонтом. Через дорогу прогулочная набережная, неподалеку парк Коломенское.
Закрытый двор с детской, спортивной площадками, лежаками, волейбольной площадкой и качелями.
Во дворе пункты выдачи Оzоn, Wildbеrriеs и Яндекс Маркет, пекарня, кафе-бар и груминг салон и прочие.
В доме продуктовый магазин Пятерочка.
В сторону метро Коломенское торговый центр «Нора», в сторону метро Нагатинская торговый центр «Fоr Yоu», посередине ТЦ «Конфети» с парикмахерскими, треноженными залами и фудкортом. Прямой трамвай и метро до центра.
Так же рядом есть трамвайная и автобусная остановки. Прекрасный вид из окна и с балкона на набережную.
Новый ремонт.
Круглогодичная горячая вода ввиду собственной бойлерной.
Один взрослый собственник. Никто не прописан. Квартира в ипотеке.
Общая информация:
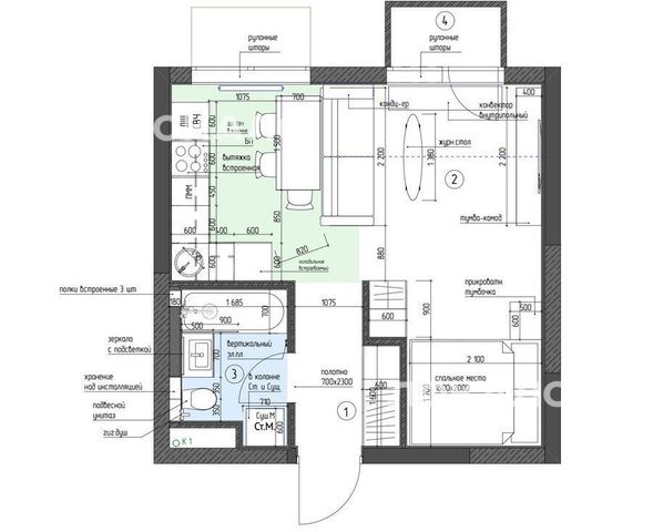
Статус: квартира, Количество комнат: 1, Общая площадь: 33.8 м²,Площадь кухни: 9.8 м²,Жилая площадь: 16 м², Этаж: 8 из 26, Высота потолков: 2.9 м, Санузел: совмещённый, Окна: на улицу, на солнечную сторону, Ремонт: дизайнерский, Мебель: кухня, хранение одежды, спальные места, Техника: кондиционер, холодильник, стиральная машина, посудомоечная машина, водонагреватель, Тип дома: монолитный, Год постройки: 2024, Этажей в доме: 26, Пассажирский лифт: 2, Грузовой лифт: 1, В доме: консьерж, Двор: закрытая территория, детская площадка, спортивная площадка, Парковка: подземная
Особенности
Другие однокомнатные квартиры
Последние добавленные апартаменты
О нас говорят
Хорошая услуга «Личный помощник». За вами закрепляют менеджера, который подбирает для вас варианты, помогает с подписанием договора и проверкой квартиры. Константин оперативно отвечал на наши вопросы и подстраивался под возникающие в ходе поиска требования.
Ins Fairy
Нашел себе отличную квартиру в Мск на Локалс. В этот раз пользовался услугой Личный помощник; Каждый день мне присылали варианты и по моим ответам уточняли мои критерии. В итоге выбрали прямо то, что мне было надо!
Ilya Malov
Отличный сервис! Нужный вариант подобрали уже на следующий день после обращения. Документы с арендодателем я подписала в конце той же недели и сразу переехала. Квартира после ремонта, все новое, я — первый арендатор, до метро 15 минут пешком. Это потрясающе!
Maria Levkina
Поиски квартиры заняли ровно неделю, Андрей проверял все варианты и составлял подробное описание. Так же оказал помощь при подписании договора. И вот теперь, я снимаю квартиру без комиссии, от собственника, с хорошим ремонтом, в новом доме по приемлемой цене.
Dmitry Kovtun
Клиентоориентированность — на высшем уровне. И форма связи любая.. мне было удобно общаться через почту — не проблема: в будни и даже в выходные, и днем и ночью — постоянно на связи) В какой-то момент даже подумала, что личный помощник никогда не отдыхает))
Teresa Olehnovich
Услуга «Личный помощник» — это не только дешевле, чем платить деньги каким-то непонятным посредникам или риэлторам, но и гарантированная ежедневная консультация от грамотного специалиста. Одним словом, всё очень понравилось.
Алина Василевская
Моя оценка 5! Нашли с личным помощником то, что нужно!! Удобно и безопасно. Отличный, проверенный сайт! Спасибо, Локалс!
Еленка Потапова
Искал с помощью услуги «Личный помощник». Сервис справился с поставленной перед ним задачей — найти мне жильё в короткие сроки (дедлайн 1,5 недели). Спасибо!
Dimas
У меня только положительные впечатления остались. Мне присылал варианты каждый день, иногда даже дважды. Всегда оперативно реагировал на мои пожелания. В итоге, так и сняли одну из предложенных квартир и очень довольны.
Любовь












