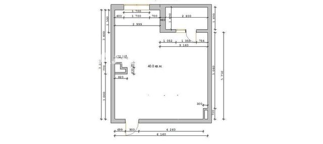
1-комнатная квартира: Москва, Кронштадтский бульвар, 6к5 (41.7 м²)

Продается квартира (не апартаменты) без ремонта, ключи получены в 2015 г.
Дом комфорт-класса с удобной локацией:
-  Метро "Водный стадион" в 5 минутах ходьбы, Ленинградское шоссе в шаговой доступности (меньше километра в обе стороны); 
- Отлично развитая инфраструктура: в 2-х минутах хотьбы расположен ТЦ «Водный», в который можно пройти через паркинг дома не выходя на улицу. В нем есть все необходимое для жизни (аптеки, банкоматы, магазины, кафе, кинотеатр  и тд.);
- Недалеко от дома располагается уютный пляж, инфраструктура для водных видов спорта, фитнес-клуб. В пешей доступности Парк у Головинских прудов, лесопарк Покровское-Стрешнево, создающие уникальный экологический микроклимат. Рядом шикарная зеленая набережная Северного речного вокзала. 
       Придомовая территория облагорожена, с прогулочными аллеями, газонами и игровыми площадками.
В ЖК есть:
-  фитнес центр, SPA салон, кофейня, винотека, паб, ресторан, салон красоты, продуктовый магазин, аптека, стоматология, медцентр и другие объекты инфраструктуры для удобного и комфортного проживания;
- охраняемый подземный паркинг с видеонаблюдением: безопасность и комфорт. 
Отсутствие отделки – возможность создать интерьер вашей мечты, окна выходят во двор.
В квартире никто не прописан, 1 взрослый собственник, обременений нет, в договоре полная стоимость.
Риелторов прошу звонить только при наличии покупателя на квартиру. 
Продаем самостоятельно.
Особенности
Другие однокомнатные квартиры
Последние добавленные апартаменты
О нас говорят
Хорошая услуга «Личный помощник». За вами закрепляют менеджера, который подбирает для вас варианты, помогает с подписанием договора и проверкой квартиры. Константин оперативно отвечал на наши вопросы и подстраивался под возникающие в ходе поиска требования.
Ins Fairy
Нашел себе отличную квартиру в Мск на Локалс. В этот раз пользовался услугой Личный помощник; Каждый день мне присылали варианты и по моим ответам уточняли мои критерии. В итоге выбрали прямо то, что мне было надо!
Ilya Malov
Отличный сервис! Нужный вариант подобрали уже на следующий день после обращения. Документы с арендодателем я подписала в конце той же недели и сразу переехала. Квартира после ремонта, все новое, я — первый арендатор, до метро 15 минут пешком. Это потрясающе!
Maria Levkina
Поиски квартиры заняли ровно неделю, Андрей проверял все варианты и составлял подробное описание. Так же оказал помощь при подписании договора. И вот теперь, я снимаю квартиру без комиссии, от собственника, с хорошим ремонтом, в новом доме по приемлемой цене.
Dmitry Kovtun
Клиентоориентированность — на высшем уровне. И форма связи любая.. мне было удобно общаться через почту — не проблема: в будни и даже в выходные, и днем и ночью — постоянно на связи) В какой-то момент даже подумала, что личный помощник никогда не отдыхает))
Teresa Olehnovich
Услуга «Личный помощник» — это не только дешевле, чем платить деньги каким-то непонятным посредникам или риэлторам, но и гарантированная ежедневная консультация от грамотного специалиста. Одним словом, всё очень понравилось.
Алина Василевская
Моя оценка 5! Нашли с личным помощником то, что нужно!! Удобно и безопасно. Отличный, проверенный сайт! Спасибо, Локалс!
Еленка Потапова
Искал с помощью услуги «Личный помощник». Сервис справился с поставленной перед ним задачей — найти мне жильё в короткие сроки (дедлайн 1,5 недели). Спасибо!
Dimas
У меня только положительные впечатления остались. Мне присылал варианты каждый день, иногда даже дважды. Всегда оперативно реагировал на мои пожелания. В итоге, так и сняли одну из предложенных квартир и очень довольны.
Любовь












