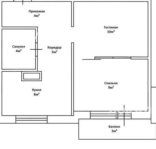
1-комнатная квартира: Москва, Коломенская набережная, 14 (41 м²)

Эстетичная квартира, продуманная до мелочей. Сдается впервые собственником после капитального ремонта — без комиссии. Квартира полностью укомплектована: от робота-пылесоса до бокалов и приборов — и полностью готова к заселению. В отделке использованы высококачественные материалы: корпусная мебель — шпон и эмаль, столешница из натурального камня, ткани мягкой мебели — высших категорий.
Оснащена системой «Умный дом» с Алисой: голосовое и дистанционное управление освещением, шторами, кондиционерами, теплыми полами. Можно настроить сценарии — например, открытие штор по будильнику или обогрев перед возвращением домой.
В спальне установлен 65-дюймовый телевизор LG OLED G5 — один из лучших телевизоров 2025 года. Он поддерживает GeForce NOW, а при настройке VPN на роутере можно пользоваться YouTube и другими зарубежными сервисами.
Также в квартире есть ультракороткофокусный проектор Formovie THEATER — один из лучших проекторов предыдущего года. В гостиной установлен 80-дюймовый выдвижной ALR-экран, раскрывающий все преимущества проектора. А на любой светлой стене можно наслаждаться изображением до 150 дюймов.
В прихожей расположен моющий робот-пылесос Roborock S8 MaxV Ultra — его более чем достаточно, чтобы поддерживать полы всегда в чистоте. К устройству можно подключиться дистанционно и наблюдать, что происходит в квартире (доступ ко всем системам есть только у жильцов).
В ванной комнате установлен мощный проточный водонагреватель — можно не беспокоиться о сезонных отключениях горячей воды.
На кухне — индукционная плита с тремя конфорками, духовой шкаф с функцией СВЧ, посудомоечная машина, вытяжка с датчиками дыма и пара, встроенный холодильник. В шкафах есть вся необходимая посуда. Установлены фильтры для очистки питьевой воды и измельчитель отходов.
На кровати — анатомический матрас Grether&Wells Regal (27 см), подушки и одеяло Askona.
Удобства
Балкон
Посудомоечная машина
Холодильник
Стиральная машина
Телевизор
Нагреватель воды
Кондиционер
Особенности
Можно курить
Подходит для мероприятий
Можно с животными
Подходит для семьи с детьми
Другие однокомнатные квартиры
Свободной планировки кв. Москва ул. Архитектора Щусева, 2к1 (71.0 м²)
Последние добавленные апартаменты
О нас говорят
Хорошая услуга «Личный помощник». За вами закрепляют менеджера, который подбирает для вас варианты, помогает с подписанием договора и проверкой квартиры. Константин оперативно отвечал на наши вопросы и подстраивался под возникающие в ходе поиска требования.
Ins Fairy
Нашел себе отличную квартиру в Мск на Локалс. В этот раз пользовался услугой Личный помощник; Каждый день мне присылали варианты и по моим ответам уточняли мои критерии. В итоге выбрали прямо то, что мне было надо!
Ilya Malov
Отличный сервис! Нужный вариант подобрали уже на следующий день после обращения. Документы с арендодателем я подписала в конце той же недели и сразу переехала. Квартира после ремонта, все новое, я — первый арендатор, до метро 15 минут пешком. Это потрясающе!
Maria Levkina
Поиски квартиры заняли ровно неделю, Андрей проверял все варианты и составлял подробное описание. Так же оказал помощь при подписании договора. И вот теперь, я снимаю квартиру без комиссии, от собственника, с хорошим ремонтом, в новом доме по приемлемой цене.
Dmitry Kovtun
Клиентоориентированность — на высшем уровне. И форма связи любая.. мне было удобно общаться через почту — не проблема: в будни и даже в выходные, и днем и ночью — постоянно на связи) В какой-то момент даже подумала, что личный помощник никогда не отдыхает))
Teresa Olehnovich
Услуга «Личный помощник» — это не только дешевле, чем платить деньги каким-то непонятным посредникам или риэлторам, но и гарантированная ежедневная консультация от грамотного специалиста. Одним словом, всё очень понравилось.
Алина Василевская
Моя оценка 5! Нашли с личным помощником то, что нужно!! Удобно и безопасно. Отличный, проверенный сайт! Спасибо, Локалс!
Еленка Потапова
Искал с помощью услуги «Личный помощник». Сервис справился с поставленной перед ним задачей — найти мне жильё в короткие сроки (дедлайн 1,5 недели). Спасибо!
Dimas
У меня только положительные впечатления остались. Мне присылал варианты каждый день, иногда даже дважды. Всегда оперативно реагировал на мои пожелания. В итоге, так и сняли одну из предложенных квартир и очень довольны.
Любовь