



















1-к кв. Москва Выборгская ул., 7к1 (32.3 м²)
РИЭЛТОРОВ ПРОСЬБА НЕ БЕСПОКОИТЬ
Не звонить, связь в сообщениях.
Продается светлая квартира формата евро-2 в ЖК бизнес-класса Невский.
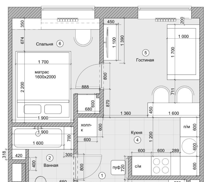
Продуманная уникальная планировка, изолированная спальня, просторная кухня-гостиная и отдельная гардеробная. Отличный вариант для одного человека или молодой семьи, которые ценят комфорт, красивую среду для жизни и хорошую транспортную доступность.
В квартире выполнен дизайнерский ремонт. Большие окна в обеих комнатах, западная сторона и высокие потолки 3 м создают ощущение света и воздуха. Встроенная мебель и кухня изготовлены на заказ в Стильные кухни.
Кухня полностью укомплектована техникой, включая полноразмерную плиту, духовой шкаф и посудомоечную машину, все Bosch, а также полноразмерную тихую встроенную стиральную машину.
В спальне — встроенный шкаф и большой удобный рабочий/туалетный стол с ящиками и полками. Кровать 160 см с подъемным механизмом. Много мест для хранения. Отдельная гардеробная помогает поддерживать порядок.
Санузел совмещенный, с полноценной ванной 160 см.
На полу — инженерная доска из дуба. Ремонт делался для себя, с вниманием к деталям, с использованием качественных материалов; дорогие шторы на заказ, высокие тяжелые двери, качественная сантехника.
Невский от КРОСТ — это ЖК бизнес-класса с красивой архитектурой и продуманной инфраструктурой. Корпус первой очереди. Просторные лобби оформлены в круизной стилистике, установлены скоростные бесшумные лифты Schindler с доступом в подземный паркинг. Квартира расположена на 3 этаже, фактически это уровень 4 этажа.
Одно из главных преимуществ комплекса — большая приватная территория без машин, объединенная с соседними корпусами. Ухоженный двор с ландшафтным дизайном, прогулочными зонами, детскими и спортивными площадками, open-air фитнесом и теннисным кортом. Работают охрана 24/7 и консьерж-сервис через приложение: гостевые пропуска, заявки в УК, вызов мастера. Офис управляющей компании находится на первом этаже. Приличные соседи.
ЖК расположен в 10 минутах пешком от метро Водный стадион и в 20 минутах от МЦК Балтийская. В минуте ходьбы — благоустроенная набережная вдоль Головинского канала, рядом Головинские пруды, огромный лесопарк Покровское-Стрешнево, Химкинское водохранилище, яхт-клуб и инфраструктура для прогулок и спорта. До Метрополиса (Кофемания/World class/клиника Чайка/студии йоги) — 20 минут пешком или 10 минут на машине. Рядом ВкусВилл, Азбука вкуса, фитнес-клуб с бассейном, салоны, детские секции, школы, сады и вузы.
Идеальный вариант для вашей комфортной красивой жизни!
Документы готовы к сделке: 1 собственник, без обременений, более 5 лет в собственности. Быстрый выход на сделку. Показы по договоренности, связь в сообщениях.
Особенности
Другие однокомнатные квартиры
Последние добавленные апартаменты
О нас говорят
Хорошая услуга «Личный помощник». За вами закрепляют менеджера, который подбирает для вас варианты, помогает с подписанием договора и проверкой квартиры. Константин оперативно отвечал на наши вопросы и подстраивался под возникающие в ходе поиска требования.
Ins Fairy
Нашел себе отличную квартиру в Мск на Локалс. В этот раз пользовался услугой Личный помощник; Каждый день мне присылали варианты и по моим ответам уточняли мои критерии. В итоге выбрали прямо то, что мне было надо!
Ilya Malov
Отличный сервис! Нужный вариант подобрали уже на следующий день после обращения. Документы с арендодателем я подписала в конце той же недели и сразу переехала. Квартира после ремонта, все новое, я — первый арендатор, до метро 15 минут пешком. Это потрясающе!
Maria Levkina
Поиски квартиры заняли ровно неделю, Андрей проверял все варианты и составлял подробное описание. Так же оказал помощь при подписании договора. И вот теперь, я снимаю квартиру без комиссии, от собственника, с хорошим ремонтом, в новом доме по приемлемой цене.
Dmitry Kovtun
Клиентоориентированность — на высшем уровне. И форма связи любая.. мне было удобно общаться через почту — не проблема: в будни и даже в выходные, и днем и ночью — постоянно на связи) В какой-то момент даже подумала, что личный помощник никогда не отдыхает))
Teresa Olehnovich
Услуга «Личный помощник» — это не только дешевле, чем платить деньги каким-то непонятным посредникам или риэлторам, но и гарантированная ежедневная консультация от грамотного специалиста. Одним словом, всё очень понравилось.
Алина Василевская
Моя оценка 5! Нашли с личным помощником то, что нужно!! Удобно и безопасно. Отличный, проверенный сайт! Спасибо, Локалс!
Еленка Потапова
Искал с помощью услуги «Личный помощник». Сервис справился с поставленной перед ним задачей — найти мне жильё в короткие сроки (дедлайн 1,5 недели). Спасибо!
Dimas
У меня только положительные впечатления остались. Мне присылал варианты каждый день, иногда даже дважды. Всегда оперативно реагировал на мои пожелания. В итоге, так и сняли одну из предложенных квартир и очень довольны.
Любовь












