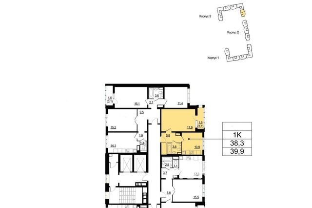
1-к кв. Москва Вольная ул., 28/4к1 (39.9 м²)
Продается просторная однокомнатная квартира с видом на Измайловский парк. Окна на восток, чудесные рассветы и ничего лишнего перед глазами ;)
Ремонт от застройщика полностью переделан под себя:
Заменены все коммуникации.
Установлена гребенка для распределения воды на разные потребители с возможностью перекрытия одного или нескольких.
Установлен проточный водонагреватель Electrolux, работает на всех кранах (кухня, ванная). У вас не будет проблем с водой в период отключения!
Теплый пол в ванной и на кухне. Спасет в прохладное время года.
Радиаторы от застройщика заменены на более эффективные с терморегуляторами. Ну и выглядят симпатичнее.
Сделана шумоизоляция по стене комнаты, граничащей с соседями.
Установлены выключатели Xiaomi с возможностью работать через Умный дом. Очень удобно выключать свет дистанционно!
Встроенная техника на кухне: посудомойка Candy, духовой шкаф с функцией СВЧ Samsung (экономит место).
Кондиционер.
Всего 4 квартиры на площадке, приятные соседи, чистота и тишина.
Отличный район: развитая инфраструктура, двор без машин, хорошая транспортная доступность. 15 мин пешком до станции МЦК Соколиная гора, 20 минут пешком до станции м. Семёновская.
Квартира полностью укомплектована и готова принять новых хозяев!
С собой заберем технику (телевизоры, стиральную машинку) и матрас.
Один взрослый собственник, без обременений.
Особенности
Другие однокомнатные квартиры
Последние добавленные апартаменты
2-комнатная квартира: Москва, Новоданиловская набережная, 8к1 (50 м²)
О нас говорят
Хорошая услуга «Личный помощник». За вами закрепляют менеджера, который подбирает для вас варианты, помогает с подписанием договора и проверкой квартиры. Константин оперативно отвечал на наши вопросы и подстраивался под возникающие в ходе поиска требования.
Ins Fairy
Нашел себе отличную квартиру в Мск на Локалс. В этот раз пользовался услугой Личный помощник; Каждый день мне присылали варианты и по моим ответам уточняли мои критерии. В итоге выбрали прямо то, что мне было надо!
Ilya Malov
Отличный сервис! Нужный вариант подобрали уже на следующий день после обращения. Документы с арендодателем я подписала в конце той же недели и сразу переехала. Квартира после ремонта, все новое, я — первый арендатор, до метро 15 минут пешком. Это потрясающе!
Maria Levkina
Поиски квартиры заняли ровно неделю, Андрей проверял все варианты и составлял подробное описание. Так же оказал помощь при подписании договора. И вот теперь, я снимаю квартиру без комиссии, от собственника, с хорошим ремонтом, в новом доме по приемлемой цене.
Dmitry Kovtun
Клиентоориентированность — на высшем уровне. И форма связи любая.. мне было удобно общаться через почту — не проблема: в будни и даже в выходные, и днем и ночью — постоянно на связи) В какой-то момент даже подумала, что личный помощник никогда не отдыхает))
Teresa Olehnovich
Услуга «Личный помощник» — это не только дешевле, чем платить деньги каким-то непонятным посредникам или риэлторам, но и гарантированная ежедневная консультация от грамотного специалиста. Одним словом, всё очень понравилось.
Алина Василевская
Моя оценка 5! Нашли с личным помощником то, что нужно!! Удобно и безопасно. Отличный, проверенный сайт! Спасибо, Локалс!
Еленка Потапова
Искал с помощью услуги «Личный помощник». Сервис справился с поставленной перед ним задачей — найти мне жильё в короткие сроки (дедлайн 1,5 недели). Спасибо!
Dimas
У меня только положительные впечатления остались. Мне присылал варианты каждый день, иногда даже дважды. Всегда оперативно реагировал на мои пожелания. В итоге, так и сняли одну из предложенных квартир и очень довольны.
Любовь












